Bildegalleri

Nydelig beliggenhet i landlige omgivelser
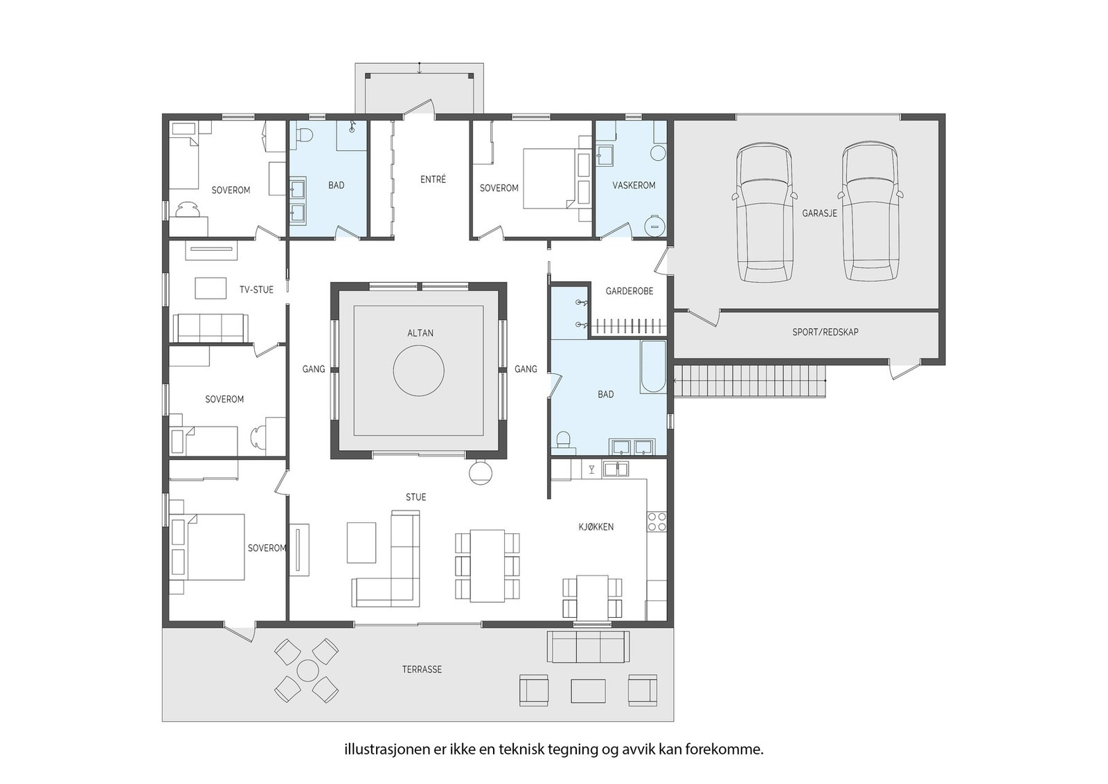
Meget spennende atrium-villa med alt på 1 plan, svær takterrasse, integrert dobbel garasje. Veksthus, lekehus, stor tomt
Prisantydning8 390 000 kr
Nøkkelinfo
- Boligtype
- Enebolig
- Eieform
- Eier (Selveier)
- Soverom
- 4
- Internt bruksareal
- 195 m² (BRA-i)
- Bruksareal
- 243 m²
- Eksternt bruksareal
- 58 m² (BRA-e)
- Balkong/Terrasse
- 217 m² (TBA)
- Etasje
- 1
- Byggeår
- 2019
- Energimerking
- C - Lysegrønn
- Rom
- 8
- Tomteareal
- 2 430 m² (eiet)
Fasiliteter
Barnevennlig
Balkong/Terrasse
Garasje/P-plass
Fiskemulighet
Peis/Ildsted
Turterreng
Utsikt
Moderne
Rolig
Bademulighet
Balansert ventilasjon
Visning
mandag, 16. mars
17:30 – 18:30
Velkommen til visning!
Alle våre visninger har påmelding. På denne måten sikrer vi at megler har god oversikt og tid til å imøtekomme alle interessenter på beste måte. Dette er veldig verdifullt for boligkjøpere og for oss. Det er enkelt å melde seg på, og du kan like enkelt melde deg av. Kontakt også gjerne megler i forkant av visning dersom du har spørsmål.
Om boligen
Meget unik og særpreget atrium-villa med alt på 1 plan.
Her er det bare til å parkere bilene i garasjen og gå rett inn i boligen. Selve boligen er kvadratisk med kvadratisk atrium i midten, hvor man kan lage sin egen grønne lunge eller skjulte hage.
Selve boligen har gjennomgående pene kvaliteter med store vindusflater, 4 soverom 2 bad, romslig stue og kjøkken.
Her kan man nyte utgang til terrassen eller stikke ut og løpe opp på takterrassen, som er helt unik med tredekke og "evig grønn dekke"
Attraktivt område ca 30 min fra Bergen sentrum i meget landlige og maritime omgivelser med store grønt areal og friluftsområder. Bl.a Smivågen, det var også en gammel kongsgård, med 10 000 års historie.
Meget barnevennlig og det har vært stor utvikling på Tyssøy og Bjorøy siste 5-20 år.
Ta turen dette er definitivt en helt spesiell bolig med stor solrik tomt. Megler kjenner flere av naboene og kan anbefale området på det sterkeste. Landlig og fredelig.
Her er det bare til å parkere bilene i garasjen og gå rett inn i boligen. Selve boligen er kvadratisk med kvadratisk atrium i midten, hvor man kan lage sin egen grønne lunge eller skjulte hage.
Selve boligen har gjennomgående pene kvaliteter med store vindusflater, 4 soverom 2 bad, romslig stue og kjøkken.
Her kan man nyte utgang til terrassen eller stikke ut og løpe opp på takterrassen, som er helt unik med tredekke og "evig grønn dekke"
Attraktivt område ca 30 min fra Bergen sentrum i meget landlige og maritime omgivelser med store grønt areal og friluftsområder. Bl.a Smivågen, det var også en gammel kongsgård, med 10 000 års historie.
Meget barnevennlig og det har vært stor utvikling på Tyssøy og Bjorøy siste 5-20 år.
Ta turen dette er definitivt en helt spesiell bolig med stor solrik tomt. Megler kjenner flere av naboene og kan anbefale området på det sterkeste. Landlig og fredelig.
NB: Knappen for å vise hele beskrivelsen har kun en visuell effekt.
NB: Knappen for å vise hele beskrivelsen har kun en visuell effekt.
Salgsoppgaven beskriver vesentlig og lovpålagt informasjon om eiendommen
Se komplett salgsoppgaveNærområdet

PrivatMegleren Syd
Kun det beste på dine vegne
Annonseinformasjon
| FINN-kode | 454628540 |
|---|---|
| Sist endret | 09. mars 2026 14:39 |
| Referanse | 166260033 |
Annonsene kan være mangelfulle i forhold til lovpålagt opplysningsplikt. Før bindende avtale inngås oppfordres interessenter til å innhente komplett informasjon fra meglerforetaket, selger eller utleier.

















































