Bildegalleri

Velkommen til Emil Olsens Vei 3, presentert av Eiendomsmegler 1 ved Jesper Snekkestad. Fotograf: Eiendomsfotograf AS.
TEGLHAGEN - NÆR BYENS SENTRUM
Lys, betydelig påkostet og lekker leilighet med store uteplasser I Sentral og attraktiv beliggenhet I Moderne løsninger
Prisantydning2 690 000 kr
Nøkkelinfo
- Boligtype
- Leilighet
- Eieform
- Andel
- Soverom
- 1
- Internt bruksareal
- 50 m² (BRA-i)
- Bruksareal
- 64 m²
- Eksternt bruksareal
- 14 m² (BRA-e)
- Balkong/Terrasse
- 31 m² (TBA)
- Etasje
- 1
- Byggeår
- 1952
- Energimerking
- Tomteareal
- 1 186 m²
Fasiliteter
Balkong/Terrasse
Bredbåndstilknytning
Kabel-TV
Offentlig vann/kloakk
Peis/Ildsted
Rolig
Sentralt
Turterreng
Visning
søndag, 22. mars
14:30 – 15:15
Ønsker du å delta på visningen ber vi deg melde deg på slik at vi vet at du kommer. Visningen avholdes bare dersom det er påmeldte. Visninger hvor det er ingen påmeldinger senest innen 2-to-timer før annonsert oppstartstidspunkt blir avlyst. Kontakt gjerne megler før visning hvis du har spørsmål.
VisningspåmeldingOm boligen
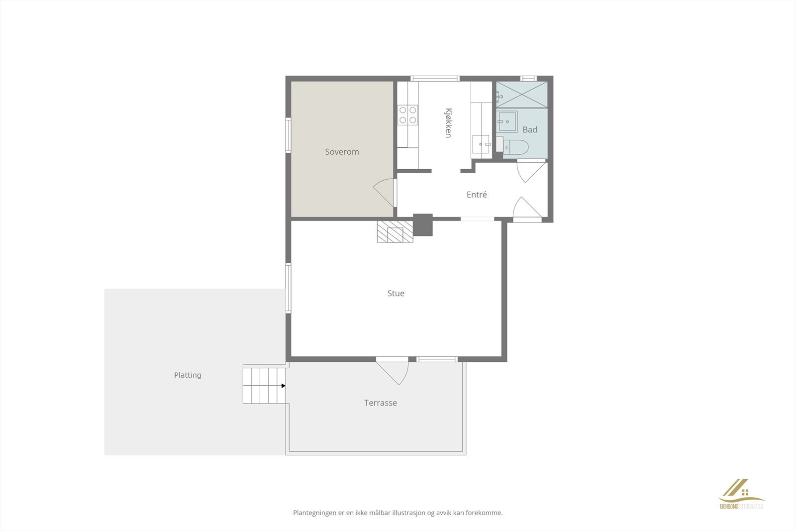
Velkommen til Emil Olsens vei 3 og denne lekre leiligheten som er betydelig påkostet i nyere tid, beliggende i rolige omgivelser like utenfor sentrum.
Her møter du en moderne innredet leilighet i 1. etasje med fin planløsning. Den er modernisert fra 2015 med blant annet nytt kjøkken, oppusset lekkert baderom, oppgraderte gulv/vegger/himlinger og lyst og delikat interiør. Stuen har lys fra to himmelretninger og har en stemningsfull peis. Ute kan du nyte fine dager og kvelder på stor solrik terrasse og balkong med takoverbygg. Soverommet er romslig med god plass til dobbeltseng. Det er god lagringsplass i to kjellerboder og en loftsbod.
Leiligheten ligger i et sentralt og attraktivt boligområde ved Teglhagen. Det er gangavstand til turområder, sjøen, sentrum og Bystranda.
Her møter du en moderne innredet leilighet i 1. etasje med fin planløsning. Den er modernisert fra 2015 med blant annet nytt kjøkken, oppusset lekkert baderom, oppgraderte gulv/vegger/himlinger og lyst og delikat interiør. Stuen har lys fra to himmelretninger og har en stemningsfull peis. Ute kan du nyte fine dager og kvelder på stor solrik terrasse og balkong med takoverbygg. Soverommet er romslig med god plass til dobbeltseng. Det er god lagringsplass i to kjellerboder og en loftsbod.
Leiligheten ligger i et sentralt og attraktivt boligområde ved Teglhagen. Det er gangavstand til turområder, sjøen, sentrum og Bystranda.
NB: Knappen for å vise hele beskrivelsen har kun en visuell effekt.
NB: Knappen for å vise hele beskrivelsen har kun en visuell effekt.
Salgsoppgaven beskriver vesentlig og lovpålagt informasjon om eiendommen
Se komplett salgsoppgaveNyttige lenker
Nærområdet
EiendomsMegler 1 Tønsberg
En del av Sparebank 1 Sør-Norge
Annonseinformasjon
| FINN-kode | 454607994 |
|---|---|
| Sist endret | 15. mars 2026 10:48 |
| Referanse | 2871260049 |
Annonsene kan være mangelfulle i forhold til lovpålagt opplysningsplikt. Før bindende avtale inngås oppfordres interessenter til å innhente komplett informasjon fra meglerforetaket, selger eller utleier.

























































