Bildegalleri

Videresalg av leilighet | 2-roms selveierleilighet i 1. etasje med markterrasse. Takhøyde på hele 3,1m. Lav dok.avg. Est. ferdig fra Nov 2026
Mathildetunet | Lørenskog
FASTPRIS | 2-roms selveierleilighet med markterrasse på 9,5 m². Takhøyde på 3,1m. Lav dok.avgift. Est. ferdig fra nov 26
Prisantydning3 650 000 kr
Nøkkelinfo
- Boligtype
- Leilighet
- Eieform
- Eier (Selveier)
- Soverom
- 1
- Internt bruksareal
- 36 m² (BRA-i)
- Bruksareal
- 39 m²
- Eksternt bruksareal
- 3 m² (BRA-e)
- Balkong/Terrasse
- 10 m² (TBA)
- Etasje
- -1
- Byggeår
- 2026
- Rom
- 2
- Tomteareal
- 10 100 m² (eiet)
Fasiliteter
Balkong/Terrasse
Bredbåndstilknytning
Heis
Kjæledyr tillatt
Parkett
Sentralt
Balansert ventilasjon
Visning
Videresalg under oppføring: Leiligheten er under oppføring og det er ikke tilgang på selve leiligheten/byggeplass. Det er mulig å gjennomføre en digital visning på Teams for en gjennomgang av spørsmål/fly i simulator (utsikt/solforhold). Konferer med megler for ytterligere informasjon og en hyggelig prat.
VisningspåmeldingOm boligen
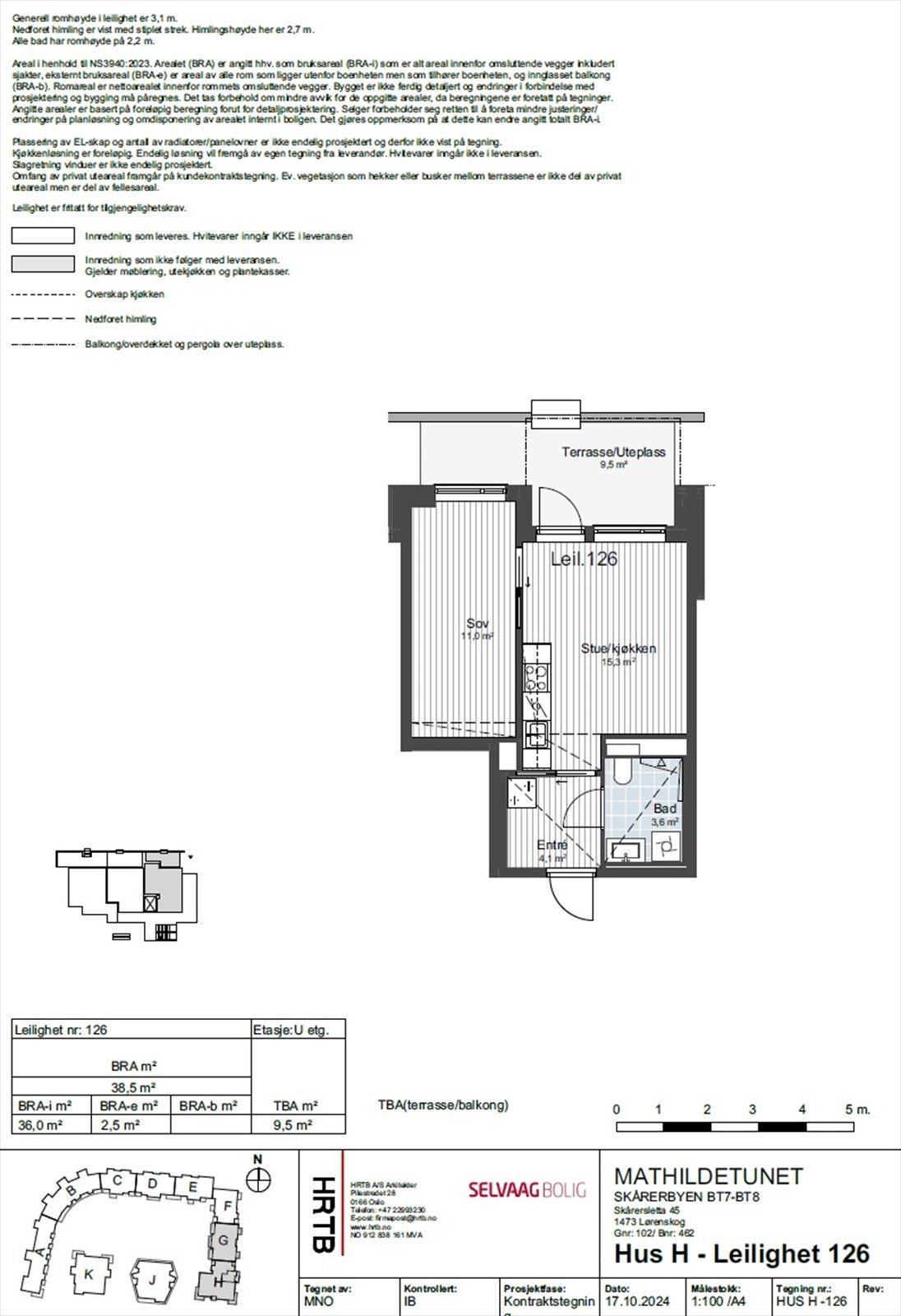
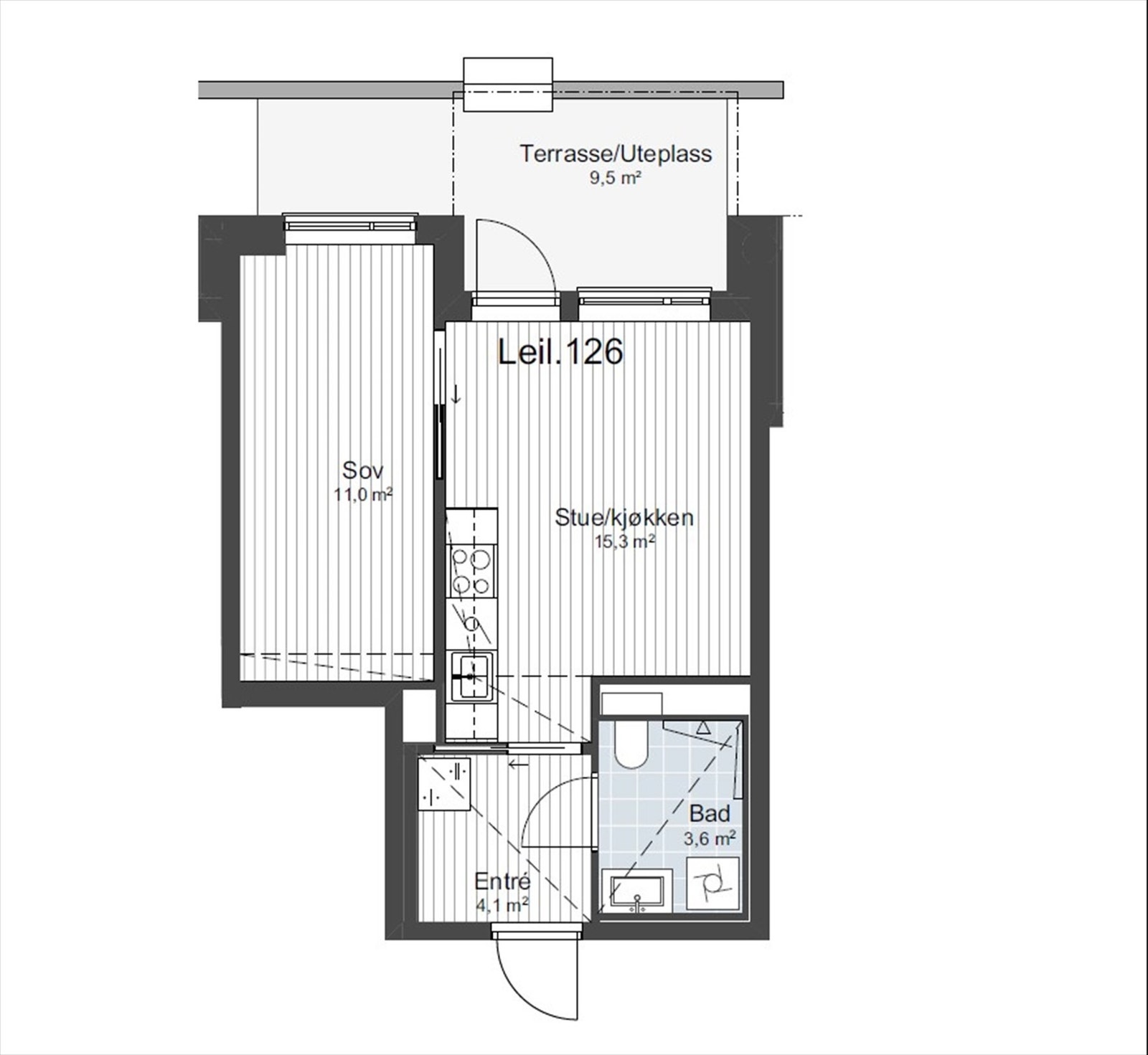
Dette er et videresalg av leilighet 126 i Hus H, i prosjektet Mathildetunet. En lekker 2-roms selveierleilighet beliggende i U-etasje/bakkeplan med markterrasse. Leiligheten byr på kvaliteter som lys en-stavs eikeparkett, generøs takhøyde på hele 3,1m og store vindusflater. Det er balansert ventilasjon sørger for godt inneklima og lave kostnader til oppvarming.
- Estimert ferdigstillelse nov 26 - jan 27
- Lav dokumentavgift. Kun kr. 17 020
- 2-roms selveierleilighet med østvendt terrasse på 9,5 m²
- God takhøyde på hele 3,1m i stue/soverom
- Stilrent kjøkken fra Sigdal
- En-stavs eikeparkett
- Godt isolert og balansert ventilasjon, som gir godt inneklima og lave kostnader til oppvarming
- 5 års utbyggergaranti
- Tilgang på fellesområder
- Svært sentral beliggenhet
- Estimert ferdigstillelse nov 26 - jan 27
- Lav dokumentavgift. Kun kr. 17 020
- 2-roms selveierleilighet med østvendt terrasse på 9,5 m²
- God takhøyde på hele 3,1m i stue/soverom
- Stilrent kjøkken fra Sigdal
- En-stavs eikeparkett
- Godt isolert og balansert ventilasjon, som gir godt inneklima og lave kostnader til oppvarming
- 5 års utbyggergaranti
- Tilgang på fellesområder
- Svært sentral beliggenhet
NB: Knappen for å vise hele beskrivelsen har kun en visuell effekt.
NB: Knappen for å vise hele beskrivelsen har kun en visuell effekt.
Salgsoppgaven beskriver vesentlig og lovpålagt informasjon om eiendommen
Se komplett salgsoppgaveNærområdet
Røisland & Co Eiendomsmegling AS
Tenk nytt - bo godt!
Annonseinformasjon
| FINN-kode | 454568685 |
|---|---|
| Sist endret | 12. mars 2026 11:48 |
| Referanse | RCOPS3.2633 |
Annonsene kan være mangelfulle i forhold til lovpålagt opplysningsplikt. Før bindende avtale inngås oppfordres interessenter til å innhente komplett informasjon fra meglerforetaket, selger eller utleier.















