Bildegalleri

Emir Resulbegovic v. Emera Eiendomsmegling ønsker velkommen til Bernt Ankers gate 31!
Midt i sentrum
Påkostet 3-roms over to plan med utleiedel | 10m² privat takterrasse | Nyetablert loftsetasje m. høy standard | GUA 130
Prisantydning12 000 000 kr
Nøkkelinfo
- Boligtype
- Leilighet
- Eieform
- Andel
- Soverom
- 3
- Internt bruksareal
- 115 m² (BRA-i)
- Bruksareal
- 115 m²
- Balkong/Terrasse
- 10 m² (TBA)
- Etasje
- 4
- Byggeår
- 1892
- Tomteareal
- 277 m² (eiet)
Fasiliteter
Takterrasse
Balkong/Terrasse
Barnevennlig
Kjæledyr tillatt
Offentlig vann/kloakk
Sentralt
Utsikt
Visning
Vi har påmelding til alle våre visninger. Dette gjør at eiendomsmegleren kan planlegge godt og gi personlig oppfølging til hver enkelt som kommer. For deg som vurderer å kjøpe bolig, betyr dette en mer ryddig og tilrettelagt visningsopplevelse. Påmelding og avmelding gjøres enkelt, og du er også velkommen til å ta kontakt med megleren i forkant dersom du har noe du lurer på.
VisningspåmeldingOm boligen
Velkommen til Bernt Ankers gate 31!
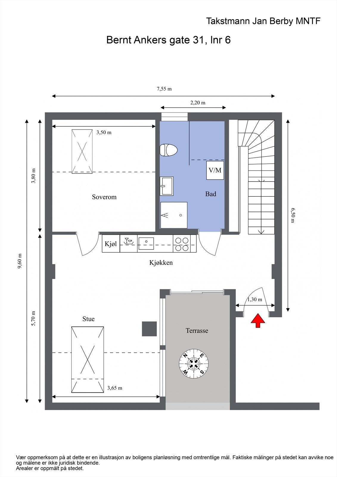
En innholdsrik og lekker 3-roms over to etasjer. Loftsetasjen ble etablert i 2024/2025 og har høy standard med stilrent kjøkken og bad. Takvinduer sørger for godt med naturlig lys, og herfra er det utgang til en helt privat takterrasse. I etasjen under er det en stor stue og et romslig soverom som tilhører hoveddelen.
Fra felles gang er det adkomst til en mulig utleiedel. Denne består av eget kjøkken, bad og et oppholdsrom, og gir gode muligheter for utleie eller fleksibel bruk.
- Vesentlig oppgradert i forbindelse med loftsutbyggingen i 2024/2025
- Privat takterrasse på 10 m²
- Stukkatur og rosett
- To kjøkken fra HTH
- To innganger - en i hver etasje
- Meget sentralt med alt av byens fasiliteter utenfor døren
- Ingen dok. avgift eller forkjøpsrett
En innholdsrik og lekker 3-roms over to etasjer. Loftsetasjen ble etablert i 2024/2025 og har høy standard med stilrent kjøkken og bad. Takvinduer sørger for godt med naturlig lys, og herfra er det utgang til en helt privat takterrasse. I etasjen under er det en stor stue og et romslig soverom som tilhører hoveddelen.
Fra felles gang er det adkomst til en mulig utleiedel. Denne består av eget kjøkken, bad og et oppholdsrom, og gir gode muligheter for utleie eller fleksibel bruk.
- Vesentlig oppgradert i forbindelse med loftsutbyggingen i 2024/2025
- Privat takterrasse på 10 m²
- Stukkatur og rosett
- To kjøkken fra HTH
- To innganger - en i hver etasje
- Meget sentralt med alt av byens fasiliteter utenfor døren
- Ingen dok. avgift eller forkjøpsrett
NB: Knappen for å vise hele beskrivelsen har kun en visuell effekt.
NB: Knappen for å vise hele beskrivelsen har kun en visuell effekt.
Salgsoppgaven beskriver vesentlig og lovpålagt informasjon om eiendommen
Se komplett salgsoppgaveNyttige lenker
Nærområdet
Emera eiendomsmegling
Annonseinformasjon
| FINN-kode | 454398822 |
|---|---|
| Sist endret | 09. mars 2026 15:58 |
| Referanse | EMERA2.25209 |
Annonsene kan være mangelfulle i forhold til lovpålagt opplysningsplikt. Før bindende avtale inngås oppfordres interessenter til å innhente komplett informasjon fra meglerforetaket, selger eller utleier.











































