Bildegalleri

Velkommen til Smalgangen 24 - Presentert av Andreas Bock v/ EIE eiendomsmegling | Foto: Nanna Wolden (Diakrit)
Solgt
Lys og moderne selveierleilighet nypusset opp i 2026 | 8 kvm solrik balkong | Umiddelbar nærhet til Oslo sentrum
Prisantydning4 790 000 kr
Nøkkelinfo
- Boligtype
- Leilighet
- Eieform
- Eier (Selveier)
- Soverom
- 1
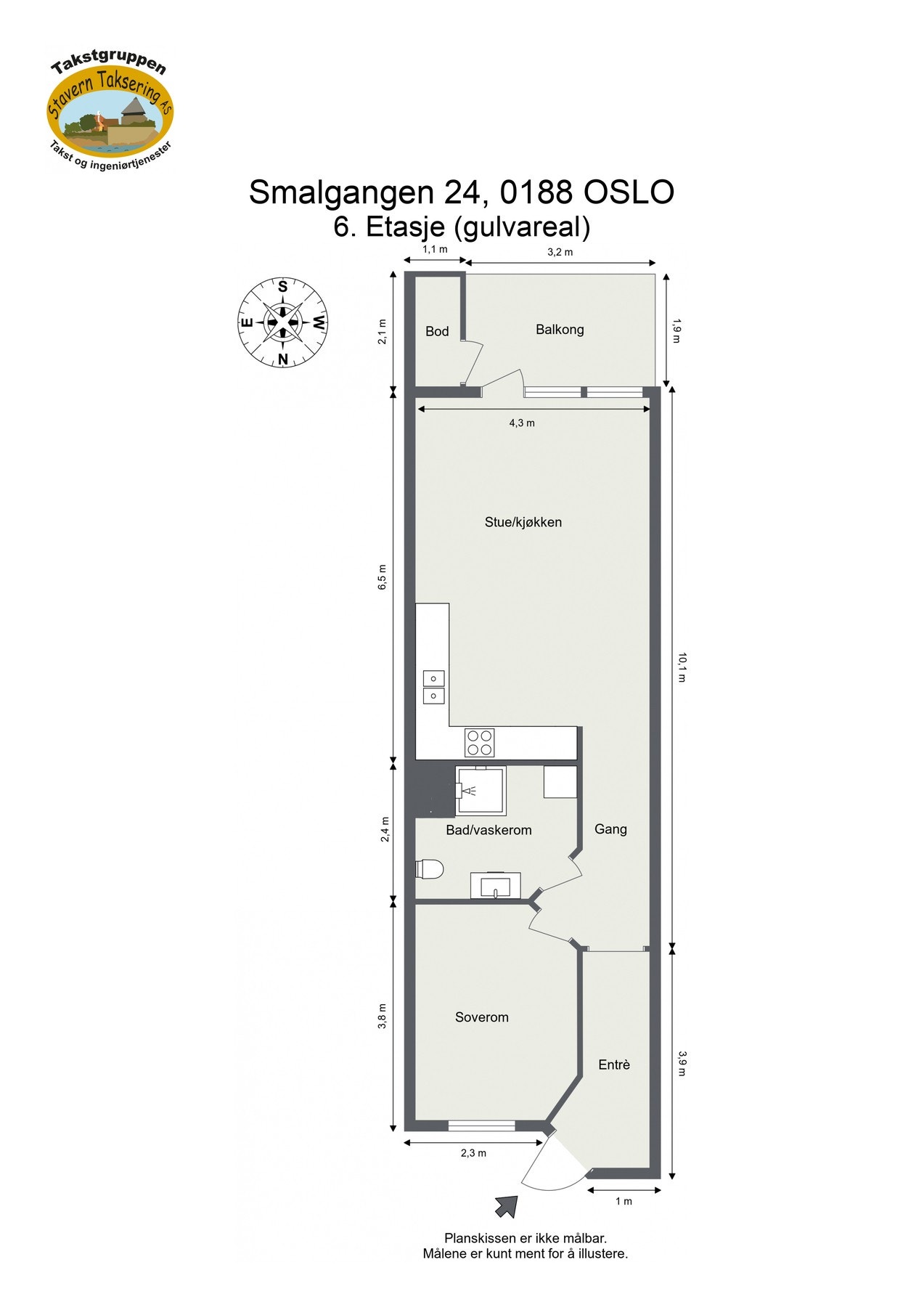
- Internt bruksareal
- 57 m² (BRA-i)
- Bruksareal
- 63 m²
- Eksternt bruksareal
- 6 m² (BRA-e)
- Balkong/Terrasse
- 8 m² (TBA)
- Etasje
- 6
- Byggeår
- 1992
- Energimerking
- E - Mørkegrønn
- Rom
- 2
- Tomteareal
- 8 053 m² (eiet)
Fasiliteter
Balkong/Terrasse
Kabel-TV
Heis
Offentlig vann/kloakk
Turterreng
Sentralt
Bredbåndstilknytning
Moderne
Om boligen
Velkommen til Smalgangen 24 - Presentert av Andreas Bock v/EIE eiendomsmegling
Dette er en lys og lekker leilighet, pusset opp i 2026 med gjennomgående, moderne standard. Leiligheten har sentral beliggenhet i Oslo sentrum, med gangavstand til alt du måtte trenge av nødvendige fasiliteter og servicetilbud. Videre er det flere flotte tur- og aktivitetsmuligheter i nærheten, blant annet flotte parkområder og turstier langs Akerselva.
Leiligheten inneholder en åpen stue-/kjøkkenløsning som sørger for et sosialt og åpent oppholdsrom, oppgradert bad med opplegg for vaskemaskin, et romslig soverom og en innbydende balkong hvor en enkelt kan nye late sommerdager.
Høydepunkter:
-Gjennomgående, moderne standard fra 2026
-Sørvendt balkong på 8 kvm
-Moderne kjøkkeninnredning med integrerte hvitevarer
-Super sentral beliggenhet med umiddelbar nærhet til "alt"
-Flere tur- og aktivitetsmuligheter i nærområdet
Velkommen til visning!
Mangler du egenkapital? Boligen kan kjøpes med Finit Deleie.
Dette er en lys og lekker leilighet, pusset opp i 2026 med gjennomgående, moderne standard. Leiligheten har sentral beliggenhet i Oslo sentrum, med gangavstand til alt du måtte trenge av nødvendige fasiliteter og servicetilbud. Videre er det flere flotte tur- og aktivitetsmuligheter i nærheten, blant annet flotte parkområder og turstier langs Akerselva.
Leiligheten inneholder en åpen stue-/kjøkkenløsning som sørger for et sosialt og åpent oppholdsrom, oppgradert bad med opplegg for vaskemaskin, et romslig soverom og en innbydende balkong hvor en enkelt kan nye late sommerdager.
Høydepunkter:
-Gjennomgående, moderne standard fra 2026
-Sørvendt balkong på 8 kvm
-Moderne kjøkkeninnredning med integrerte hvitevarer
-Super sentral beliggenhet med umiddelbar nærhet til "alt"
-Flere tur- og aktivitetsmuligheter i nærområdet
Velkommen til visning!
Mangler du egenkapital? Boligen kan kjøpes med Finit Deleie.
NB: Knappen for å vise hele beskrivelsen har kun en visuell effekt.
NB: Knappen for å vise hele beskrivelsen har kun en visuell effekt.
Salgsoppgaven beskriver vesentlig og lovpålagt informasjon om eiendommen
Se komplett salgsoppgaveNyttige lenker
Nærområdet
EIE eiendomsmegling Bærum
Annonseinformasjon
| FINN-kode | 454283952 |
|---|---|
| Sist endret | 19. mars 2026 23:30 |
| Referanse | 36260082 |
Annonsene kan være mangelfulle i forhold til lovpålagt opplysningsplikt. Før bindende avtale inngås oppfordres interessenter til å innhente komplett informasjon fra meglerforetaket, selger eller utleier.

























