Bildegalleri

Eiendomsmegler Krogsveen v/ Bjørn Erik Dørum-Persen har gleden av å presentere Øivinds vei 7!
ÅRVOLL
Lys og gjennomgående 3-roms toppleilighet med solrik, vestvendt balkong på 10 kvm-Sentral beliggenhet-Vv/fyring inkl.
Prisantydning4 550 000 kr
Nøkkelinfo
- Boligtype
- Leilighet
- Eieform
- Andel
- Soverom
- 2
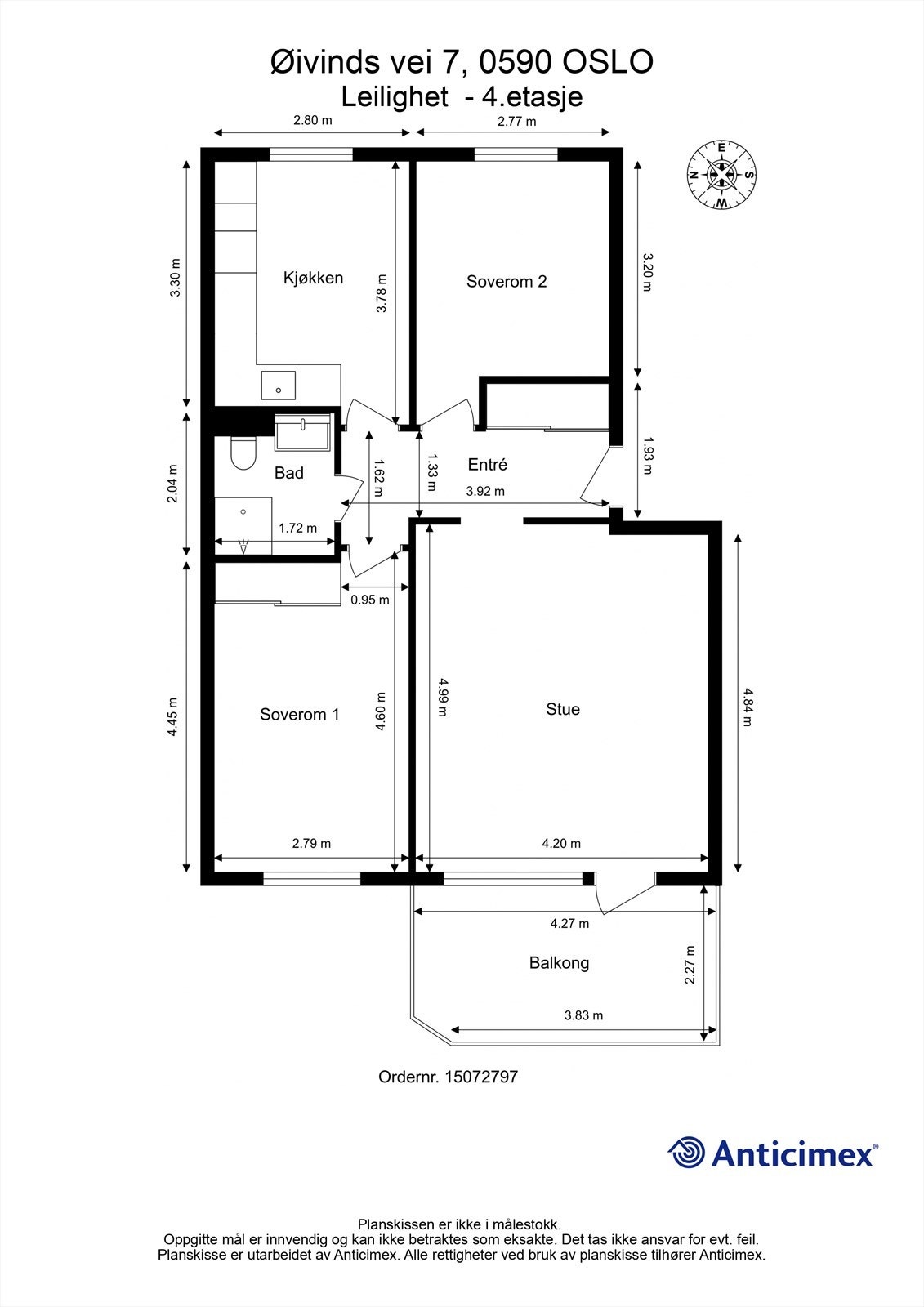
- Internt bruksareal
- 66 m² (BRA-i)
- Bruksareal
- 71 m²
- Eksternt bruksareal
- 5 m² (BRA-e)
- Balkong/Terrasse
- 10 m² (TBA)
- Etasje
- 4
- Byggeår
- 1955
- Energimerking
- D - Gul
- Rom
- 3
- Tomteareal
- 16 476 m² (eiet)
Fasiliteter
Alpinanlegg
Balkong/Terrasse
Barnevennlig
Bredbåndstilknytning
Kjæledyr tillatt
Offentlig vann/kloakk
Rolig
Sentralt
Vaktmester-/vektertjeneste
Turterreng
Om boligen
Velkommen til Øivinds vei 7 - en lys og gjennomgående 3-roms beliggende høyt og fritt i byggets øverste etasje med solrik vestvendt balkong på hele 10 kvm! Her får du bl.a lys stue med utgang til balkong, separat kjøkken, to gode soverom, pent baderom og praktisk entré med god lagringsplass.
Øivinds vei er en rolig enveiskjørt gate, omkranset av grøntarealer med kort vei til marka, butikker og offentlig transport. Her er det et ungt, sporty og godt bomiljø.
Dette er leiligheten for deg som ønsker kort vei til både sentrum og skogen, i rolige og barnevennlige omgivelser det er lett å finne seg til rette i.
Øivinds vei er en rolig enveiskjørt gate, omkranset av grøntarealer med kort vei til marka, butikker og offentlig transport. Her er det et ungt, sporty og godt bomiljø.
Dette er leiligheten for deg som ønsker kort vei til både sentrum og skogen, i rolige og barnevennlige omgivelser det er lett å finne seg til rette i.
- Lyst, separat kjøkken
- Vestvendt balkong på 10 kvm
- Nye vinduer/balk.dør
- Kjeller-/loftsbod på 4 kvm/10 kvm gulvareal
- Vv/fyr. inkl.
- Leie av p-plass etter venteliste
NB: Knappen for å vise hele beskrivelsen har kun en visuell effekt.
NB: Knappen for å vise hele beskrivelsen har kun en visuell effekt.
Salgsoppgaven beskriver vesentlig og lovpålagt informasjon om eiendommen
Se komplett salgsoppgaveNyttige lenker
Nærområdet
Krogsveen Årvoll
Verdien av en god megler.
Annonseinformasjon
| FINN-kode | 454245658 |
|---|---|
| Sist endret | 15. mars 2026 06:03 |
| Referanse | KR39.25127 |
Annonsene kan være mangelfulle i forhold til lovpålagt opplysningsplikt. Før bindende avtale inngås oppfordres interessenter til å innhente komplett informasjon fra meglerforetaket, selger eller utleier.


































