Bildegalleri

Eiendomsmegler Norge ved lokalmegler Elida Waage har stor glede av å presentere Knivhaugen 6!
Storebø
Flott enebolig m/svært sentral & attraktiv beliggenhet | Frittstående garasje & vinterhage | Vesentlig oppgradert i 2015
Prisantydning6 490 000 kr
Nøkkelinfo
- Boligtype
- Enebolig
- Eieform
- Eier (Selveier)
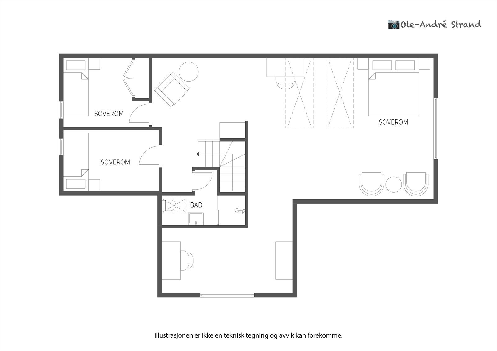
- Soverom
- 4
- Internt bruksareal
- 261 m² (BRA-i)
- Bruksareal
- 338 m²
- Eksternt bruksareal
- 77 m² (BRA-e)
- Balkong/Terrasse
- 48 m² (TBA)
- Etasje
- 3
- Byggeår
- 1952
- Rom
- 5
- Tomteareal
- 1 666 m² (eiet)
Fasiliteter
Balkong/Terrasse
Barnevennlig
Bredbåndstilknytning
Garasje/P-plass
Hage
Kjæledyr tillatt
Ingen gjenboere
Kabel-TV
Offentlig vann/kloakk
Parkett
Peis/Ildsted
Rolig
Sentralt
Lademulighet
Om boligen
Eiendomsmegler Norge ved lokalmegler Elida Waage har stor glede av å presentere Knivhaugen 6! En flott og innholdsrik enebolig med sjeldent attraktiv og sentral beliggenhet midt på Storebø! Her bor man i et etablert familienabolag med umiddelbar nærhet til alt man kan trenge i hverdagen!
Boligen gjennomgikk en vesentlig oppgradering i 2015. Herav med blant annet:
- Bytting av kledning, tak og div. vinduer.
- Oppgradering av det elektrisk anlegget.
- Nytt kjøkken og bygging av 3 bad.
- Bygget garasje (2015), vinterhage og ekstern bod (2017/2018).
Fra huset har man svært kort gangavstand til både skoler, barnehager, dagligvarebutikker, treningssenter og mye mer! Herfra også knappe 5 minutters kjøretid til Hufthamar Ferjekai.
Velkommen til visning onsdag 25.03 kl 17:30. Husk påmelding.
Boligen gjennomgikk en vesentlig oppgradering i 2015. Herav med blant annet:
- Bytting av kledning, tak og div. vinduer.
- Oppgradering av det elektrisk anlegget.
- Nytt kjøkken og bygging av 3 bad.
- Bygget garasje (2015), vinterhage og ekstern bod (2017/2018).
Fra huset har man svært kort gangavstand til både skoler, barnehager, dagligvarebutikker, treningssenter og mye mer! Herfra også knappe 5 minutters kjøretid til Hufthamar Ferjekai.
Velkommen til visning onsdag 25.03 kl 17:30. Husk påmelding.
NB: Knappen for å vise hele beskrivelsen har kun en visuell effekt.
NB: Knappen for å vise hele beskrivelsen har kun en visuell effekt.
Salgsoppgaven beskriver vesentlig og lovpålagt informasjon om eiendommen
Se komplett salgsoppgaveNyttige lenker
Nærområdet
Eiendomsmegler Norge Bergen Sentrum
Best der du bor
Annonsene kan være mangelfulle i forhold til lovpålagt opplysningsplikt. Før bindende avtale inngås oppfordres interessenter til å innhente komplett informasjon fra meglerforetaket, selger eller utleier.




























































