Bildegalleri

Hytta er skreddersydd til utsikten og nåværende eiers behov.
Store Arøya - Helgeroa
Sommerhus med rene linjer og flytende overganger mellom inne og ute.
Prisantydning10 300 000 kr
- Omkostninger
- 278 490 kr
- Totalpris
- 10 578 490 kr
- Kommunale avg.
- 12 429 kr per år
Nøkkelinfo
- Beliggenhet
- Ved sjøen
- Boligtype
- Hytte
- Eieform
- Eier (Selveier)
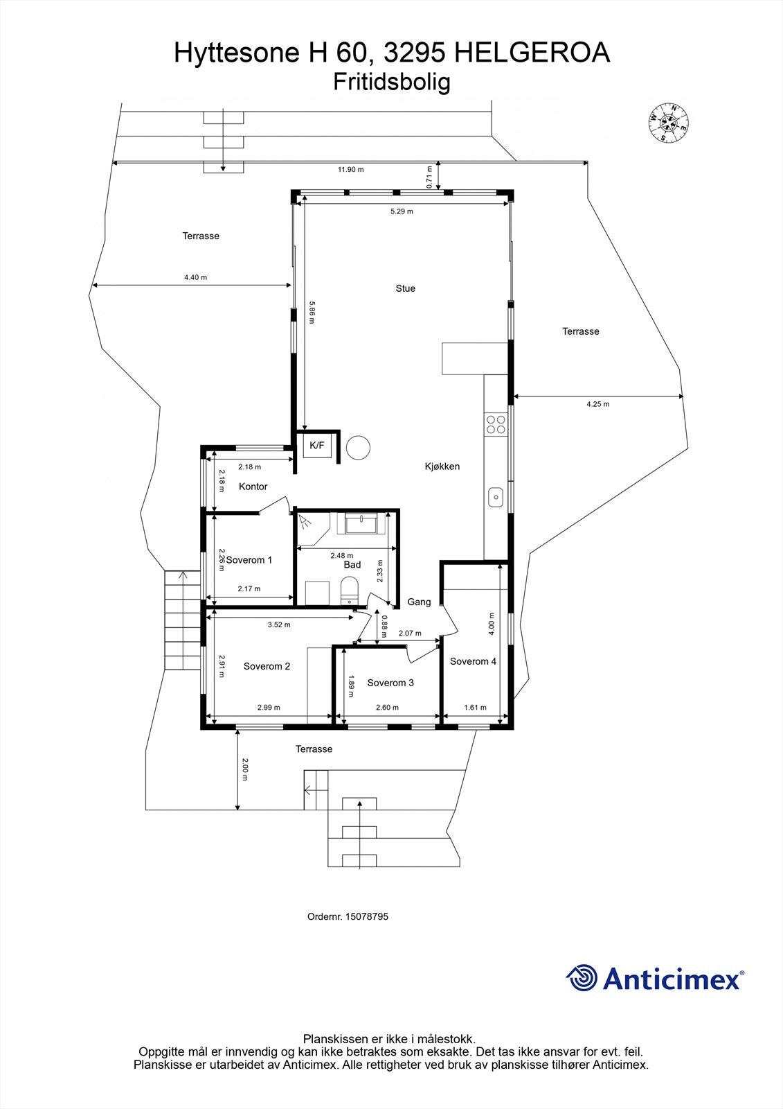
- Internt bruksareal
- 89 m² (BRA-i)
- Bruksareal
- 91 m²
- Eksternt bruksareal
- 2 m² (BRA-e)
- Balkong/Terrasse
- 132 m² (TBA)
- Tomteareal
- 1 260 m² (festet)
- Festeavgift
- 522 kr
- Byggeår
- 1986
- Soverom
- 4
- Rom
- 5
- Energimerking
- D - Gul
Fasiliteter
Barnevennlig
Peis/Ildsted
Rolig
Utsikt
Bademulighet
Fiskemulighet
Innlagt strøm
Offentlig vann/kloakk
Strandlinje
Turterreng
Visning
For å delta på visning, ber vi om at du melder deg på. Da sikrer vi at du får nødvendig informasjon og at det er satt av tilstrekkelig med tid. Kontakt megler dersom annet tidspunkt ønskes. Husk å lese salgsoppgaven før visningen, så du stiller forberedt. Oppmøte med felles båttransport fra Salen båthavn mellom Stathelle og Langesund. NB! Visning utgår dersom det ikke er noen påmeldte.
Ønsker du kun å bli holdt orientert, kan du fra eiendommens hjemmeside få varsel om solgtpris, eller kontakte megler.
VisningspåmeldingOm boligen
Når du åpner de store dørene mot skjærgården, slår lyder og dufter fra sjøen helt inn i sofakroken i hytta som ligger fint for seg selv på en kolle på Store Arøya, en øy mellom Helgeroa og Langesund i den ytre skjærgården. Denne hytta skiller seg ut. Hytta ble renovert i 2023 og det er gjort en betydelig innsats for å tilpasse hytta til terrenget, med et moderne og tidløst preg. Hytta har 4 soverom og hele 10 sengeplasser. Tomta grenser mot sjøen hvor det er brygge og en liten sjøbod. Like ved ligger en gammel nedlagt skole med gressletter for lek og ballspill. På øya er det fine turstier og kun 10 min å gå til områdets fineste sandstrand.
NB: Knappen for å vise hele beskrivelsen har kun en visuell effekt.
NB: Knappen for å vise hele beskrivelsen har kun en visuell effekt.
Salgsoppgaven beskriver vesentlig og lovpålagt informasjon om eiendommen
Se komplett salgsoppgaveNyttige lenker
Nærområdet
Krogsveen Bamble og Porsgrunn
Verdien av en god megler.
Annonseinformasjon
| FINN-kode | 454098594 |
|---|---|
| Sist endret | 07. mars 2026 08:07 |
| Referanse | KR28.263 |
Annonsene kan være mangelfulle i forhold til lovpålagt opplysningsplikt. Før bindende avtale inngås oppfordres interessenter til å innhente komplett informasjon fra meglerforetaket, selger eller utleier.























































