Bildegalleri

Nordvik Bolig v/Michael Boxill har gleden av presentere Havørnbrautene 50C!! Foto: Per Bendiksen.
Kvernevik
Familievennlig rekkehus med tre soverom, vestvendt balkong og terrasse i etablert boligområde
Prisantydning3 700 000 kr
Nøkkelinfo
- Boligtype
- Rekkehus
- Eieform
- Andel
- Soverom
- 3
- Internt bruksareal
- 139 m² (BRA-i)
- Bruksareal
- 155 m²
- Eksternt bruksareal
- 16 m² (BRA-e)
- Balkong/Terrasse
- 30 m² (TBA)
- Etasje
- 3
- Byggeår
- 1967
- Energimerking
- Rom
- 4
- Tomteareal
- 9 404 m² (eiet)
Fasiliteter
Balkong/Terrasse
Barnevennlig
Bredbåndstilknytning
Garasje/P-plass
Hage
Kjæledyr tillatt
Kabel-TV
Offentlig vann/kloakk
Parkett
Rolig
Vaktmester-/vektertjeneste
Bademulighet
Turterreng
Balansert ventilasjon
Visning
torsdag, 19. mars
16:30 – 17:00
Alle våre visninger har påmelding. På denne måten sikrer vi at megler har god oversikt og tid til å imøtekomme alle interessenter. Meld deg på visning ved å trykke på lenken visningspåmelding.
VisningspåmeldingOm boligen
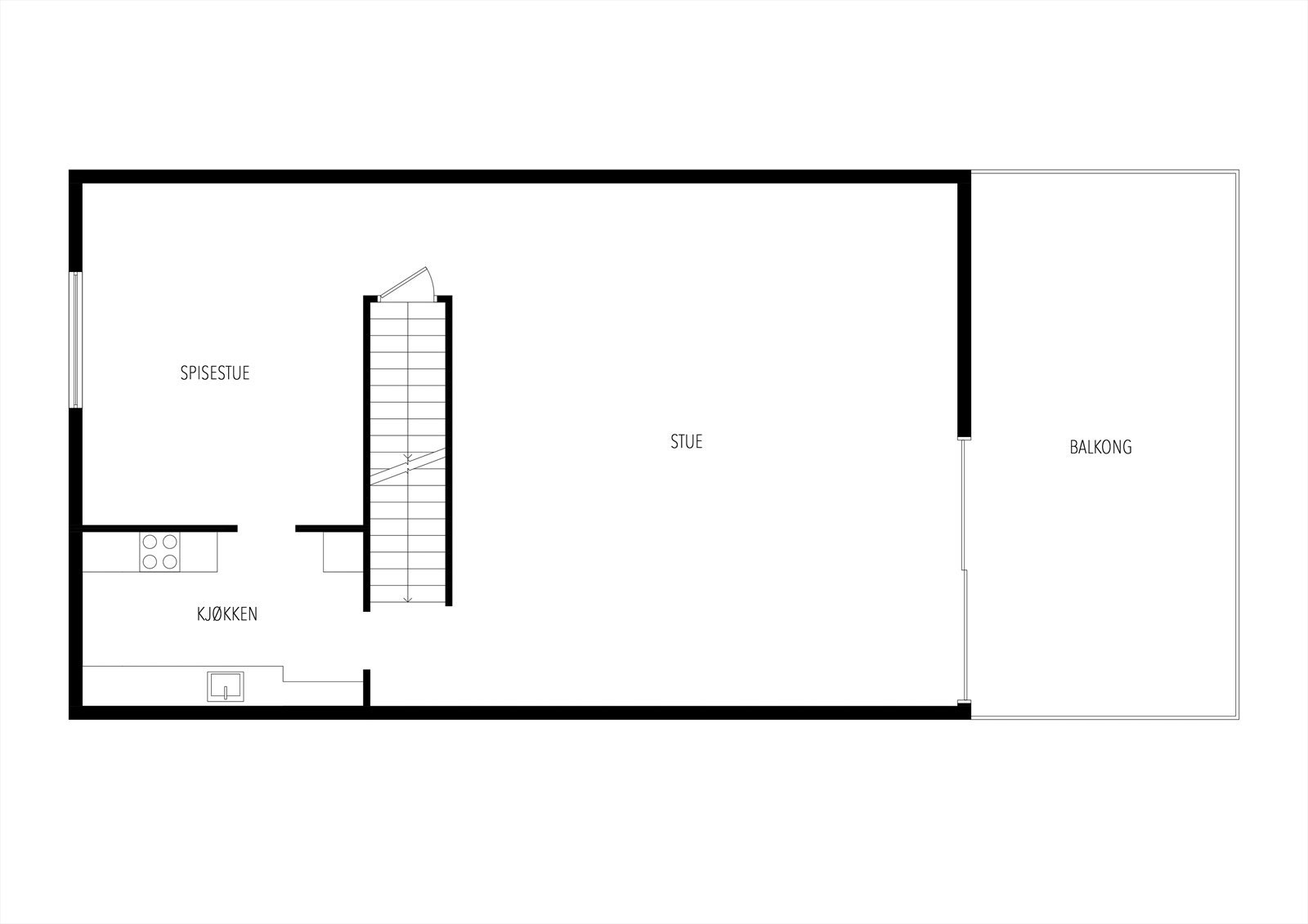
Havørnbrautene 50C er et romslig og familievennlig rekkehus med funksjonell planløsning og gode uteområder. Boligen ligger i et etablert boligområde i Kvernevik, kjent for rolige omgivelser og gode oppvekstvilkår.
- Lys og romslig stue med godt lysinnslipp
- Funksjonell og praktisk planløsning
- Vestvendt balkong og romslig terrasse med gode solforhold
- Tre gode soverom
- Separat kjøkken med god skap og benkeplass
- Rolig og etablert boligområde
- Parkering i garasje samt biloppstillingsplass i gårdsrom
- Gode oppbevaringsmuligheter i boligen
- Kort vei til skole, barnehage og dagligvare.
- Gode tur og rekreasjonsmuligheter i nærområdet
NB: Knappen for å vise hele beskrivelsen har kun en visuell effekt.
NB: Knappen for å vise hele beskrivelsen har kun en visuell effekt.
Salgsoppgaven beskriver vesentlig og lovpålagt informasjon om eiendommen
Se komplett salgsoppgaveNyttige lenker
Nærområdet
Nordvik Stavanger
Vi vet hva det er verdt
Annonseinformasjon
| FINN-kode | 454095396 |
|---|---|
| Sist endret | 09. mars 2026 20:58 |
| Referanse | 43-0052/26 |
Annonsene kan være mangelfulle i forhold til lovpålagt opplysningsplikt. Før bindende avtale inngås oppfordres interessenter til å innhente komplett informasjon fra meglerforetaket, selger eller utleier.







































