Bildegalleri

Velkommen til Eidsbakkadn 20 - En stor, innholdsrik enebolig med svært god beliggenhet og en utsikt som bare må oppleves. God, moderne standard.
Sand/Eide
Stor, pent oppusset enebolig med svært fin beliggenhet. Panoramautsikt.
Prisantydning4 700 000 kr
Nøkkelinfo
- Boligtype
- Enebolig
- Eieform
- Eier (Selveier)
- Soverom
- 5
- Internt bruksareal
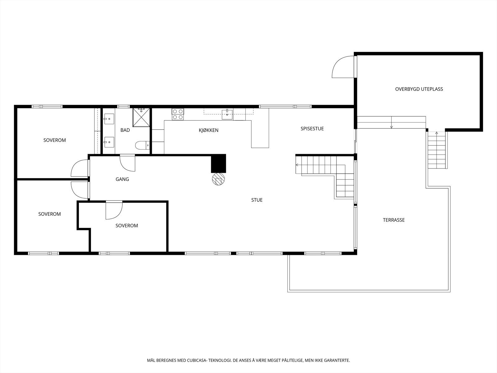
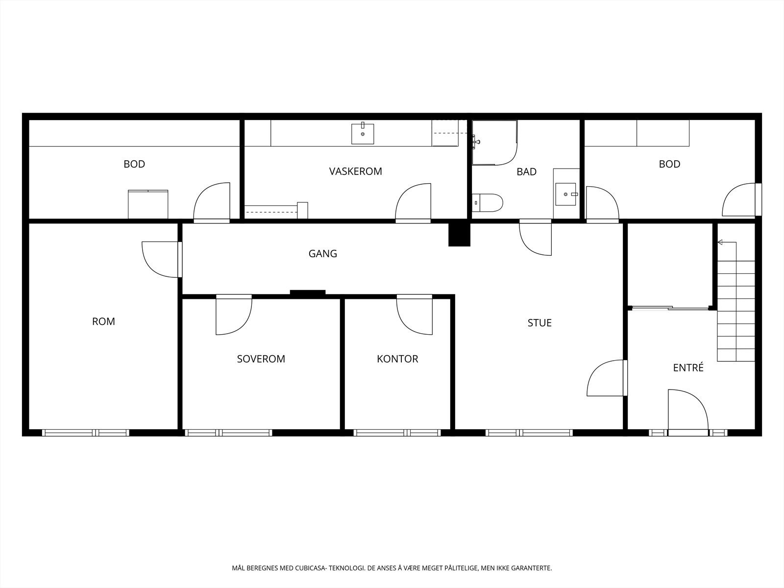
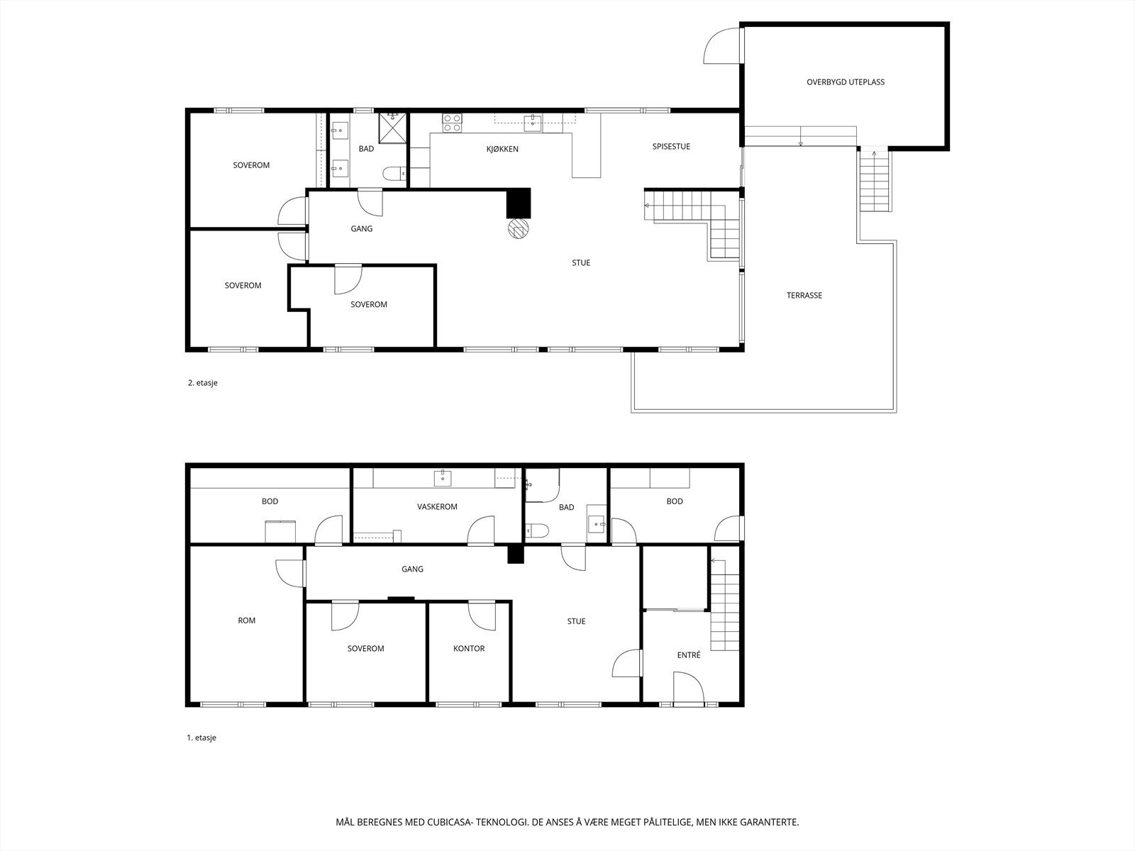
- 227 m² (BRA-i)
- Bruksareal
- 227 m²
- Balkong/Terrasse
- 56 m² (TBA)
- Byggeår
- 1976
- Energimerking
- Rom
- 7
- Tomteareal
- 888 m² (eiet)
Fasiliteter
Balkong/Terrasse
Barnevennlig
Garasje/P-plass
Hage
Offentlig vann/kloakk
Parkett
Peis/Ildsted
Rolig
Sentralt
Utsikt
Bademulighet
Fiskemulighet
Turterreng
Om boligen
Boligen er omfattende og pent oppusset og modernisert gjennom de siste år. Her er det tidsriktige løsninger, farger og materialvalg, samt en god, praktisk og familievennlig planløsning. Her er det plass nok for de fleste.
Stue med god takhøyde og store vinduer. Pene enstavs gulv. Åpen løsning mot kjøkken og spiseplass. Lekkert kjøkken med god skap- og benkeplass. Integrerte hvitevarer. Delikate bad. Praktisk vaskerom +++ Kledning og vinduer skiftet. Oppdatert el.anlegg.
Boligen ligger avskjermet, barnevennlig og nydelig til i etablert boligfelt, med nærhet til skole, barnehage og idrettsområde.
Gode solforhold og en panoramautsikt som bare må oppleves.
Flotte uteplasser.
Stue med god takhøyde og store vinduer. Pene enstavs gulv. Åpen løsning mot kjøkken og spiseplass. Lekkert kjøkken med god skap- og benkeplass. Integrerte hvitevarer. Delikate bad. Praktisk vaskerom +++ Kledning og vinduer skiftet. Oppdatert el.anlegg.
Boligen ligger avskjermet, barnevennlig og nydelig til i etablert boligfelt, med nærhet til skole, barnehage og idrettsområde.
Gode solforhold og en panoramautsikt som bare må oppleves.
Flotte uteplasser.
NB: Knappen for å vise hele beskrivelsen har kun en visuell effekt.
NB: Knappen for å vise hele beskrivelsen har kun en visuell effekt.
Salgsoppgaven beskriver vesentlig og lovpålagt informasjon om eiendommen
Se komplett salgsoppgaveNyttige lenker
Nærområdet
EiendomsMegler 1 Madla
En del av Sparebank 1 Sør-Norge
Annonseinformasjon
| FINN-kode | 454093415 |
|---|---|
| Sist endret | 06. mars 2026 20:14 |
| Referanse | 2205260067 |
Annonsene kan være mangelfulle i forhold til lovpålagt opplysningsplikt. Før bindende avtale inngås oppfordres interessenter til å innhente komplett informasjon fra meglerforetaket, selger eller utleier.


























































































