Bildegalleri

DNB Eiendom ved Malin Bruer har gleden av og presentere Råstykkje 9!
Sørumsand
Moderne kjedet enebolig fra 2015 i barnevennlig område | Nyere kjøkken (2022) | Hage m/ uteplasser | Garasje
Prisantydning5 700 000 kr
Nøkkelinfo
- Boligtype
- Enebolig
- Eieform
- Eier (Selveier)
- Soverom
- 3
- Internt bruksareal
- 132 m² (BRA-i)
- Bruksareal
- 156 m²
- Eksternt bruksareal
- 24 m² (BRA-e)
- Balkong/Terrasse
- 25 m² (TBA)
- Etasje
- 2
- Byggeår
- 2015
- Energimerking
- Rom
- 4
- Tomteareal
- 240 m² (eiet)
Fasiliteter
Balkong/Terrasse
Barnevennlig
Garasje/P-plass
Offentlig vann/kloakk
Peis/Ildsted
Sentralt
Turterreng
Balansert ventilasjon
Visning
søndag, 22. mars
12:00 – 13:00
Velkommen til visning! Meld deg på ved å trykke "visningspåmelding" i våre boligannonser. Visning med megler til stede vil ikke bli avholdt uten påmeldinger. Ta gjerne kontakt med megler i forkant av visningen om du har spørsmål.
VisningspåmeldingOm boligen
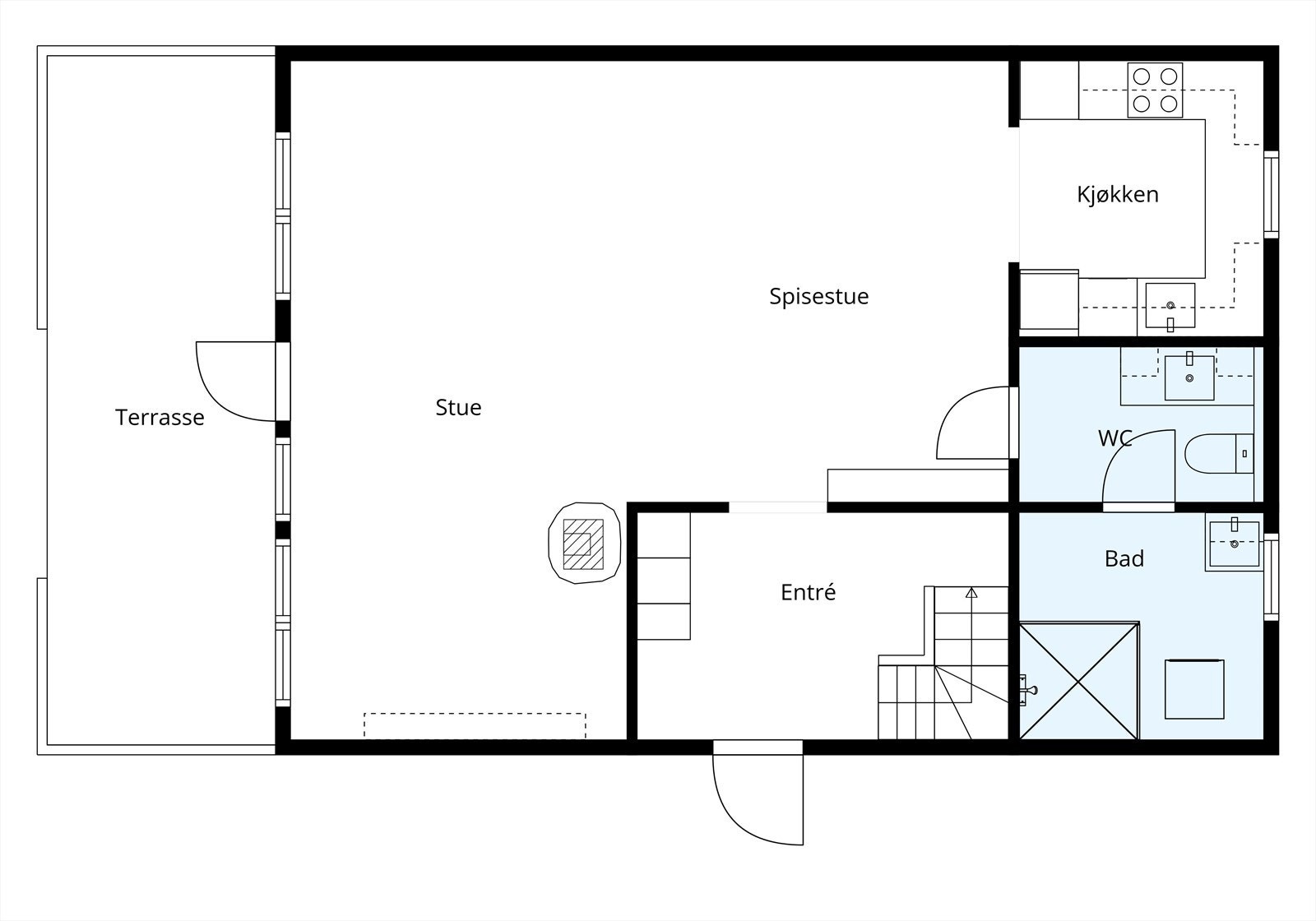
Velkommen til Råstykkje 9! Dette er en moderne og innholdsrik kjedet enebolig.
Her bor man i et veletablert og barnevennlig nabolag med trygg gangavstand til skoler og barnehager. Boligen fra 2015 har en sosial førsteetasje med et moderne kjøkken fra 2022. Nyt gode solforhold på to uteplasser og dra nytte av garasje med hems for ekstra lagring. Fra Sørumsand stasjon er det kun en kort togtur til Lillestrøm og Oslo.
Verdt å merke seg:
- Kjedet enebolig over to plan
- Oppgradert kjøkken (2022) med integrerte hvitevarer
- Garasje med hems og elektrisk portåpner
- To uteplasser med gode solforhold
- Balansert ventilasjon og vedovn i stuen
- Barnevennlig med trygg skolevei
- Kort vei til idrett, butikker og togstasjon
- Gode turområder i nærområdet
Velkommen til visning!
Her bor man i et veletablert og barnevennlig nabolag med trygg gangavstand til skoler og barnehager. Boligen fra 2015 har en sosial førsteetasje med et moderne kjøkken fra 2022. Nyt gode solforhold på to uteplasser og dra nytte av garasje med hems for ekstra lagring. Fra Sørumsand stasjon er det kun en kort togtur til Lillestrøm og Oslo.
Verdt å merke seg:
- Kjedet enebolig over to plan
- Oppgradert kjøkken (2022) med integrerte hvitevarer
- Garasje med hems og elektrisk portåpner
- To uteplasser med gode solforhold
- Balansert ventilasjon og vedovn i stuen
- Barnevennlig med trygg skolevei
- Kort vei til idrett, butikker og togstasjon
- Gode turområder i nærområdet
Velkommen til visning!
NB: Knappen for å vise hele beskrivelsen har kun en visuell effekt.
NB: Knappen for å vise hele beskrivelsen har kun en visuell effekt.
Salgsoppgaven beskriver vesentlig og lovpålagt informasjon om eiendommen
Se komplett salgsoppgaveNyttige lenker
Nærområdet
DNB Eiendom AS
Verdifulle salg
Annonseinformasjon
| FINN-kode | 454087406 |
|---|---|
| Sist endret | 18. mars 2026 07:43 |
| Referanse | 303260142 |
Annonsene kan være mangelfulle i forhold til lovpålagt opplysningsplikt. Før bindende avtale inngås oppfordres interessenter til å innhente komplett informasjon fra meglerforetaket, selger eller utleier.
















































