Bildegalleri

Velkommen til Sinsen og denne flotte leiligheten! Foto: Alexander Granlie | @boliggram. Bildet er KI-generert og ment som illustrasjon. Avvik kan forekomme.
SINSEN
Vakker og lys 2-R med solrik, sydvestvendt balkong - Oppusset i 2022/24 - Grønne omgivelser - Fyring/VV + internett ink.
Prisantydning3 960 000 kr
Nøkkelinfo
- Boligtype
- Leilighet
- Eieform
- Andel
- Soverom
- 1
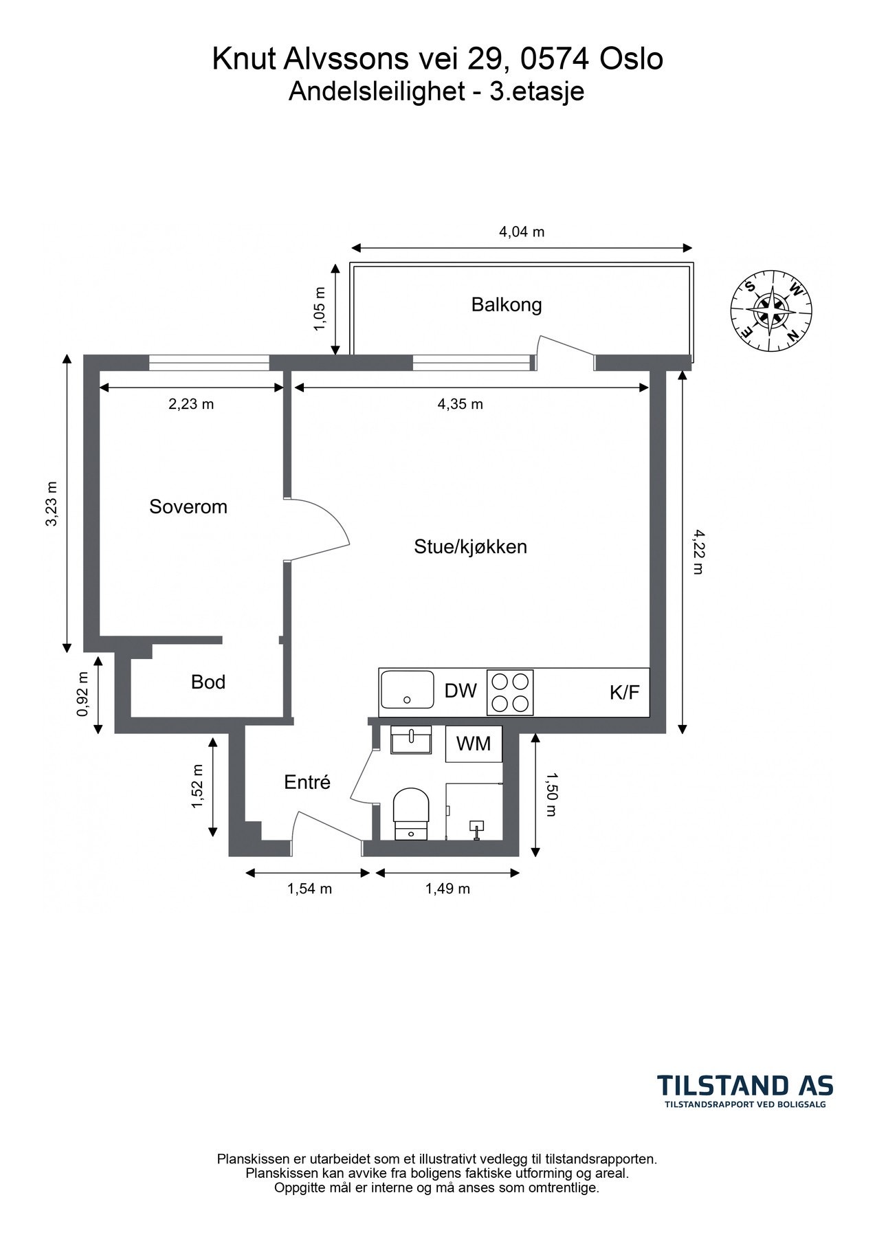
- Internt bruksareal
- 33 m² (BRA-i)
- Bruksareal
- 37 m²
- Eksternt bruksareal
- 4 m² (BRA-e)
- Balkong/Terrasse
- 4 m² (TBA)
- Etasje
- 3
- Byggeår
- 1936
- Energimerking
- C - Lysegrønn
- Rom
- 2
- Tomteareal
- 3 006 m² (eiet)
Fasiliteter
Balkong/Terrasse
Garasje/P-plass
Offentlig vann/kloakk
Turterreng
Vaktmester-/vektertjeneste
Fellesvaskeri
Sentralt
Bredbåndstilknytning
Moderne
Rolig
Om boligen
Velkommen til Sinsen og denne nydelige leiligheten. Her får du med en gang den gode følelsen - denne kommer du til å like!
Dette er en vakker og lys 2-roms med en sentral og populær beliggenhet i grønne omgivelser. Leiligheten ligger luftig til i 3. etasje og har verdifulle kvaliteter som sydvestvendt balkong med svært gode solforhold, originale tregulv, god takhøyde og store vindusflater som slipper inn godt med dagslys.
Leiligheten er betydelig påkostet og oppusset de senere år. I 2022 ble det blant annet montert nytt, delikat kjøkken, de originale gulvene slipt og overflater sparklet og malt i moderne fargetoner. I 2024 ble det oppført balkong og montert nye vinduer og balkongdør.
- Skjermet beliggenhet med grønt og frodig utsyn
- Høyt og luftig i 3. etasje
- Sydvestvendt balkong med gode solforhold
- Originale tregulv
- Flott kjøkken fra 2022
- Ny balkong, vinduer og balkongdør i 2024
- Oppvarming (fyring), varmtvann og internett inkl.
- Sentralt og godt kollektivtilbud
Dette er en vakker og lys 2-roms med en sentral og populær beliggenhet i grønne omgivelser. Leiligheten ligger luftig til i 3. etasje og har verdifulle kvaliteter som sydvestvendt balkong med svært gode solforhold, originale tregulv, god takhøyde og store vindusflater som slipper inn godt med dagslys.
Leiligheten er betydelig påkostet og oppusset de senere år. I 2022 ble det blant annet montert nytt, delikat kjøkken, de originale gulvene slipt og overflater sparklet og malt i moderne fargetoner. I 2024 ble det oppført balkong og montert nye vinduer og balkongdør.
- Skjermet beliggenhet med grønt og frodig utsyn
- Høyt og luftig i 3. etasje
- Sydvestvendt balkong med gode solforhold
- Originale tregulv
- Flott kjøkken fra 2022
- Ny balkong, vinduer og balkongdør i 2024
- Oppvarming (fyring), varmtvann og internett inkl.
- Sentralt og godt kollektivtilbud
NB: Knappen for å vise hele beskrivelsen har kun en visuell effekt.
NB: Knappen for å vise hele beskrivelsen har kun en visuell effekt.
Salgsoppgaven beskriver vesentlig og lovpålagt informasjon om eiendommen
Se komplett salgsoppgaveNyttige lenker
Nærområdet
EIE eiendomsmegling Ullevål & Sagene
Annonseinformasjon
| FINN-kode | 454085269 |
|---|---|
| Sist endret | 18. mars 2026 05:04 |
| Referanse | 15260064 |
Annonsene kan være mangelfulle i forhold til lovpålagt opplysningsplikt. Før bindende avtale inngås oppfordres interessenter til å innhente komplett informasjon fra meglerforetaket, selger eller utleier.
































