Bildegalleri

Boligen i Haugane 28B ligger i en rolig blindvei øverst på Tranby, med sol og utsikt.
Solgt
Tranby
Moderne rekkehusleilighet over to plan med garasje m/lader og flott utsikt fra egen veranda. Bad pusset opp i 2022.
Prisantydning4 700 000 kr
Nøkkelinfo
- Boligtype
- Rekkehus
- Eieform
- Eier (Selveier)
- Soverom
- 2
- Internt bruksareal
- 114 m² (BRA-i)
- Bruksareal
- 133 m²
- Eksternt bruksareal
- 19 m² (BRA-e)
- Balkong/Terrasse
- 18 m² (TBA)
- Etasje
- 2
- Byggeår
- 1993
- Energimerking
- Rom
- 3
- Tomteareal
- 1 765 m² (eiet)
Fasiliteter
Balkong/Terrasse
Barnevennlig
Garasje/P-plass
Kjæledyr tillatt
Offentlig vann/kloakk
Peis/Ildsted
Rolig
Sentralt
Utsikt
Turterreng
Lademulighet
Om boligen
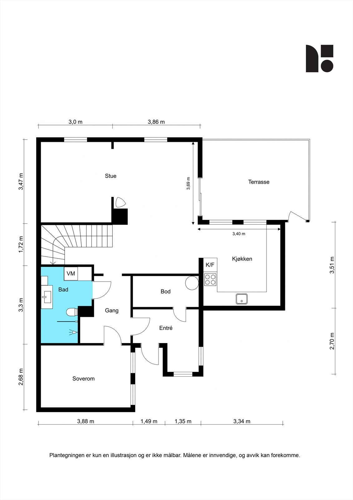
Moderne og svært tiltalende leilighet over to plan i koselig rekkehus. Leiligheten har trappefri adkomst, garasjeplass med el.bil-lader foran inngangspartiet og en sydvestvendt veranda med sol og utsikt. I inngangsetasjen har man entré/gang, delikat bad - pusset opp i 2022, soverom, todelt stue (opprinnelig stue og soverom) samt et separat kjøkken. Stort loft med trappeadkomst med bl.a. to rom benyttet som soverom (ikke godkjent).
Meget barnevennlig beliggende med kort vei til turområder, samtidig som buss, butikker og gode servicetilbud er lett tilgjengelig. De minste kan sykle til barneskolen på under 10 min, og det er også kort vei til ungdomsskolen på Tranby, flere barnehager og gode fritidsaktiviteter.
Meget barnevennlig beliggende med kort vei til turområder, samtidig som buss, butikker og gode servicetilbud er lett tilgjengelig. De minste kan sykle til barneskolen på under 10 min, og det er også kort vei til ungdomsskolen på Tranby, flere barnehager og gode fritidsaktiviteter.
NB: Knappen for å vise hele beskrivelsen har kun en visuell effekt.
NB: Knappen for å vise hele beskrivelsen har kun en visuell effekt.
Salgsoppgaven beskriver vesentlig og lovpålagt informasjon om eiendommen
Se komplett salgsoppgaveNyttige lenker
Nærområdet
Proaktiv Eiendomsmegling Drammen, Lier & Holmestrand
Alltid tid til deg
Annonseinformasjon
| FINN-kode | 454084934 |
|---|---|
| Sist endret | 17. mars 2026 12:17 |
| Referanse | 1600260062 |
Annonsene kan være mangelfulle i forhold til lovpålagt opplysningsplikt. Før bindende avtale inngås oppfordres interessenter til å innhente komplett informasjon fra meglerforetaket, selger eller utleier.


































