Bildegalleri

EiendomsMegler1 v/Margareth Jensen har gleden av å presentere Eikebergvegen 7 for salg.
Tjelta
Flott og romslig rekkehus med god standard. 2 stuer. 4 soverom. 2 bad. Garasje.
Prisantydning5 500 000 kr
Nøkkelinfo
- Boligtype
- Rekkehus
- Eieform
- Eier (Selveier)
- Soverom
- 4
- Internt bruksareal
- 146 m² (BRA-i)
- Bruksareal
- 165 m²
- Eksternt bruksareal
- 19 m² (BRA-e)
- Balkong/Terrasse
- 91 m² (TBA)
- Byggeår
- 2013
- Energimerking
- Rom
- 6
- Tomteareal
- 198 m² (eiet)
Fasiliteter
Balkong/Terrasse
Barnevennlig
Bredbåndstilknytning
Garasje/P-plass
Rolig
Utsikt
Turterreng
Visning
mandag, 16. mars
16:00 – 17:00
Ønsker du å delta på visningen ber vi deg melde deg på slik at vi vet at du kommer. Da kan vi bistå alle best mulig og gi deg tiden du trenger på visningen. Kontakt gjerne megler før visning hvis du har spørsmål. Visningen avholdes bare dersom det er påmeldte. Hvis det ikke er oppsatt visningstidspunkt eller tidspunkt ikke passer, kontakt megler.
VisningspåmeldingOm boligen
Velholdt og moderne bolig med en gjennomtenkt planløsning fordelt over tre etasjer. Boligen byr på lyse og luftige rom og har vedovn og varmepumpe som oppvarmingskilde.
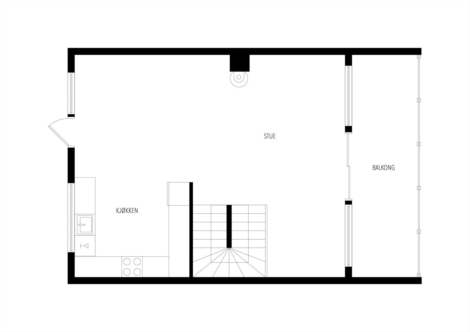
1. etasje består av en innbydende stue og et kjøkken i åpen løsning som er utstyrt med integrerte hvitevarer. Det er utgang til stor balkong fra kjøkkenet. Også fra stuen er det utgang til en romslig balkong som innbyr til hygge og utsikt over de landlige omgivelsene. I 2. etasje finner man en lys og luftig loftstue med store vindusflater som gir fantastisk utsikt. Denne etasjen har også tre romslige soverom og et lekkert, flislagt baderom. Underetasjen har en romslig hall med skyvedørsgarderobe samt ett fjerde soverom og et flislagt bad/vaskerom. Uteområdene er lettstelte og det er parkering i garasje. Velkommen!
1. etasje består av en innbydende stue og et kjøkken i åpen løsning som er utstyrt med integrerte hvitevarer. Det er utgang til stor balkong fra kjøkkenet. Også fra stuen er det utgang til en romslig balkong som innbyr til hygge og utsikt over de landlige omgivelsene. I 2. etasje finner man en lys og luftig loftstue med store vindusflater som gir fantastisk utsikt. Denne etasjen har også tre romslige soverom og et lekkert, flislagt baderom. Underetasjen har en romslig hall med skyvedørsgarderobe samt ett fjerde soverom og et flislagt bad/vaskerom. Uteområdene er lettstelte og det er parkering i garasje. Velkommen!
NB: Knappen for å vise hele beskrivelsen har kun en visuell effekt.
NB: Knappen for å vise hele beskrivelsen har kun en visuell effekt.
Salgsoppgaven beskriver vesentlig og lovpålagt informasjon om eiendommen
Se komplett salgsoppgaveNyttige lenker
Nærområdet
EiendomsMegler 1 Sola
En del av Sparebank 1 Sør-Norge
Annonseinformasjon
| FINN-kode | 454084218 |
|---|---|
| Sist endret | 06. mars 2026 13:43 |
| Referanse | 2210260019 |
Annonsene kan være mangelfulle i forhold til lovpålagt opplysningsplikt. Før bindende avtale inngås oppfordres interessenter til å innhente komplett informasjon fra meglerforetaket, selger eller utleier.
































