Bildegalleri

Michael R. Myhre presenterer Snorres gate 8C! | Fotograf Arve Gravdal.
Arkitekttegnet kvalitetsbolig ved Møllebukta med sjøutsikt og utleiemulighet.
Prisantydning11 950 000 kr
Nøkkelinfo
- Boligtype
- Enebolig
- Eieform
- Eier (Selveier)
- Soverom
- 5
- Internt bruksareal
- 187 m² (BRA-i)
- Bruksareal
- 221 m²
- Eksternt bruksareal
- 5 m² (BRA-e)
- Innglasset balkong
- 29 m² (BRA-b)
- Balkong/Terrasse
- 20 m² (TBA)
- Byggeår
- 2012
- Energimerking
- B - Rød
- Rom
- 8
- Tomteareal
- 409 m² (eiet)
Fasiliteter
Barnevennlig
Balkong/Terrasse
Garasje/P-plass
Offentlig vann/kloakk
Parkett
Turterreng
Utsikt
Moderne
Rolig
Balansert ventilasjon
Om boligen
Michael R. Myhre presenterer Snorres gate 8C
Velkommen til en moderne og funksjonell enebolig tegnet av arkitekt Jone Vistnes, med attraktiv beliggenhet på Madla. Boligen holder høy standard og er usedvanlig lys og luftig, med blant annet atrium, takvinduer og imponerende takhøyde i stuen. Underetasjen gir fleksible bruksmuligheter, enten som en integrert del av boligen for en større familie, som egen ungdoms- eller gjesteavdeling eller som utleieleilighet. Eiendommen ligger attraktivt til med kort vei til Møllebukta, flotte turstier og gode servicetilbud
Om boligen
- Takterrasse med foldedører fra stuen og glassoverbygg som kan åpnes
- Dobbel carport med elbillader og direkte tilgang til boligen
- Hoveddel med 2 bad, 2 WC, vaskerom, hems i tilknytning til stuen og mulighet for 4 soverom
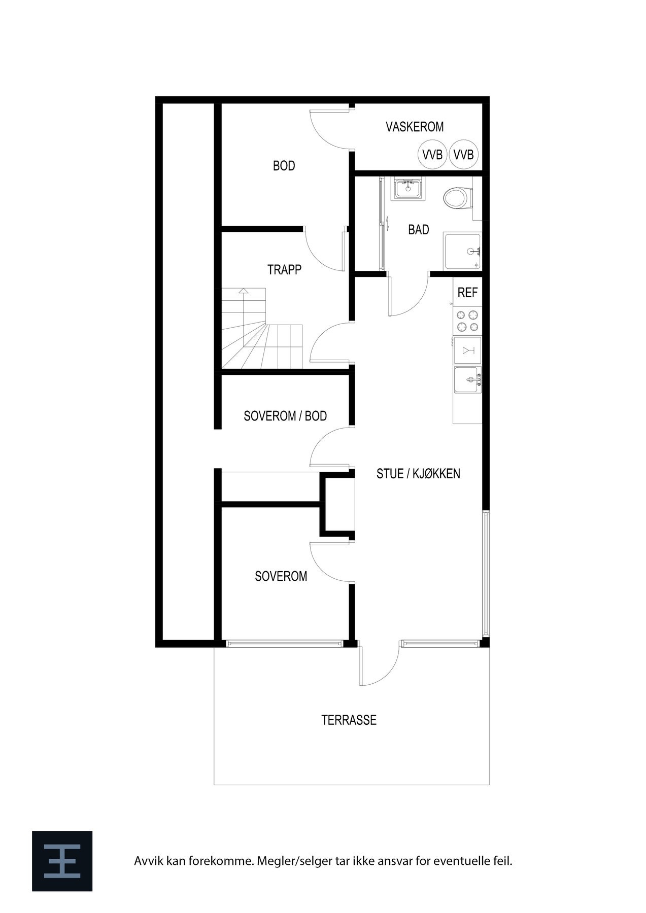
- Godkjent utleieleilighet med åpen stue- og kjøkkenløsning, 2 soverom, bad m/opplegg for vaskemaskin og vinterhage
- Gangavstand til skole, barnehage, busstopp og kjøpesenter
Velkommen til visning
Velkommen til en moderne og funksjonell enebolig tegnet av arkitekt Jone Vistnes, med attraktiv beliggenhet på Madla. Boligen holder høy standard og er usedvanlig lys og luftig, med blant annet atrium, takvinduer og imponerende takhøyde i stuen. Underetasjen gir fleksible bruksmuligheter, enten som en integrert del av boligen for en større familie, som egen ungdoms- eller gjesteavdeling eller som utleieleilighet. Eiendommen ligger attraktivt til med kort vei til Møllebukta, flotte turstier og gode servicetilbud
Om boligen
- Takterrasse med foldedører fra stuen og glassoverbygg som kan åpnes
- Dobbel carport med elbillader og direkte tilgang til boligen
- Hoveddel med 2 bad, 2 WC, vaskerom, hems i tilknytning til stuen og mulighet for 4 soverom
- Godkjent utleieleilighet med åpen stue- og kjøkkenløsning, 2 soverom, bad m/opplegg for vaskemaskin og vinterhage
- Gangavstand til skole, barnehage, busstopp og kjøpesenter
Velkommen til visning
NB: Knappen for å vise hele beskrivelsen har kun en visuell effekt.
NB: Knappen for å vise hele beskrivelsen har kun en visuell effekt.
Salgsoppgaven beskriver vesentlig og lovpålagt informasjon om eiendommen
Se komplett salgsoppgaveNyttige lenker
Nærområdet
EIE eiendomsmegling - Rogaland Eiendomsmegling AS
Annonseinformasjon
| FINN-kode | 454083813 |
|---|---|
| Sist endret | 13. mars 2026 15:58 |
| Referanse | 54251263 |
Annonsene kan være mangelfulle i forhold til lovpålagt opplysningsplikt. Før bindende avtale inngås oppfordres interessenter til å innhente komplett informasjon fra meglerforetaket, selger eller utleier.




























































