Bildegalleri

Nordvik Bolig v/Espen Bergtun har gleden av å presentere Snikspynten 29. Foto: Mari Staveland
Vormedal
Attraktiv og innflytningsklar - Behagelige og moderne overflatevalg (2024) - Carport - Barnevennlig beliggenhet - Hage
Prisantydning5 290 000 kr
Nøkkelinfo
- Boligtype
- Enebolig
- Eieform
- Eier (Selveier)
- Soverom
- 3
- Internt bruksareal
- 136 m² (BRA-i)
- Bruksareal
- 141 m²
- Eksternt bruksareal
- 5 m² (BRA-e)
- Balkong/Terrasse
- 46 m² (TBA)
- Byggeår
- 2024
- Energimerking
- Rom
- 5
- Tomteareal
- 322 m² (eiet)
Fasiliteter
Balkong/Terrasse
Barnevennlig
Garasje/P-plass
Hage
Kjæledyr tillatt
Peis/Ildsted
Rolig
Turterreng
Balansert ventilasjon
Visning
Alle våre visninger har påmelding. På denne måten sikrer vi at megler har god oversikt og tid til å imøtekomme alle interessenter. Meld deg på visning ved å trykke på lenken visningspåmelding.
Ved å trykke på kartet får du enkelt tilgang til en spesifisert reiserute fra din startdestinasjon til boligen. På visningsdagen vil det bli skiltet med Nordvik Eiendomsmegling visningsskilt. Velkommen til visning!
VisningspåmeldingOm boligen
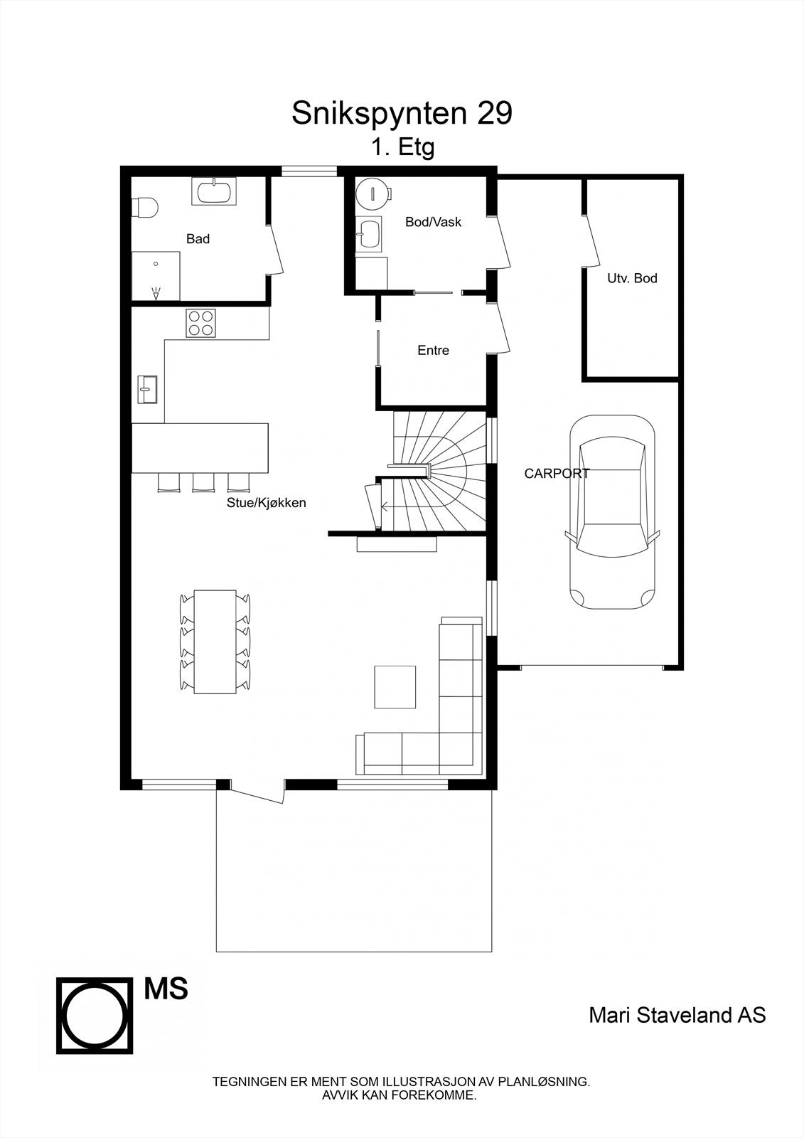
Nordvik Bolig v/Espen Bergtun har gleden av å presentere Snikspynten 29. En innbydende og modernisert enebolig m/nyere standard. Lys og luftig romfølelse gjennom hele boligen, listefrie overganger til himling, store vindusflater og godt med naturlig lysinnslipp. Herlig uteområde med belegningsstein som egner seg godt til hagemøblement. Meget populær beliggenhet på Vormedal i et boligområde som er i stor vekst.
- Bad i hver etasje
- 3 soverom
- Eget vaskerom m/bi-inngang
- Gjennomgående standard
- Peis til oppvarming på kjølige dager
- Utvendig bod til lagring
- Området er ypperlig for både store og små
- Opparbeidet uteareal m/belegningsstein, plen og terrasse
- Gode parkeringsmuligheter i gruset tun og carport
Velkommen til visning!
- Bad i hver etasje
- 3 soverom
- Eget vaskerom m/bi-inngang
- Gjennomgående standard
- Peis til oppvarming på kjølige dager
- Utvendig bod til lagring
- Området er ypperlig for både store og små
- Opparbeidet uteareal m/belegningsstein, plen og terrasse
- Gode parkeringsmuligheter i gruset tun og carport
Velkommen til visning!
NB: Knappen for å vise hele beskrivelsen har kun en visuell effekt.
NB: Knappen for å vise hele beskrivelsen har kun en visuell effekt.
Salgsoppgaven beskriver vesentlig og lovpålagt informasjon om eiendommen
Se komplett salgsoppgaveNyttige lenker
Nærområdet
Nordvik Haugesund
Annonseinformasjon
| FINN-kode | 454082932 |
|---|---|
| Sist endret | 08. mars 2026 22:15 |
| Referanse | 70-0004/26 |
Annonsene kan være mangelfulle i forhold til lovpålagt opplysningsplikt. Før bindende avtale inngås oppfordres interessenter til å innhente komplett informasjon fra meglerforetaket, selger eller utleier.










































