Bildegalleri

- Velkommen til Karl Andersens vei 141, presentert av Soliman Sarwar -
HØYBRÅTEN
Familievennlig og innholdsrikt rekkehus i barnevennlig nabolag I God standard I Solrike uteplasser - Garasje m/lader
Prisantydning6 100 000 kr
Nøkkelinfo
- Boligtype
- Rekkehus
- Eieform
- Andel
- Soverom
- 3
- Internt bruksareal
- 124 m² (BRA-i)
- Bruksareal
- 142 m²
- Eksternt bruksareal
- 18 m² (BRA-e)
- Balkong/Terrasse
- 72 m² (TBA)
- Byggeår
- 1970
- Energimerking
- D - Gul
- Rom
- 4
- Tomteareal
- 33 216 m² (eiet)
Fasiliteter
Barnevennlig
Balkong/Terrasse
Garasje/P-plass
Kabel-TV
Offentlig vann/kloakk
Parkett
Peis/Ildsted
Turterreng
Sentralt
Bredbåndstilknytning
Rolig
Lademulighet
Om boligen
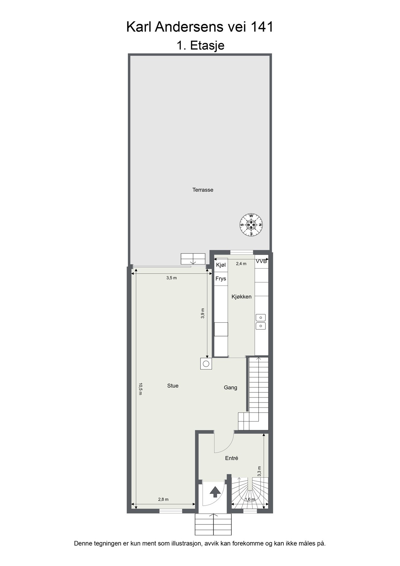
Velkommen til Karl Andersens vei 141- et innholdsrikt rekkehus over tre etasjer med familievennlig planløsning og attraktiv beliggenhet på Høybråten. Boligen inneholder entré, stue og kjøkken, tre soverom og bad fra 2017. Romslig stue med godt naturlig lys og gode møbleringsmuligheter. Fra stuen er det utgang til en romslig terrasse på ca. 53 m², mens ett av soverommene har utgang til balkongpå ca. 19 m².
Boligen har gode utearealer som gir fine soner for opphold og sosiale sammenkomster. Beliggenheten er rolig og barnevennlig, med kort vei til kollektivtransport, dagligvare og flotte turmuligheter i Østmarka. Boligen sogner til populære Høybråten barneskole.
Garasjeplass med elbil-lader medfølger.
Boligen har gode utearealer som gir fine soner for opphold og sosiale sammenkomster. Beliggenheten er rolig og barnevennlig, med kort vei til kollektivtransport, dagligvare og flotte turmuligheter i Østmarka. Boligen sogner til populære Høybråten barneskole.
Garasjeplass med elbil-lader medfølger.
NB: Knappen for å vise hele beskrivelsen har kun en visuell effekt.
NB: Knappen for å vise hele beskrivelsen har kun en visuell effekt.
Salgsoppgaven beskriver vesentlig og lovpålagt informasjon om eiendommen
Se komplett salgsoppgaveNyttige lenker
Nærområdet

PrivatMegleren Panorama
Kun det beste på dine vegne
Annonseinformasjon
| FINN-kode | 454077199 |
|---|---|
| Sist endret | 16. mars 2026 05:24 |
| Referanse | 38260091 |
Annonsene kan være mangelfulle i forhold til lovpålagt opplysningsplikt. Før bindende avtale inngås oppfordres interessenter til å innhente komplett informasjon fra meglerforetaket, selger eller utleier.








































