Bildegalleri

Velkommen til Morteruds gate 24 - 2-roms andelsleilighet med sentral beliggenhet.
Hamar sentrum
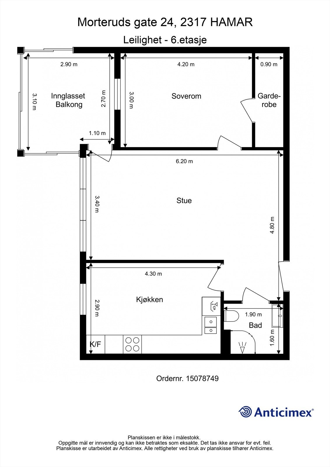
2-roms andelsleilighet med meget sentral beliggenhet. Bad fra 2025 - 6. etasje - Heis - Innglasset balkong
Prisantydning2 450 000 kr
Nøkkelinfo
- Boligtype
- Leilighet
- Eieform
- Andel
- Soverom
- 1
- Internt bruksareal
- 60 m² (BRA-i)
- Bruksareal
- 72 m²
- Eksternt bruksareal
- 4 m² (BRA-e)
- Innglasset balkong
- 8 m² (BRA-b)
- Etasje
- 6
- Byggeår
- 1963
- Energimerking
- D - Gul
- Rom
- 2
- Tomteareal
- 2 966 m² (eiet)
Fasiliteter
Balkong/Terrasse
Heis
Kabel-TV
Offentlig vann/kloakk
Parkett
Sentralt
Visning
For å delta på visning, ber vi om at du melder deg på. Da sikrer vi at du får nødvendig informasjon og at det er satt av tilstrekkelig med tid. Kontakt megler dersom annet tidspunkt ønskes. Husk å lese salgsoppgaven før visningen, så du stiller forberedt.
Ønsker du kun å bli holdt orientert, kan du fra eiendommens hjemmeside få varsel om solgtpris, eller kontakte megler.
VisningspåmeldingOm boligen
Flott og romslig 2-roms andelsleilighet med sentral beliggenhet i Hamar. Ber bor man med gangavstand til byens fasiliteter, med blant annet Kulturhuset som nærmeste nabo og kun minuttets gange til Mjøsa, samt nærmeste matbutikk i umiddelbar nærhet. Leiligheten ligger i 6. etasje og inneholder entré, stue, kjøkken, soverom med garderoberom, bad og innglasset balkong.
- Baderom fra 2025 renovert i regi av borettslaget
- Det er heis i bygget
- Lyse overflater
- Flislagt bad med opplegg for vaskemaskin
- Leiligheten disponerer én kjellerbod
- Oppvarming ink. i fellesutgiftene
- Velholdt borettslag
Velkommen til en hyggelig visning!
- Baderom fra 2025 renovert i regi av borettslaget
- Det er heis i bygget
- Lyse overflater
- Flislagt bad med opplegg for vaskemaskin
- Leiligheten disponerer én kjellerbod
- Oppvarming ink. i fellesutgiftene
- Velholdt borettslag
Velkommen til en hyggelig visning!
NB: Knappen for å vise hele beskrivelsen har kun en visuell effekt.
NB: Knappen for å vise hele beskrivelsen har kun en visuell effekt.
Salgsoppgaven beskriver vesentlig og lovpålagt informasjon om eiendommen
Se komplett salgsoppgaveNyttige lenker
Nærområdet
Krogsveen Hamar
Verdien av en god megler.
Annonseinformasjon
| FINN-kode | 454068279 |
|---|---|
| Sist endret | 07. mars 2026 08:08 |
| Referanse | KR65.2654 |
Annonsene kan være mangelfulle i forhold til lovpålagt opplysningsplikt. Før bindende avtale inngås oppfordres interessenter til å innhente komplett informasjon fra meglerforetaket, selger eller utleier.





























