Bildegalleri

Velkommen til Harald Torps veg 23!
Tiller
DELIKAT 2-ROMS MED FLOTT BELIGGENHET I BYGGET - Vestvendt balkong - Heis - Lave felleskostnader - P-plass i kjeller
Prisantydning2 990 000 kr
Nøkkelinfo
- Boligtype
- Leilighet
- Eieform
- Eier (Selveier)
- Soverom
- 1
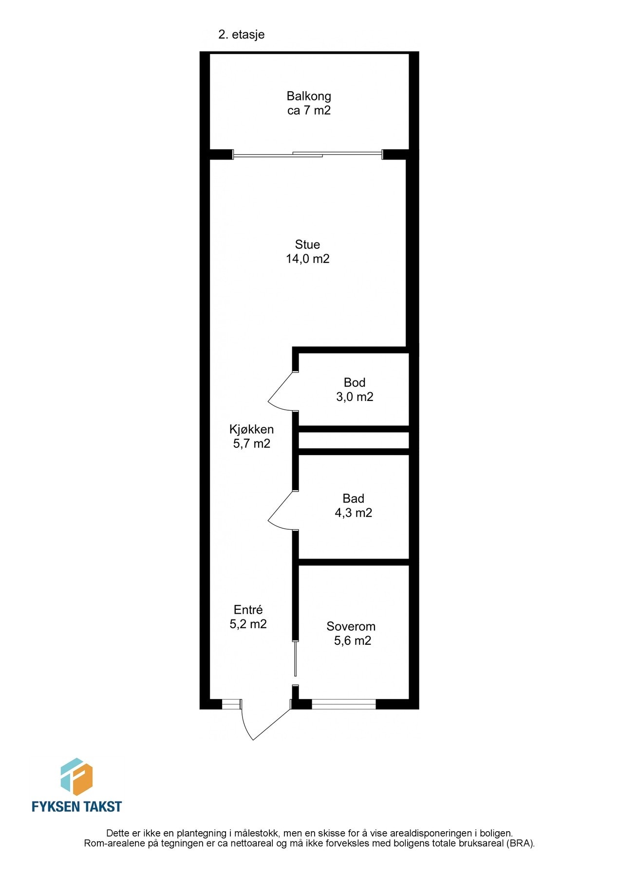
- Internt bruksareal
- 41 m² (BRA-i)
- Bruksareal
- 46 m²
- Eksternt bruksareal
- 5 m² (BRA-e)
- Balkong/Terrasse
- 7 m² (TBA)
- Etasje
- 2
- Byggeår
- 2017
- Energimerking
- B - Mørkegrønn
- Rom
- 2
- Tomteareal
- 6 854 m² (eiet)
Fasiliteter
Barnevennlig
Balkong/Terrasse
Garasje/P-plass
Kabel-TV
Heis
Offentlig vann/kloakk
Parkett
Bredbåndstilknytning
Moderne
Rolig
Lademulighet
Balansert ventilasjon
Visning
mandag, 16. mars
18:00 – 19:00
Våre visninger har påmelding. Dette gjør vi for å kunne yte bedre service for våre kunder. Verdifullt for boligkjøper og for oss. Vi anbefaler at salgsoppgaven lastes ned digitalt før visning, og ring oss gjerne på forhånd for spørsmål om boligen. Passer ikke angitt tidspunkt, ta kontakt så finner vi en løsning. Skulle det mot formodning ikke være påmeldte til angitt visningstidspunkt vil ikke visning bli gjennomført.
Om boligen
Velkommen til Harald Torps veg 23! En svært delikat 2-roms med fantastisk beliggenhet i bygget. Leiligheten har en attraktiv beliggenhet på Tiller med solrik balkong og fin utsikt. Bygget ble ferdigstilt i 2017 og leiligheten holder en gjennomgående høy standard!
Av kvaliteter kan man nevne:
Av kvaliteter kan man nevne:
- Lave felleskostnader som inkl. parkering, fjernvarme, kabel-tv og internett.
- Innvendig bod pluss en sportsbod i kjeller.
- Delikat og romslig bad med god plass til vaskemaskin.
- Svært delikat 2-roms med gjennomgående høy standard og lite innsyn.
- Vestvendt balkong med utsikt og gode solforhold.
- P-plass i oppvarmet kjeller.
- Alle punkt i takstrapporten har fått tilstandsgrad 0 og 1.
- Heis i bygget, balansert ventilasjon og fjernvarme.
- Flotte naturomgivelser i nærheten av leiligheten.
- Med meget kort vei til kollektivtrafikk og tilbudene på Tiller, har du alt du trenger like i nærheten.
Velkommen til visning!
NB: Knappen for å vise hele beskrivelsen har kun en visuell effekt.
NB: Knappen for å vise hele beskrivelsen har kun en visuell effekt.
Salgsoppgaven beskriver vesentlig og lovpålagt informasjon om eiendommen
Se komplett salgsoppgaveNyttige lenker
Nærområdet
EiendomsMegler 1 Heimdal
Vi loser deg trygt gjennom hele boligsalget
Annonseinformasjon
| FINN-kode | 454061997 |
|---|---|
| Sist endret | 06. mars 2026 15:35 |
| Referanse | 31260165 |
Annonsene kan være mangelfulle i forhold til lovpålagt opplysningsplikt. Før bindende avtale inngås oppfordres interessenter til å innhente komplett informasjon fra meglerforetaket, selger eller utleier.


























