Bildegalleri

EIE Jessheim v/Sebastian Prestby har gleden av å presentere Søndre Dølibekken 8! Foto av Siri Faafeng (EFKT)
Lys og innbydende 2-roms selveierleilighet. i 5. etg | Grsj.pl | Solrik sørvendt balkong |Perfekt førstegangskjøp!
Prisantydning3 060 000 kr
Nøkkelinfo
- Boligtype
- Leilighet
- Eieform
- Selveier
- Soverom
- 1
- Internt bruksareal
- 45 m² (BRA-i)
- Bruksareal
- 59 m²
- Eksternt bruksareal
- 2 m² (BRA-e)
- Innglasset balkong
- 12 m² (BRA-b)
- Etasje
- 5
- Byggeår
- 2021
- Energimerking
- Tomteareal
- 3 525 m² (eiet)
Fasiliteter
Balkong/Terrasse
Garasje/P-plass
Heis
Offentlig vann/kloakk
Turterreng
Sentralt
Moderne
Lademulighet
Balansert ventilasjon
Visning
søndag, 12. april
15:00 – 15:45
For å yte premium rådgivning, har alle våre visninger påmelding. Dette sikrer at megler har god oversikt og tid til å imøtekomme alle interessenter på aller beste måte. Dersom ingen interessenter er påmeldt 24 timer før oppsatt visning, kan visningen bli avlyst.
Om det ikke passer på oppsatt dato, ta kontakt for privat visning.
Om boligen
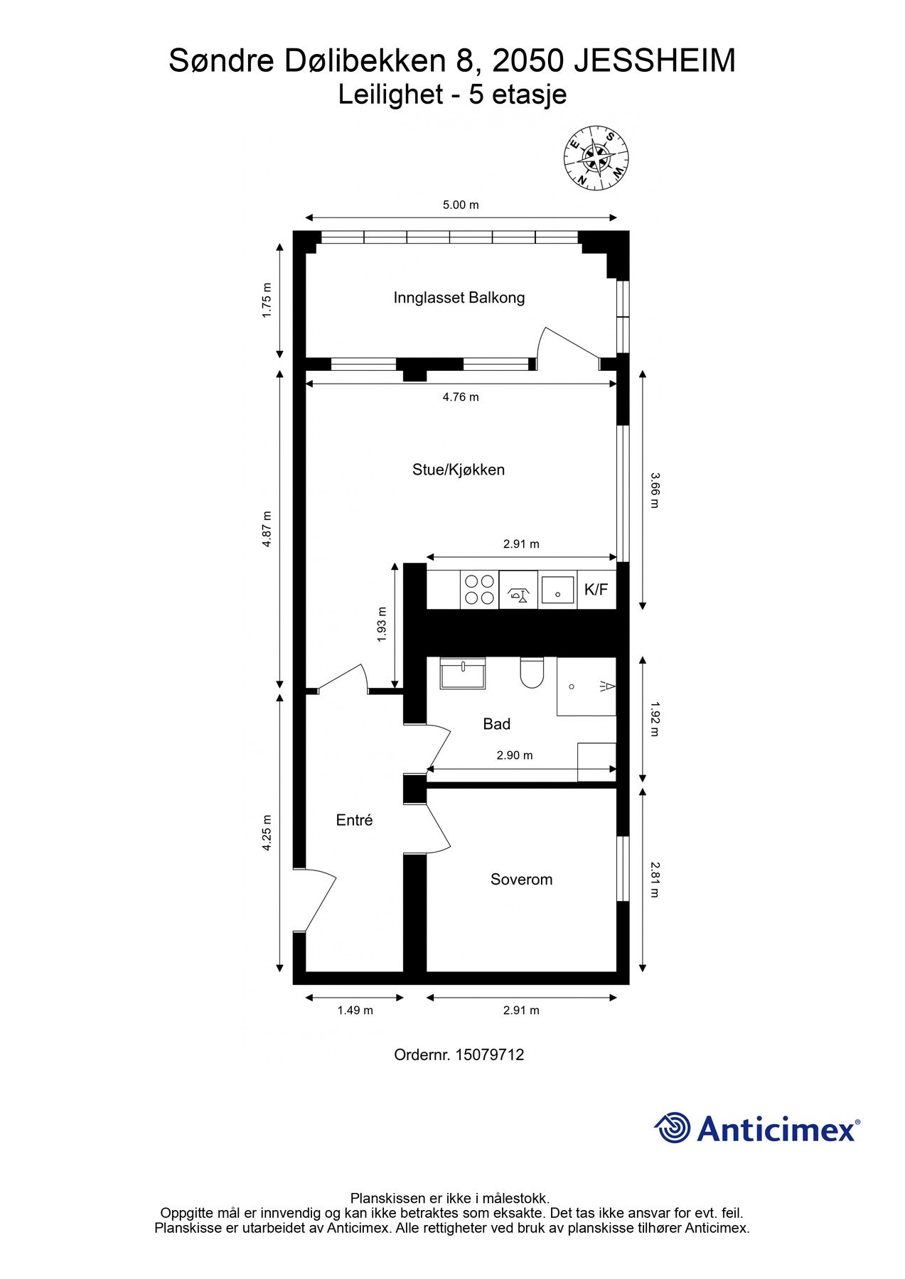
EIE Jessheim v/ Sebastian Prestby (95297578) har gleden av å presentere Søndre Dølibekken 8 - en lys og innbydende selveierleilighet beliggende i byggets 5.etg, med solrik sørvendt balkong, garasjeplass hvor det er tilrettelagt for elbil-lader og trappefri adkomst. Leiligheten ligger i kort avstand fra Jessheim sentrum og med gangavstand til det meste du trenger i hverdagen.
Leilighetene er arealeffektiv med smart planløsning. Her er det entré/gang med plass til garderobeløsning med tilgang til et soverom og bad. Videre inn i leiligheten er det stue og kjøkken i åpen løsning som glir naturlig sammen. Leiligheten har store vindusflater som slipper godt inn med naturlig lys. Stuen har adkomst til en romslig og solrik innglasset balkong på ca 13 kvm - Perfekt for morgenkaffen eller sene kvelder.
Mangler du egenkapital? Boligen kan kjøpes med Finit Deleie.
Leilighetene er arealeffektiv med smart planløsning. Her er det entré/gang med plass til garderobeløsning med tilgang til et soverom og bad. Videre inn i leiligheten er det stue og kjøkken i åpen løsning som glir naturlig sammen. Leiligheten har store vindusflater som slipper godt inn med naturlig lys. Stuen har adkomst til en romslig og solrik innglasset balkong på ca 13 kvm - Perfekt for morgenkaffen eller sene kvelder.
Mangler du egenkapital? Boligen kan kjøpes med Finit Deleie.
NB: Knappen for å vise hele beskrivelsen har kun en visuell effekt.
NB: Knappen for å vise hele beskrivelsen har kun en visuell effekt.
Salgsoppgaven beskriver vesentlig og lovpålagt informasjon om eiendommen
Se komplett salgsoppgaveNærområdet
EIE eiendomsmegling Jessheim
Annonseinformasjon
| FINN-kode | 454054684 |
|---|---|
| Sist endret | 26. mars 2026 17:49 |
| Referanse | 20251090 |
Annonsene kan være mangelfulle i forhold til lovpålagt opplysningsplikt. Før bindende avtale inngås oppfordres interessenter til å innhente komplett informasjon fra meglerforetaket, selger eller utleier.


































