Bildegalleri

Velkommen til Røahagan 49B - Presentert av Gøran Sørensen v/PrivatMegleren Dyve & Partnere.
Røa
Lyst og gjennomført rekkehus med tre soverom, carport med lader og solrike uteplasser i barnevennlige omgivelser på Røa
Prisantydning9 400 000 kr
Nøkkelinfo
- Boligtype
- Rekkehus
- Eieform
- Eier (Selveier)
- Soverom
- 3
- Internt bruksareal
- 79 m² (BRA-i)
- Bruksareal
- 83 m²
- Eksternt bruksareal
- 4 m² (BRA-e)
- Balkong/Terrasse
- 46 m² (TBA)
- Byggeår
- 1993
- Energimerking
- D - Gul
- Rom
- 4
- Tomteareal
- 1 299 m² (eiet)
Fasiliteter
Barnevennlig
Balkong/Terrasse
Garasje/P-plass
Kabel-TV
Offentlig vann/kloakk
Parkett
Turterreng
Sentralt
Bredbåndstilknytning
Moderne
Rolig
Lademulighet
Om boligen
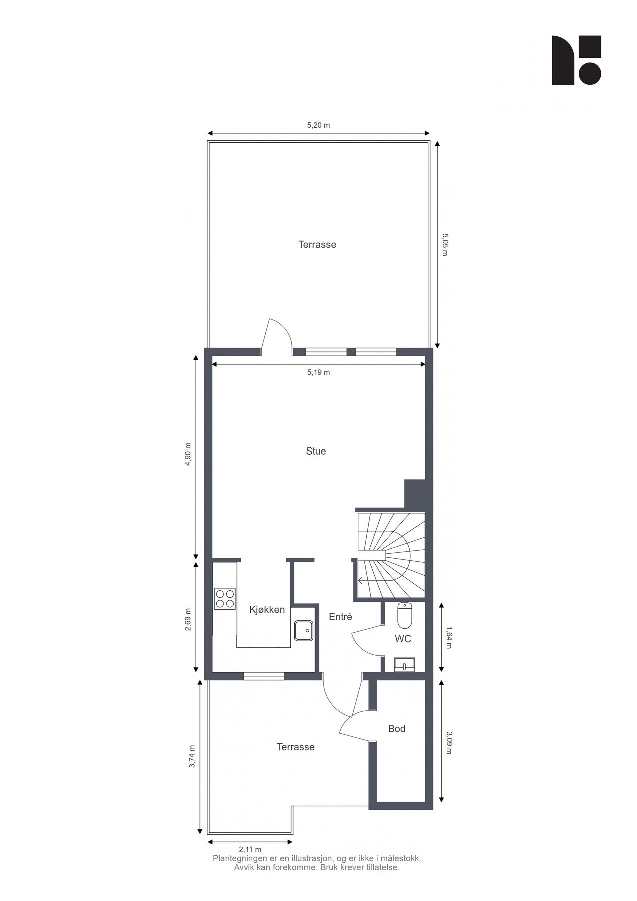
Velkommen til et velholdt og familievennlig rekkehus med en funksjonell og gjennomtenkt planløsning samt gode lysforhold. Boligen går over to etasjer og inneholder tre soverom av god størrelse, som gir fleksible bruksmuligheter. Oppholdsrommene fremstår lyse og innbydende, og planløsningen legger til rette for en praktisk og komfortabel hverdag.
- Carport m/lader
- Solrike uteplasser
- Attraktivt og veletablert boligområde
- Tre soverom av god størrelse
- Rikelig med lagringsplass på loft og i bod
Boligen ligger i en stille og rolig blindvei uten gjennomgangstrafikk, i et attraktivt og veletablert område på Røa. Her bor du trygt og barnevennlig, med kort gangavstand til Røa sentrum som tilbyr et bredt utvalg av butikker, servicetilbud, serveringssteder og dagligvareforretninger.
- Carport m/lader
- Solrike uteplasser
- Attraktivt og veletablert boligområde
- Tre soverom av god størrelse
- Rikelig med lagringsplass på loft og i bod
Boligen ligger i en stille og rolig blindvei uten gjennomgangstrafikk, i et attraktivt og veletablert område på Røa. Her bor du trygt og barnevennlig, med kort gangavstand til Røa sentrum som tilbyr et bredt utvalg av butikker, servicetilbud, serveringssteder og dagligvareforretninger.
NB: Knappen for å vise hele beskrivelsen har kun en visuell effekt.
NB: Knappen for å vise hele beskrivelsen har kun en visuell effekt.
Salgsoppgaven beskriver vesentlig og lovpålagt informasjon om eiendommen
Se komplett salgsoppgaveNyttige lenker
Nærområdet

PrivatMegleren Dyve & Partnere
Kun det beste på dine vegne
Annonseinformasjon
| FINN-kode | 454052377 |
|---|---|
| Sist endret | 17. mars 2026 05:15 |
| Referanse | 159260095 |
Annonsene kan være mangelfulle i forhold til lovpålagt opplysningsplikt. Før bindende avtale inngås oppfordres interessenter til å innhente komplett informasjon fra meglerforetaket, selger eller utleier.












































