Bildegalleri

Velkommen til Bakkehellet 7, presentert av Johannes Tømmerås!
Lerkendal
PEN OG MODERNE 3-ROMS I 4.ETG MED SØRVESTVENDT BALKONG. Byggeår 2017. Herlig utsikt. Parkering. Trimrom. Nært NTNU.
Prisantydning5 500 000 kr
Nøkkelinfo
- Boligtype
- Leilighet
- Eieform
- Eier (Selveier)
- Soverom
- 2
- Internt bruksareal
- 72 m² (BRA-i)
- Bruksareal
- 77 m²
- Eksternt bruksareal
- 5 m² (BRA-e)
- Balkong/Terrasse
- 13 m² (TBA)
- Etasje
- 4
- Byggeår
- 2017
- Energimerking
- B - Lysegrønn
- Rom
- 3
- Tomteareal
- 4 620 m² (eiet)
Visning
tirsdag, 17. mars
16:30 – 17:15
Våre visninger har påmelding. Dette gjør vi for å kunne yte bedre service for våre kunder. Verdifullt for boligkjøper og for oss. Vi anbefaler at salgsoppgaven lastes ned digitalt før visning, og ring oss gjerne på forhånd for spørsmål om boligen. Passer ikke angitt tidspunkt, ta kontakt så finner vi en løsning. Skulle det mot formodning ikke være påmeldte til angitt visningstidspunkt vil ikke visning bli gjennomført.
Om boligen
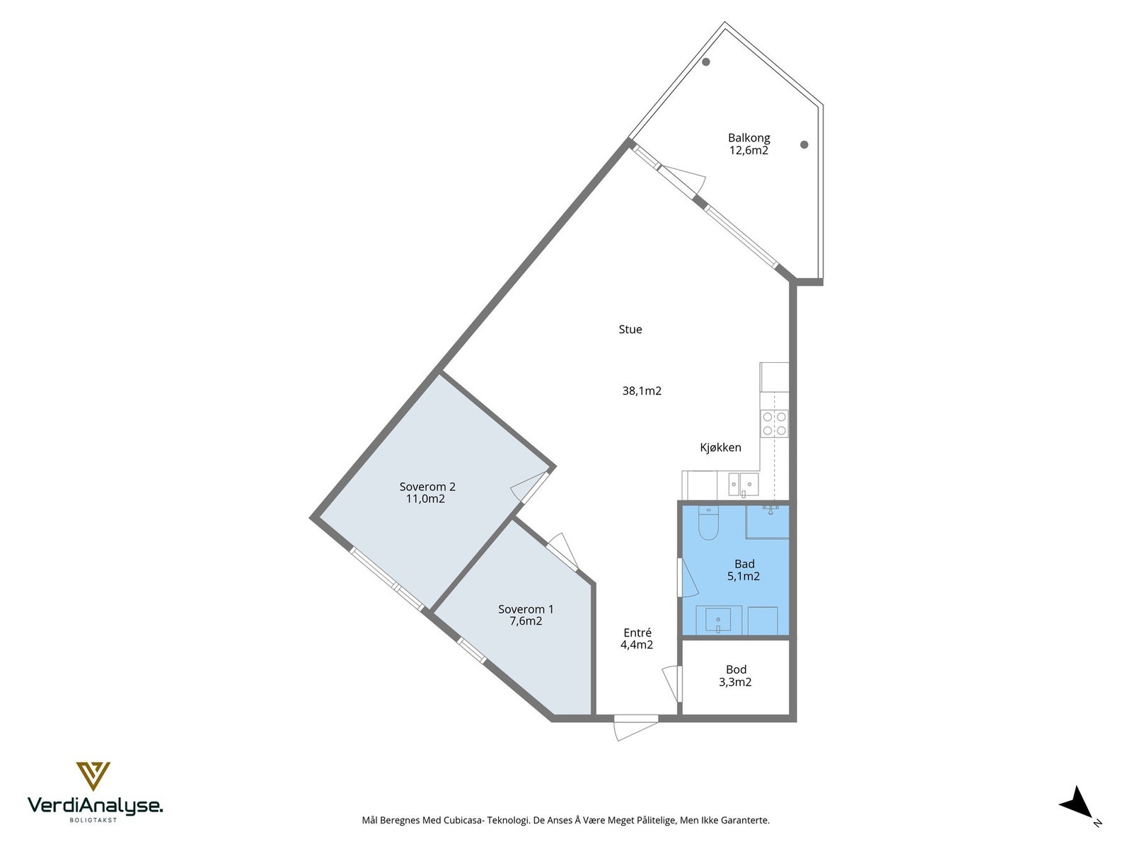
Velkommen til Bakkehellet 7! Her får du en delikat og moderne 3-roms leilighet med attraktiv og populær beliggenhet på Lerkendal! Nyere leilighet fra 2017 med både balkong, fast parkeringsplass i kjeller og heis i bygget.
Kvaliteter:
- Stor og sørvestvendt balkong på 12,6 kvm med fantastisk utsikt.
- Gjennomgående lys parkett i alle oppholdsrom
- Romslig og åpen stue (38,1 kvm) som er lett å innrede
- Lekkert baderom i delikate fliser samt downlights i tak.
- Fint og tidløst kjøkken med integrerte hvitevarer
- Kjøkken og bad har fått TG0 fra takstmann.
- Heis i bygget og oppvarmes av fjernvarme
- Innvendig bod og bod i kjelleren. 2 boder totalt
- Fast P-plass i kjeller med muligheter for lading av elbil
- Gjesteparkering
- Pen og innbydende inngangsparti til bygget
- Nærhet til NTNU og St. Olavs
- Lave felleskostnader
Sameiet har innendørs treningsrom og fine utearealer. Her vil du trives å bo!
Velkommen til en hyggelig visning!
Kvaliteter:
- Stor og sørvestvendt balkong på 12,6 kvm med fantastisk utsikt.
- Gjennomgående lys parkett i alle oppholdsrom
- Romslig og åpen stue (38,1 kvm) som er lett å innrede
- Lekkert baderom i delikate fliser samt downlights i tak.
- Fint og tidløst kjøkken med integrerte hvitevarer
- Kjøkken og bad har fått TG0 fra takstmann.
- Heis i bygget og oppvarmes av fjernvarme
- Innvendig bod og bod i kjelleren. 2 boder totalt
- Fast P-plass i kjeller med muligheter for lading av elbil
- Gjesteparkering
- Pen og innbydende inngangsparti til bygget
- Nærhet til NTNU og St. Olavs
- Lave felleskostnader
Sameiet har innendørs treningsrom og fine utearealer. Her vil du trives å bo!
Velkommen til en hyggelig visning!
NB: Knappen for å vise hele beskrivelsen har kun en visuell effekt.
NB: Knappen for å vise hele beskrivelsen har kun en visuell effekt.
Salgsoppgaven beskriver vesentlig og lovpålagt informasjon om eiendommen
Se komplett salgsoppgaveNyttige lenker
Nærområdet
EiendomsMegler 1 Lerkendal
Vi loser deg trygt gjennom hele boligsalget
Annonseinformasjon
| FINN-kode | 454044843 |
|---|---|
| Sist endret | 06. mars 2026 19:49 |
| Referanse | 37260031 |
Annonsene kan være mangelfulle i forhold til lovpålagt opplysningsplikt. Før bindende avtale inngås oppfordres interessenter til å innhente komplett informasjon fra meglerforetaket, selger eller utleier.





































