Bildegalleri

Enebolig på Straumsnes
Prisantydning2 550 000 kr
Nøkkelinfo
- Boligtype
- Enebolig
- Eieform
- Eier (Selveier)
- Soverom
- 3
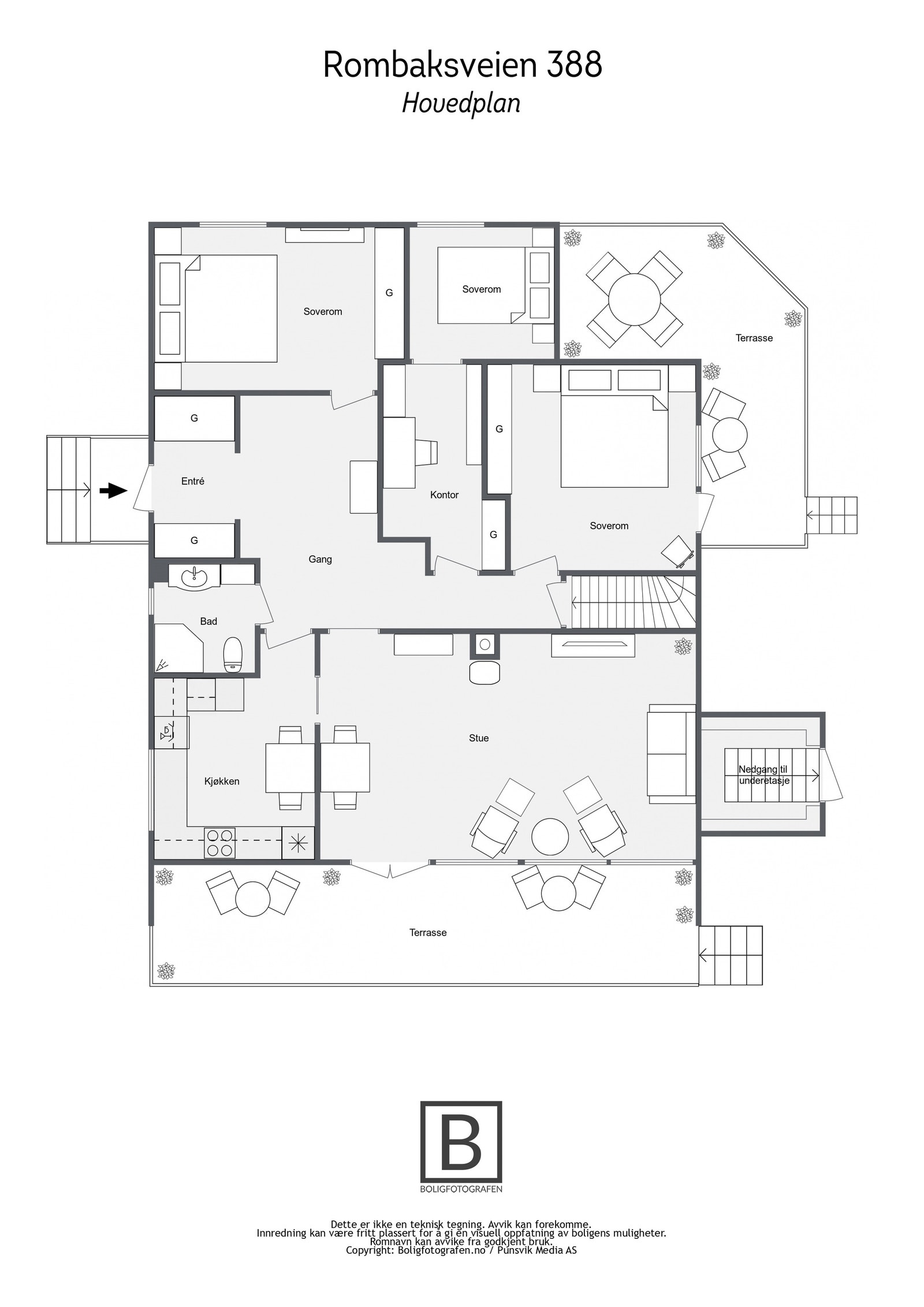
- Internt bruksareal
- 180 m² (BRA-i)
- Bruksareal
- 180 m²
- Balkong/Terrasse
- 37 m² (TBA)
- Etasje
- 1
- Byggeår
- 1968
- Energimerking
- E - Oransje
- Tomteareal
- 1 380 m² (eiet)
Fasiliteter
Peis/Ildsted
Utsikt
Turterreng
Visning
Ta kontakt for å avtale visning.Beliggenhet
Enebolig beliggende i et landlig og rolig strøk ved Straumsnes i Narvik kommune. God utsikt over Rombaksfjorden og Ofotfjorden.
Beskrivelse
Eiendommen består av en frittliggende enebolig med kjeller og 1. etasje, samt anneks og uthus. Boligen er oppført i 1968, tilbygg i 1992, og har vært jevnlig vedlikeholdt og oppgradert, blant annet med oppussing av kjeller i 2022–2023, bad i 2015, og
bad/vaskerom i kjeller i 2023.
Tomten er opparbeidet med plen, prydbusker, gruslagt innkjørsel og parkeringsplass.
Adkomst
Utfyllende informasjon om fellesgjeld og felleskostnader
Annen info 1
Annen info 2
Annen info 3
Annen info 4
Annen info 5
NB: Knappen for å vise hele beskrivelsen har kun en visuell effekt.
NB: Knappen for å vise hele beskrivelsen har kun en visuell effekt.
Ta kontakt med megler for komplett informasjon
Nyttige lenker
Nærområdet
Advokatfirma Bjørn H. Larsen AS
Annonsene kan være mangelfulle i forhold til lovpålagt opplysningsplikt. Før bindende avtale inngås oppfordres interessenter til å innhente komplett informasjon fra meglerforetaket, selger eller utleier.


























































