Bildegalleri

Velkommen til Bjergsted Terrasse 9! Denne unike 5-roms selveierleiligheten i populære Bjergsted Terrasse.
Solgt
Topp- og endeleilighet på 166 m² over to plan like ved Konserthuset - Heis - Fast p-plass - Peis
Prisantydning8 500 000 kr
Nøkkelinfo
- Boligtype
- Leilighet
- Eieform
- Eier (Selveier)
- Soverom
- 4
- Internt bruksareal
- 166 m² (BRA-i)
- Bruksareal
- 195 m²
- Eksternt bruksareal
- 9 m² (BRA-e)
- Innglasset balkong
- 20 m² (BRA-b)
- Balkong/Terrasse
- 10 m² (TBA)
- Etasje
- 6
- Byggeår
- 1990
- Energimerking
- Rom
- 5
- Tomteareal
- 8 223 m² (eiet)
Fasiliteter
Balkong/Terrasse
Bredbåndstilknytning
Garasje/P-plass
Heis
Kjæledyr tillatt
Offentlig vann/kloakk
Parkett
Peis/Ildsted
Rolig
Sentralt
Utsikt
Turterreng
Om boligen
Velkommen til Bjergsted Terrasse 9! Denne 5-roms selveierleiligheten i populære Bjergsted Terrasse. Beliggenheten er svært sentral, likevel rolig og tilbaketrukket fra sentrumskjernen. Herfra har man kort vei til et bredt utvalg av byens fasiliteter.
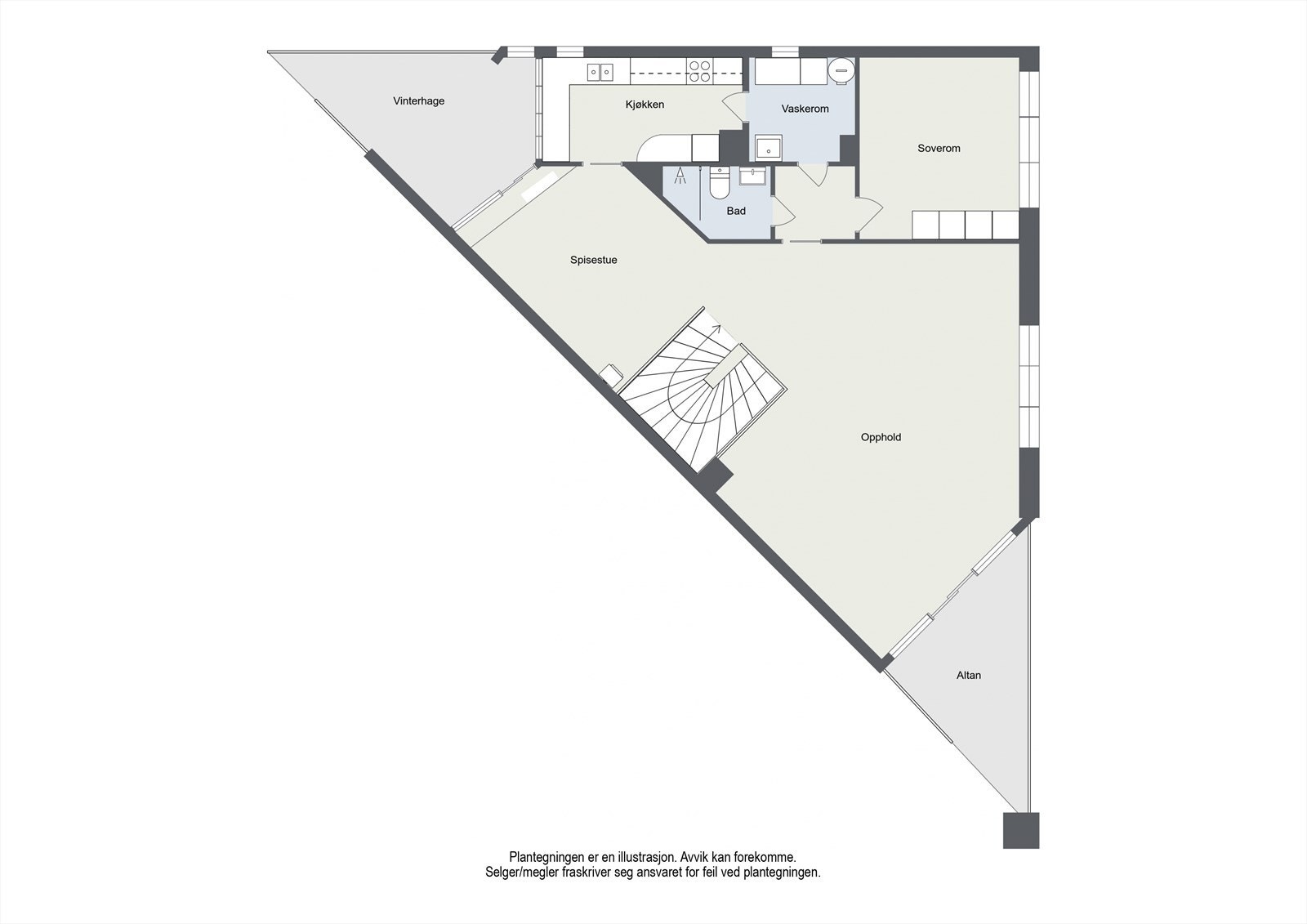
Leiligheten har en av de mest attraktive beliggenhetene i sameiet, plassert på topp og i enden av bygget. Den høye plasseringen gir gode lysforhold, flott utsikt, trafikkstillhet og en privat og skjermet atmosfære. Leiligheten går over to plan og oppleves romslig og luftig med hele 4 soverom, 3 bad og 3 uteplasser.
Heis i bygget gjør det enkelt å komme seg fra parkeringsgarasjen i underetasjen. Her får du innholdet og størrelsen til en enebolig, kombinert med enkelheten og bekvemmeligheten ved å bo i leilighet!
Velkommen til visning!
Leiligheten har en av de mest attraktive beliggenhetene i sameiet, plassert på topp og i enden av bygget. Den høye plasseringen gir gode lysforhold, flott utsikt, trafikkstillhet og en privat og skjermet atmosfære. Leiligheten går over to plan og oppleves romslig og luftig med hele 4 soverom, 3 bad og 3 uteplasser.
Heis i bygget gjør det enkelt å komme seg fra parkeringsgarasjen i underetasjen. Her får du innholdet og størrelsen til en enebolig, kombinert med enkelheten og bekvemmeligheten ved å bo i leilighet!
Velkommen til visning!
NB: Knappen for å vise hele beskrivelsen har kun en visuell effekt.
NB: Knappen for å vise hele beskrivelsen har kun en visuell effekt.
Salgsoppgaven beskriver vesentlig og lovpålagt informasjon om eiendommen
Se komplett salgsoppgaveNyttige lenker
Nærområdet
Eiendomsmegler Norge Stavanger
Best der du bor
Annonseinformasjon
| FINN-kode | 454001697 |
|---|---|
| Sist endret | 18. mars 2026 12:41 |
| Referanse | 20260037 |
Annonsene kan være mangelfulle i forhold til lovpålagt opplysningsplikt. Før bindende avtale inngås oppfordres interessenter til å innhente komplett informasjon fra meglerforetaket, selger eller utleier.

























































