Bildegalleri

EiendomsMegler1 ved Markus Tangvik har gleden av å presentere en nydelig bygårdsleilighet i Kalvskinnsgata 5.
Kalvskinnet
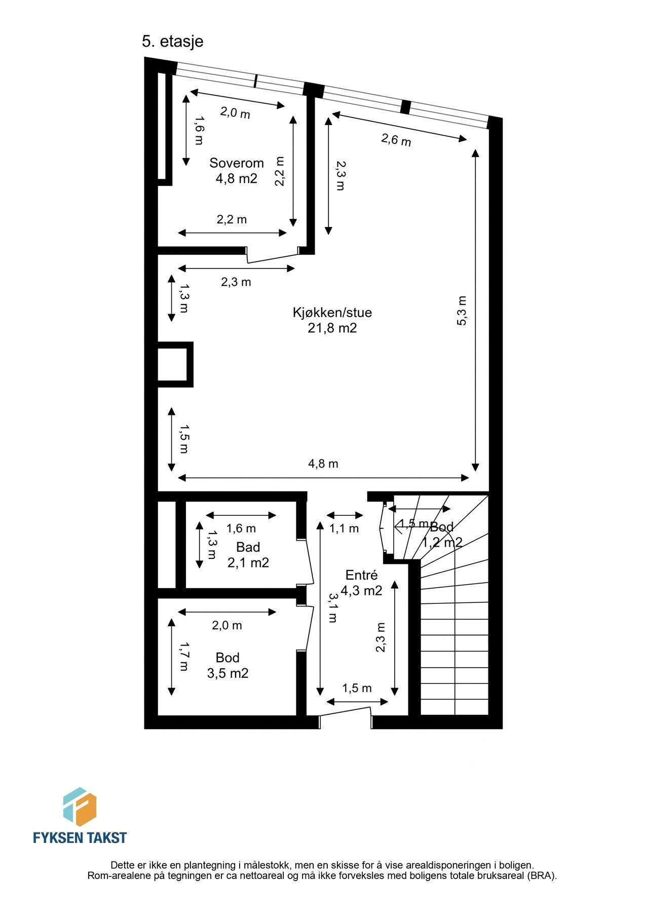
NYDELIG BYGÅRDSLEILIGHET I 5.ETASJE MED URBAN BELIGGENHET. Kjøkken 2018. Ingen dok.avgift. Heis. Nært NTNU. Parkering*
Prisantydning2 490 000 kr
Nøkkelinfo
- Boligtype
- Leilighet
- Eieform
- Andel
- Soverom
- 1
- Internt bruksareal
- 41 m² (BRA-i)
- Bruksareal
- 44 m²
- Eksternt bruksareal
- 3 m² (BRA-e)
- Etasje
- 5
- Byggeår
- 1958
- Energimerking
- E - Oransje
- Rom
- 2
- Tomteareal
- 465 m² (eiet)
Fasiliteter
Barnevennlig
Garasje/P-plass
Kabel-TV
Heis
Offentlig vann/kloakk
Turterreng
Utsikt
Sentralt
Bredbåndstilknytning
Moderne
Rolig
Visning
tirsdag, 17. mars
17:00 – 17:45
Våre visninger har påmelding. Dette gjør vi for å kunne yte bedre service for våre kunder. Verdifullt for boligkjøper og for oss. Vi anbefaler at salgsoppgaven lastes ned digitalt før visning, og ring oss gjerne på forhånd for spørsmål om boligen. Passer ikke angitt tidspunkt, ta kontakt så finner vi en løsning. Skulle det mot formodning ikke være påmeldte til angitt visningstidspunkt vil ikke visning bli gjennomført.
Om boligen
EiendomsMegler1 ved Markus Tangvik har gleden av å presentere en nydelig bygårdsleilighet i Kalvskinnsgata 5. Leiligheten har en god beliggenhet i 5.etasje med oppgradert kjøkken fra 2018, heis i bygget, og nærhet til NTNU.
Kvaliteter:
- Nydelig bygårdsleilighet i 5.etasje som ble oppgradert i 2018.
- Nye vinduer ble skiftet i 2017, nytt tak i 2016 og oppgradert heis i 2019.
- Pent kjøkken fra 2018 med praktisk kjøkkenøy.
- Ingen dokumentavgift.
- 2 stk. boder i leiligheten og èn bod i kjeller.
- Nærhet til NTNU og St.Olavs.
- Kommunale avgifter, kabel-TV, internett m.m er inkl. i felleskost.
- Heis i bygget.
Borettslaget har 4 parkeringsplasser. Søknad om parkeringsplass sendes til styret og tildeles etter boansiennitet.
Velkommen på visning!
Kvaliteter:
- Nydelig bygårdsleilighet i 5.etasje som ble oppgradert i 2018.
- Nye vinduer ble skiftet i 2017, nytt tak i 2016 og oppgradert heis i 2019.
- Pent kjøkken fra 2018 med praktisk kjøkkenøy.
- Ingen dokumentavgift.
- 2 stk. boder i leiligheten og èn bod i kjeller.
- Nærhet til NTNU og St.Olavs.
- Kommunale avgifter, kabel-TV, internett m.m er inkl. i felleskost.
- Heis i bygget.
Borettslaget har 4 parkeringsplasser. Søknad om parkeringsplass sendes til styret og tildeles etter boansiennitet.
Velkommen på visning!
NB: Knappen for å vise hele beskrivelsen har kun en visuell effekt.
NB: Knappen for å vise hele beskrivelsen har kun en visuell effekt.
Salgsoppgaven beskriver vesentlig og lovpålagt informasjon om eiendommen
Se komplett salgsoppgaveNærområdet
EiendomsMegler 1 Trondheim sentrum, Kongens gate
Vi loser deg trygt gjennom hele boligsalget
Annonseinformasjon
| FINN-kode | 453988063 |
|---|---|
| Sist endret | 06. mars 2026 13:14 |
| Referanse | 32260038 |
Annonsene kan være mangelfulle i forhold til lovpålagt opplysningsplikt. Før bindende avtale inngås oppfordres interessenter til å innhente komplett informasjon fra meglerforetaket, selger eller utleier.



























