Bildegalleri

EIE eiendomsmegling v/ Julie Marie Vollan Brennvik har gleden av å presentere Rømmesveien 2B! Foto: Mattias Christoph Herzog
Orkanger
Sentrum- og skolenært oppusningsobjekt med solrik hage og garasje. Vannnbåren varme, tre soverom og vaskerom i kjeller
Prisantydning2 990 000 kr
Nøkkelinfo
- Boligtype
- Enebolig
- Eieform
- Eier (Selveier)
- Soverom
- 3
- Internt bruksareal
- 165 m² (BRA-i)
- Bruksareal
- 181 m²
- Eksternt bruksareal
- 16 m² (BRA-e)
- Balkong/Terrasse
- 20 m² (TBA)
- Etasje
- 1
- Byggeår
- 1968
- Energimerking
- G - Rød
- Rom
- 4
- Tomteareal
- 442 m² (eiet)
Fasiliteter
Balkong/Terrasse
Garasje/P-plass
Offentlig vann/kloakk
Peis/Ildsted
Bredbåndstilknytning
Rolig
Om boligen
EIE eiendomsmegling ved Julie Marie Vollan Brennvik ønsker velkommen til Rømmesveien 2B.
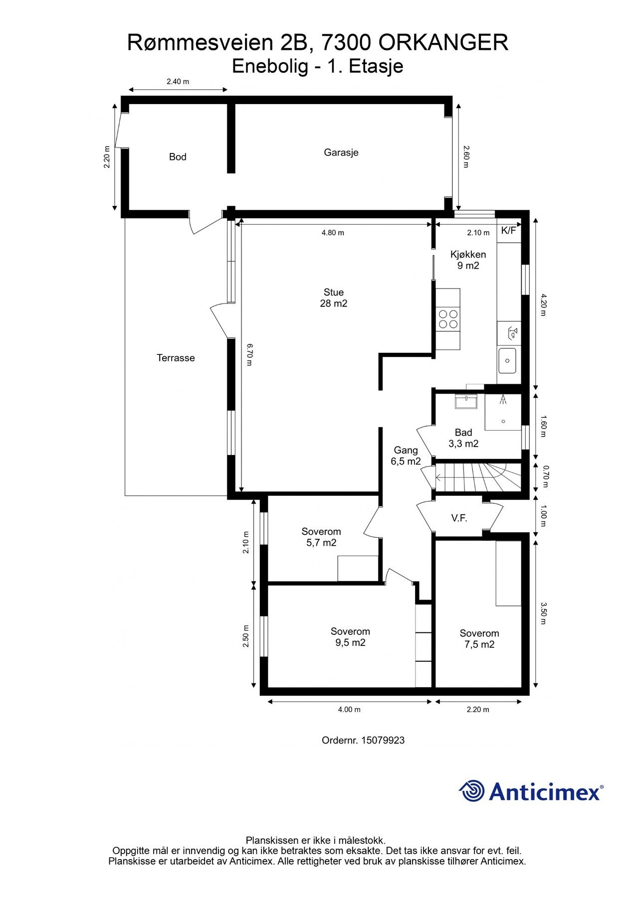
Boligen går over to etasjer, hoved- og kjellerplan. Man finner tre romslige soverom, en luftig stue og et nyere kjøkken med moderne hvitevarer. Badet er av enklere standard med bla. dusjkabinett. I tillegg er det etablert vaskerom i kjeller, og flere boder til oppbevaring.
Tomten er på 442 kvm, og består av enkelgarasje og oppkjørsel, samt en sørvendt og frodig hage på baksiden av boligen. Ved hagen kan man nyte lange og deilige sommerdager.
Fra boligen er det kort avstand til et bredt servicetilbud i sentrum av Orkanger. Her finner man blant annet kjøpesenter, dagligvarebutikker, caféer, treningssenter, offentlige tjenester og andre sentrumsfunksjoner.
Rømmesveien 2B har flere bygningsdeler har behov for oppgraderinger, og mulighetene her er mange for den som ønsker å gjøre dette hjemmet til sitt eget.
Velkommen til hyggelig EIE-visning!
Boligen går over to etasjer, hoved- og kjellerplan. Man finner tre romslige soverom, en luftig stue og et nyere kjøkken med moderne hvitevarer. Badet er av enklere standard med bla. dusjkabinett. I tillegg er det etablert vaskerom i kjeller, og flere boder til oppbevaring.
Tomten er på 442 kvm, og består av enkelgarasje og oppkjørsel, samt en sørvendt og frodig hage på baksiden av boligen. Ved hagen kan man nyte lange og deilige sommerdager.
Fra boligen er det kort avstand til et bredt servicetilbud i sentrum av Orkanger. Her finner man blant annet kjøpesenter, dagligvarebutikker, caféer, treningssenter, offentlige tjenester og andre sentrumsfunksjoner.
Rømmesveien 2B har flere bygningsdeler har behov for oppgraderinger, og mulighetene her er mange for den som ønsker å gjøre dette hjemmet til sitt eget.
Velkommen til hyggelig EIE-visning!
NB: Knappen for å vise hele beskrivelsen har kun en visuell effekt.
NB: Knappen for å vise hele beskrivelsen har kun en visuell effekt.
Salgsoppgaven beskriver vesentlig og lovpålagt informasjon om eiendommen
Se komplett salgsoppgaveNyttige lenker
Nærområdet
EIE eiendomsmegling Heimdal

Julie Marie Vollan Brennvik
Eiendomsmeglerfullmektig | Markeds- og sosiale medier ansvarlig
Kim Andrè Høybakken
Annonseinformasjon
| FINN-kode | 453963396 |
|---|---|
| Sist endret | 12. mars 2026 17:29 |
| Referanse | 97260044 |
Annonsene kan være mangelfulle i forhold til lovpålagt opplysningsplikt. Før bindende avtale inngås oppfordres interessenter til å innhente komplett informasjon fra meglerforetaket, selger eller utleier.






































