Bildegalleri

EIE eiendomsmegling ved Daniel Lanto har gleden av å presentere Johan Nygaardsvolds vei 11A! Fotograf: Robin Hope Syrstad
Stilren og innholdsrik enebolig | Kun TG0/TG1 | Solrike uteplasser | Attraktiv og familievennlig beliggenhet
Prisantydning6 990 000 kr
Nøkkelinfo
- Boligtype
- Enebolig
- Eieform
- Eier (Selveier)
- Soverom
- 4
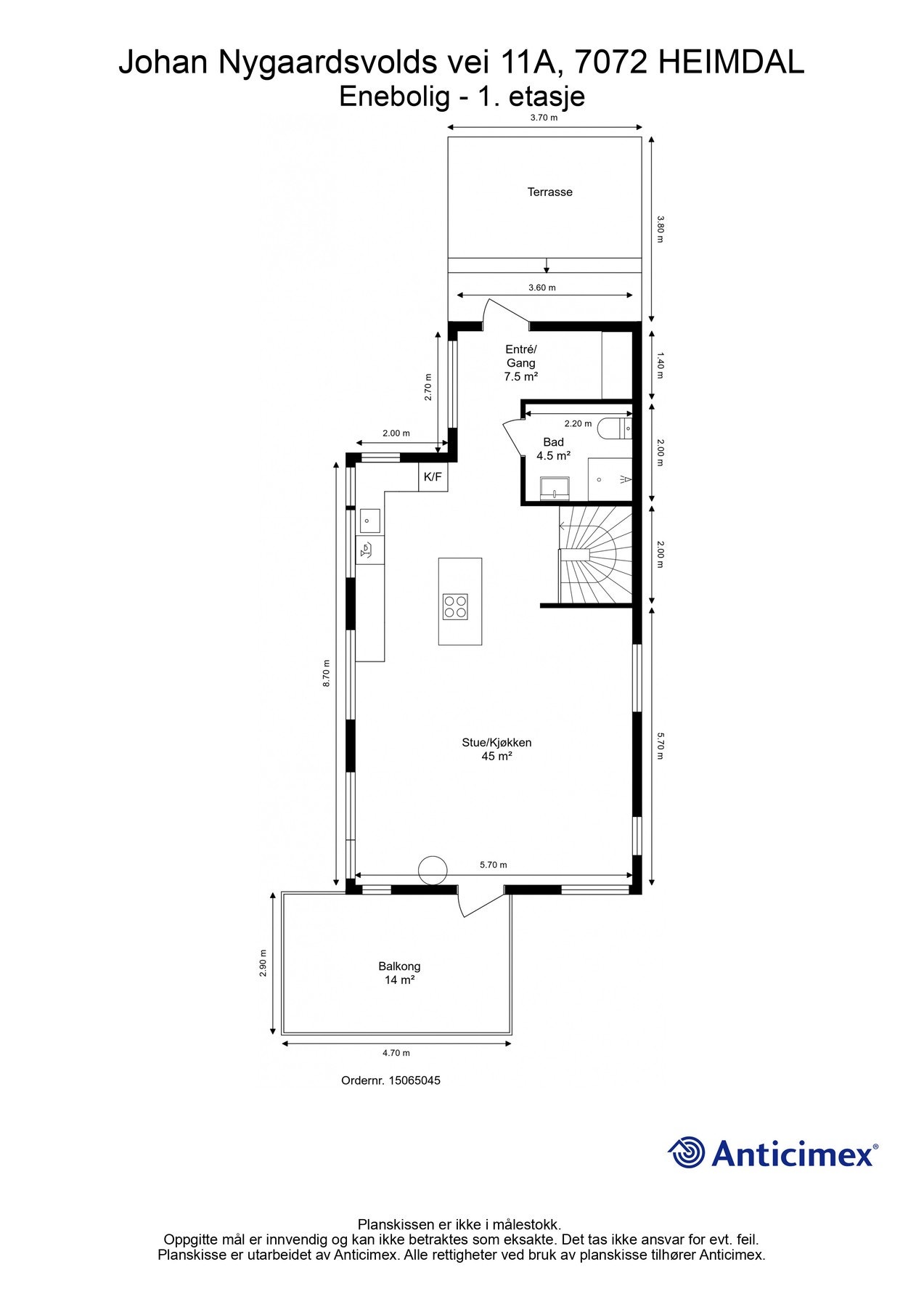
- Internt bruksareal
- 123 m² (BRA-i)
- Bruksareal
- 131 m²
- Eksternt bruksareal
- 8 m² (BRA-e)
- Balkong/Terrasse
- 29 m² (TBA)
- Byggeår
- 2022
- Energimerking
- C - Lysegrønn
- Rom
- 5
- Tomteareal
- 383 m² (eiet)
Fasiliteter
Barnevennlig
Balkong/Terrasse
Garasje/P-plass
Kabel-TV
Offentlig vann/kloakk
Parkett
Turterreng
Sentralt
Bredbåndstilknytning
Moderne
Rolig
Lademulighet
Balansert ventilasjon
Om boligen
EIE eiendomsmegling ved Daniel Lanto har gleden av å presentere Johan Nygaardsvolds vei 11A.
En svært pen og innholdsrik bolig over to plan med gjennomgående god standard og familievennlig planløsning. Boligen har lyse og delikate overflater, romslige oppholdsrom og flere soverom samlet i en privat sone i underetasjen, samt åpen stue- og kjøkkenløsning i hovedetasjen som skaper et sosialt og innbydende allrom.
Eiendommen ligger i et trygt og etablert boligområde på Heimdal, godt egnet for familier og etablerere. Her har du kort vei til kollektivtransport, skoler, barnehager og dagligvarebutikker, samt gode servicetilbud i nærområdet. Området oppleves som svært trygt og barnevennlig, med gode oppvekstvilkår og nærhet til både Heimdal sentrum og Trondheim.
Merk deg dette:
- Kun TG0 og TG1 punkter
- Balansert ventilasjon
- Skreddersydd plissegardiner
- To bad og eget vaskerom
- Kjøkkenet med hvitevarer fra Siemens.
- Carport med ellbilader
- Innholdsrik bolig over to plan
En svært pen og innholdsrik bolig over to plan med gjennomgående god standard og familievennlig planløsning. Boligen har lyse og delikate overflater, romslige oppholdsrom og flere soverom samlet i en privat sone i underetasjen, samt åpen stue- og kjøkkenløsning i hovedetasjen som skaper et sosialt og innbydende allrom.
Eiendommen ligger i et trygt og etablert boligområde på Heimdal, godt egnet for familier og etablerere. Her har du kort vei til kollektivtransport, skoler, barnehager og dagligvarebutikker, samt gode servicetilbud i nærområdet. Området oppleves som svært trygt og barnevennlig, med gode oppvekstvilkår og nærhet til både Heimdal sentrum og Trondheim.
Merk deg dette:
- Kun TG0 og TG1 punkter
- Balansert ventilasjon
- Skreddersydd plissegardiner
- To bad og eget vaskerom
- Kjøkkenet med hvitevarer fra Siemens.
- Carport med ellbilader
- Innholdsrik bolig over to plan
NB: Knappen for å vise hele beskrivelsen har kun en visuell effekt.
NB: Knappen for å vise hele beskrivelsen har kun en visuell effekt.
Salgsoppgaven beskriver vesentlig og lovpålagt informasjon om eiendommen
Se komplett salgsoppgaveNyttige lenker
Nærområdet
EIE eiendomsmegling Trondheim sentrum
Annonseinformasjon
| FINN-kode | 453949446 |
|---|---|
| Sist endret | 18. mars 2026 05:03 |
| Referanse | 33260017 |
Annonsene kan være mangelfulle i forhold til lovpålagt opplysningsplikt. Før bindende avtale inngås oppfordres interessenter til å innhente komplett informasjon fra meglerforetaket, selger eller utleier.








































