Bildegalleri

Jonas Ekse Hovland v/Krogsveen har gleden av å presentere en lys og delikat 3-roms på populære Ensjø.
Ensjø
Lys, delikat og gjennomgående 3-roms med sydvendt balkong | Kjøkken fra 2021 | Fyring, V.vann og bredbånd inkl.
Prisantydning5 700 000 kr
Nøkkelinfo
- Boligtype
- Leilighet
- Eieform
- Aksje
- Soverom
- 2
- Internt bruksareal
- 63 m² (BRA-i)
- Bruksareal
- 79 m²
- Eksternt bruksareal
- 16 m² (BRA-e)
- Balkong/Terrasse
- 7 m² (TBA)
- Etasje
- 2
- Byggeår
- 1949
- Energimerking
- C - Lysegrønn
- Rom
- 3
- Tomteareal
- 4 140 m² (eiet)
Fasiliteter
Balkong/Terrasse
Barnevennlig
Bredbåndstilknytning
Garasje/P-plass
Kjæledyr tillatt
Offentlig vann/kloakk
Rolig
Sentralt
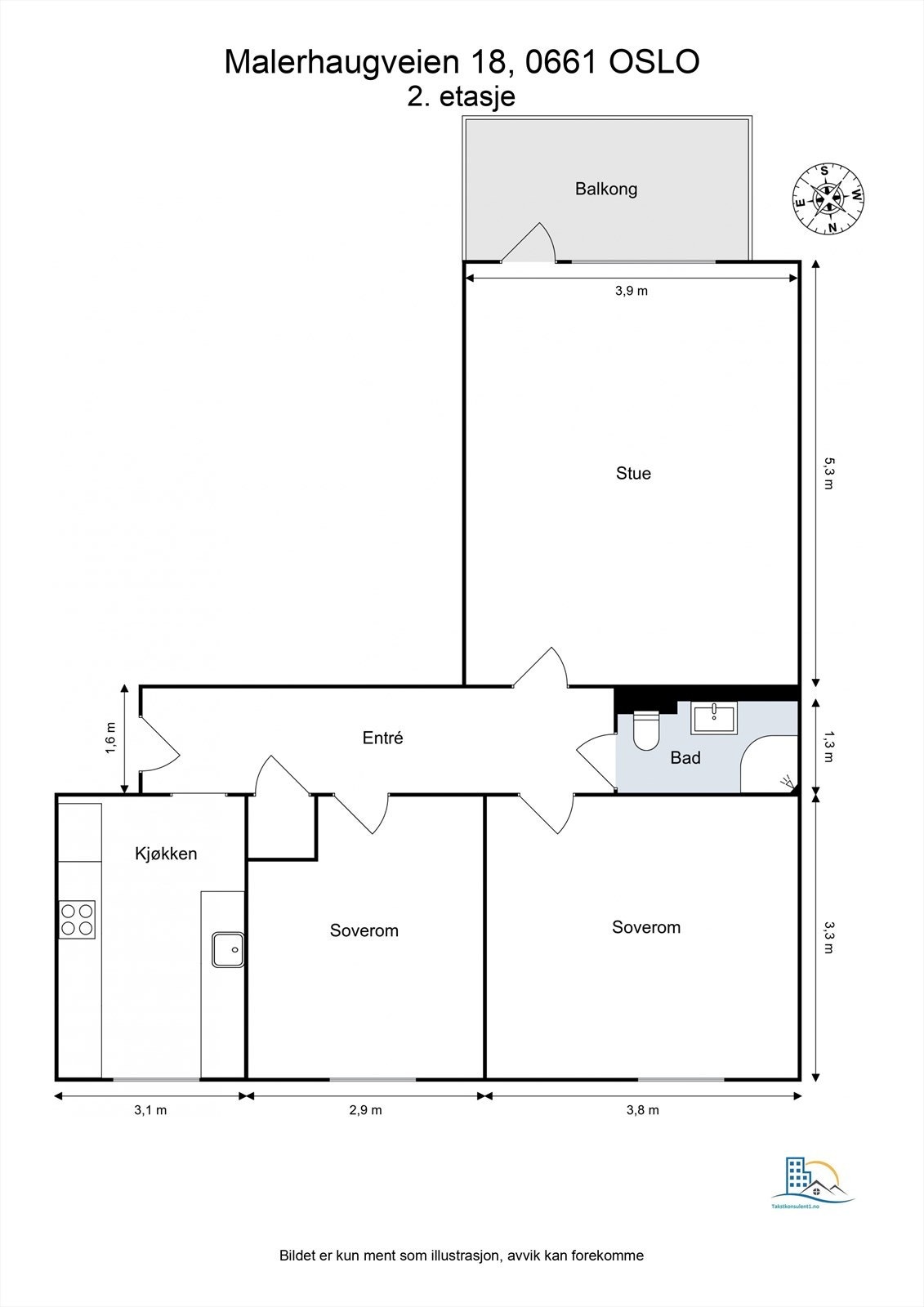
Om boligen
Velkommen til Malerhaugveien 18! En stilfull 3-roms aksjeleilighet sentralt på populære Ensjø.
Her bor du i et veletablert og trygt nabolag, beskrevet som en liten grønn oase i byen. Leiligheten har en god planløsning med romslig stue, utgang til sydvendt balkong og et moderne kjøkken. Med kort vei til servicetilbud, offentlig kommunikasjon og turområder, er dette en perfekt bolig for en enkel og urban hverdag.
Høydepunkter:
Her bor du i et veletablert og trygt nabolag, beskrevet som en liten grønn oase i byen. Leiligheten har en god planløsning med romslig stue, utgang til sydvendt balkong og et moderne kjøkken. Med kort vei til servicetilbud, offentlig kommunikasjon og turområder, er dette en perfekt bolig for en enkel og urban hverdag.
Høydepunkter:
- Funskjonelt Epoq-kjøkken fra 2021 m/ integrerte hvitevarer
- Gjennomgående planløsning med god størrelse på alle rom
- Sydvendt balkong på ca. 6,5 m²
- Flislagt bad med gulvvarme
- Fyring/V.vann og bredbånd inkl.
- God lagringsplass i kjeller- og loftsbod
- Mulighet for leie av parkeringsplass
- Kort vei til T-bane og buss
NB: Knappen for å vise hele beskrivelsen har kun en visuell effekt.
NB: Knappen for å vise hele beskrivelsen har kun en visuell effekt.
Salgsoppgaven beskriver vesentlig og lovpålagt informasjon om eiendommen
Se komplett salgsoppgaveNyttige lenker
Nærområdet
Krogsveen Hasle
Verdien av en god megler.
Annonseinformasjon
| FINN-kode | 453943518 |
|---|---|
| Sist endret | 09. mars 2026 16:52 |
| Referanse | KR37.2617 |
Annonsene kan være mangelfulle i forhold til lovpålagt opplysningsplikt. Før bindende avtale inngås oppfordres interessenter til å innhente komplett informasjon fra meglerforetaket, selger eller utleier.










































