Bildegalleri

Velkommen til Fjordveien 79C presentert av Eiendomsmegler Edvard Chapsang v/EIE eiendomsmegling Bærum! Foto: Luxe AS (Anders Kjøndal)
ATTRAKTIV & GJENNOMGÅENDE 3-ROMS HJØRNELEILIGHET PÅ NEDRE HØVIK - PEIS - 2 BALKONGER- GODE SOLFORHOD - NÆRHET TIL SJØEN
Prisantydning8 700 000 kr
Nøkkelinfo
- Boligtype
- Leilighet
- Eieform
- Eier (Selveier)
- Soverom
- 2
- Internt bruksareal
- 101 m² (BRA-i)
- Bruksareal
- 107 m²
- Eksternt bruksareal
- 6 m² (BRA-e)
- Balkong/Terrasse
- 9 m² (TBA)
- Etasje
- 2
- Byggeår
- 1961
- Tomteareal
- 28 851 m²
Fasiliteter
Barnevennlig
Balkong/Terrasse
Kabel-TV
Offentlig vann/kloakk
Parkett
Peis/Ildsted
Turterreng
Utsikt
Fellesvaskeri
Sentralt
Bredbåndstilknytning
Rolig
Bademulighet
Om boligen
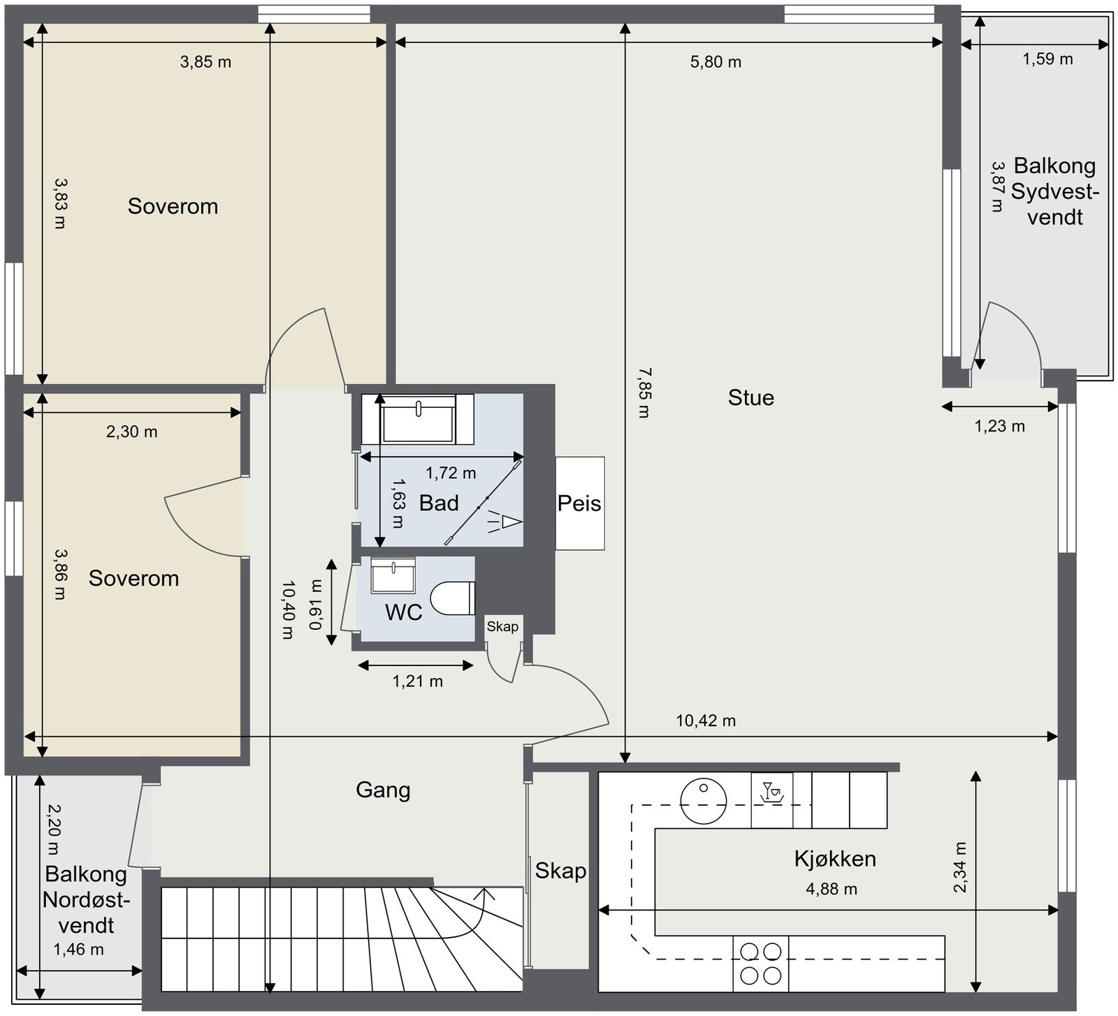
Velkommen til Fjordveien 79C - En attraktiv og gjennomgående 3-roms hjørneleilighet med svært god beliggenhet på populære Nedre Høvik. Her bor du i et rolig og etablert boligområde med nærhet til sjøen, flotte turområder og gode servicetilbud. Leiligheten har en funksjonell planløsning med lyse rom og gode møbleringsmuligheter, samt to balkonger som gir hyggelige uteplasser.
Boligen inneholder kjøkken, romslig stue, trapperom/hall, gang, bad, separat toalettrom samt to soverom. Planløsningen oppleves praktisk og gir en god flyt mellom rommene.
Leiligheten har oppgraderingsbehov, noe som gir gode muligheter til å modernisere boligen og sette sitt eget preg på både materialvalg og løsninger.
Beliggenheten er svært attraktiv med kort vei til badeplasser, båthavn og den populære kyststien, samt barnehager, skoler, dagligvarebutikker og offentlig kommunikasjon. Området er kjent for sitt gode bomiljø og sin nærhet til både natur og byfasiliteter.
Boligen inneholder kjøkken, romslig stue, trapperom/hall, gang, bad, separat toalettrom samt to soverom. Planløsningen oppleves praktisk og gir en god flyt mellom rommene.
Leiligheten har oppgraderingsbehov, noe som gir gode muligheter til å modernisere boligen og sette sitt eget preg på både materialvalg og løsninger.
Beliggenheten er svært attraktiv med kort vei til badeplasser, båthavn og den populære kyststien, samt barnehager, skoler, dagligvarebutikker og offentlig kommunikasjon. Området er kjent for sitt gode bomiljø og sin nærhet til både natur og byfasiliteter.
NB: Knappen for å vise hele beskrivelsen har kun en visuell effekt.
NB: Knappen for å vise hele beskrivelsen har kun en visuell effekt.
Salgsoppgaven beskriver vesentlig og lovpålagt informasjon om eiendommen
Se komplett salgsoppgaveNyttige lenker
Nærområdet
EIE eiendomsmegling Bærum
Annonseinformasjon
| FINN-kode | 453941089 |
|---|---|
| Sist endret | 07. mars 2026 17:42 |
| Referanse | 36260050 |
Annonsene kan være mangelfulle i forhold til lovpålagt opplysningsplikt. Før bindende avtale inngås oppfordres interessenter til å innhente komplett informasjon fra meglerforetaket, selger eller utleier.





































