Bildegalleri

Velkommen til Ragkroken 11 - En lekker, arkitekttegnet enebolig med alt på ett plan. Hage og vinterhage med gode solforhold.
Slåtthaug/Madla
Arkitekttegnet enebolig med alt på ett plan. Ettertraktet og rolig boligområde ved Golfbanen. Lekkert oppusset.
Prisantydning8 250 000 kr
Nøkkelinfo
- Boligtype
- Enebolig
- Eieform
- Eier (Selveier)
- Soverom
- 3
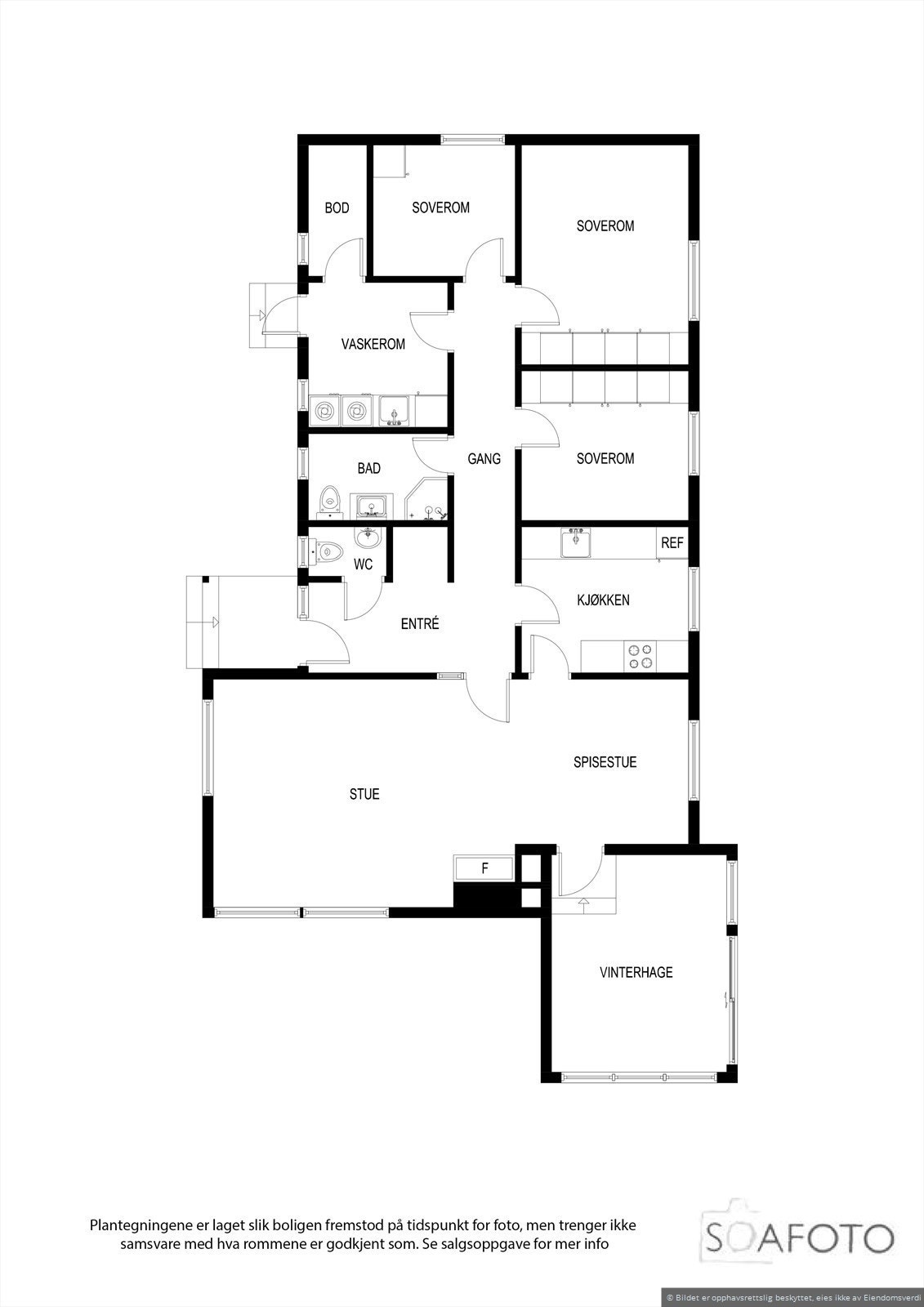
- Internt bruksareal
- 110 m² (BRA-i)
- Bruksareal
- 132 m²
- Eksternt bruksareal
- 22 m² (BRA-e)
- Balkong/Terrasse
- 12 m² (TBA)
- Byggeår
- 1968
- Energimerking
- F
- Rom
- 4
- Tomteareal
- 582 m² (eiet)
Fasiliteter
Balkong/Terrasse
Barnevennlig
Garasje/P-plass
Golfbane
Hage
Offentlig vann/kloakk
Parkett
Peis/Ildsted
Rolig
Sentralt
Bademulighet
Turterreng
Lademulighet
Om boligen
En av de få gjenværende bungalowene på Oljeberget er nå for salg. Ordfører Arne Rettedal etablerte i sin tid her en 18-hulls golfbane og et helt nytt boligfelt for Ocean Drilling and Exploration Company.
Boligen er arkitekttegnet, med smart løsning på ett plan. Vesentlig oppgradert i 2013, med vekt på originalt og tidsriktig uttrykk både innvendig og utvendig. Ildsted i skifer, teakdører og kjøkken fra Uno Form Classic designet av Arne Munch i 1968 m.m. Bad og vaskerom er også oppusset bl.a. mosaikkfliser fra Italienske Appiani, og baderomsmøbel som er en reproduksjon fra 1970. Resterende gulvflater består av en-stavs eikeparkett og linoleum. Huset har oppgradert elektrisk anlegg og rør-i-rør system.
Pent opparbeidet tomt med solrike uteplasser og herlig vinterhage.
Garasje.
Boligen er arkitekttegnet, med smart løsning på ett plan. Vesentlig oppgradert i 2013, med vekt på originalt og tidsriktig uttrykk både innvendig og utvendig. Ildsted i skifer, teakdører og kjøkken fra Uno Form Classic designet av Arne Munch i 1968 m.m. Bad og vaskerom er også oppusset bl.a. mosaikkfliser fra Italienske Appiani, og baderomsmøbel som er en reproduksjon fra 1970. Resterende gulvflater består av en-stavs eikeparkett og linoleum. Huset har oppgradert elektrisk anlegg og rør-i-rør system.
Pent opparbeidet tomt med solrike uteplasser og herlig vinterhage.
Garasje.
NB: Knappen for å vise hele beskrivelsen har kun en visuell effekt.
NB: Knappen for å vise hele beskrivelsen har kun en visuell effekt.
Salgsoppgaven beskriver vesentlig og lovpålagt informasjon om eiendommen
Se komplett salgsoppgaveNyttige lenker
Nærområdet
EiendomsMegler 1 Madla
En del av Sparebank 1 Sør-Norge
Annonseinformasjon
| FINN-kode | 453936592 |
|---|---|
| Sist endret | 06. mars 2026 20:27 |
| Referanse | 2205260094 |
Annonsene kan være mangelfulle i forhold til lovpålagt opplysningsplikt. Før bindende avtale inngås oppfordres interessenter til å innhente komplett informasjon fra meglerforetaket, selger eller utleier.

















































