Bildegalleri

Flott enebolig med flat, solrik og frodig hage
GJETTUM
Tiltalende og innholdsrik enebolig med solrik, vakker tomt på 1 mål - Kjeller med egen inngang - Garasje med loft
Prisantydning15 250 000 kr
Nøkkelinfo
- Boligtype
- Enebolig
- Eieform
- Eier (Selveier)
- Soverom
- 4
- Internt bruksareal
- 262 m² (BRA-i)
- Bruksareal
- 314 m²
- Eksternt bruksareal
- 52 m² (BRA-e)
- Balkong/Terrasse
- 74 m² (TBA)
- Byggeår
- 1990
- Energimerking
- D - Gul
- Tomteareal
- 1 009 m² (eiet)
Fasiliteter
Barnevennlig
Balkong/Terrasse
Garasje/P-plass
Offentlig vann/kloakk
Parkett
Peis/Ildsted
Turterreng
Sentralt
Bredbåndstilknytning
Rolig
Visning
onsdag, 25. mars
18:00 – 19:00
Velkommen til visning!
Alle våre visninger har påmelding. På denne måten sikrer vi at megler har god oversikt og tid til å imøtekomme alle interessenter på beste måte. Dette er veldig verdifullt for boligkjøpere og for oss. Det er enkelt å melde seg på, og du kan like enkelt melde deg av. Kontakt også gjerne megler i forkant av visning dersom du har spørsmål.
Om boligen
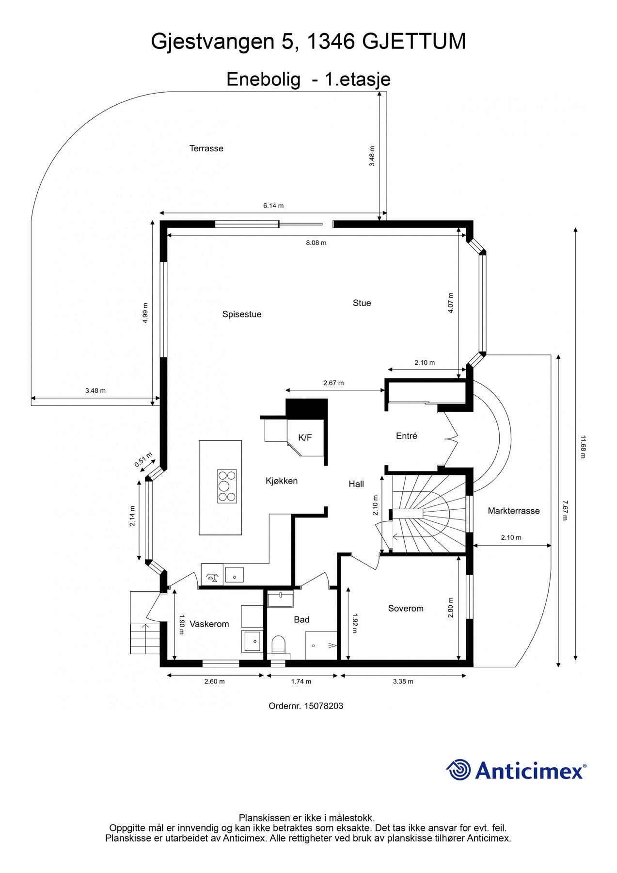
Innholdsrik, arkitekttegnet enebolig med attraktiv planløsning over tre plan. Boligen byr på hele fire soverom, romslige og lyse oppholdsrom med peis og utgang til solrik terrasse og hage, samt kjøkken fra 2015 med stor kjøkkenøy og integrerte hvitevarer. 2 bad (et er fra 2015), praktisk vaskerom m/ egen inngang og gode oppbevaringsmuligheter i både boder og kjeller gir en funksjonell hverdag.
Eiendommen har særdeles pent opparbeidet tomt, asfaltert/ steinsatt gårdsplass med gode parkeringsmuligheter. En gjennomført og velholdt bolig med mange bruksmuligheter og gode kvaliteter - perfekt for familien som ønsker både plass og komfort.
Eiendommen ligger i et rolig og familievennlig område med kort gangavstand til dagligvare, buss og T-bane, og kun noen minutter til Sandvika sentrum med shopping, kultur og restauranter. Nærområdet byr på gode skoler, fritids- og idrettstilbud, samt enkel tilgang til marka, badeplasser og Oslofjorden, perfekt for både aktive familier og naturopplevelser.
Eiendommen har særdeles pent opparbeidet tomt, asfaltert/ steinsatt gårdsplass med gode parkeringsmuligheter. En gjennomført og velholdt bolig med mange bruksmuligheter og gode kvaliteter - perfekt for familien som ønsker både plass og komfort.
Eiendommen ligger i et rolig og familievennlig område med kort gangavstand til dagligvare, buss og T-bane, og kun noen minutter til Sandvika sentrum med shopping, kultur og restauranter. Nærområdet byr på gode skoler, fritids- og idrettstilbud, samt enkel tilgang til marka, badeplasser og Oslofjorden, perfekt for både aktive familier og naturopplevelser.
NB: Knappen for å vise hele beskrivelsen har kun en visuell effekt.
NB: Knappen for å vise hele beskrivelsen har kun en visuell effekt.
Salgsoppgaven beskriver vesentlig og lovpålagt informasjon om eiendommen
Se komplett salgsoppgaveNyttige lenker
Nærområdet
PrivatMegleren Bærum
Kun det beste på dine vegne
Annonsene kan være mangelfulle i forhold til lovpålagt opplysningsplikt. Før bindende avtale inngås oppfordres interessenter til å innhente komplett informasjon fra meglerforetaket, selger eller utleier.


































































