Bildegalleri

PrivatMegleren Aksept v/ Marte Førde har gleden av å ønske velkommen til Uelands gate 38!
St. Hanshaugen
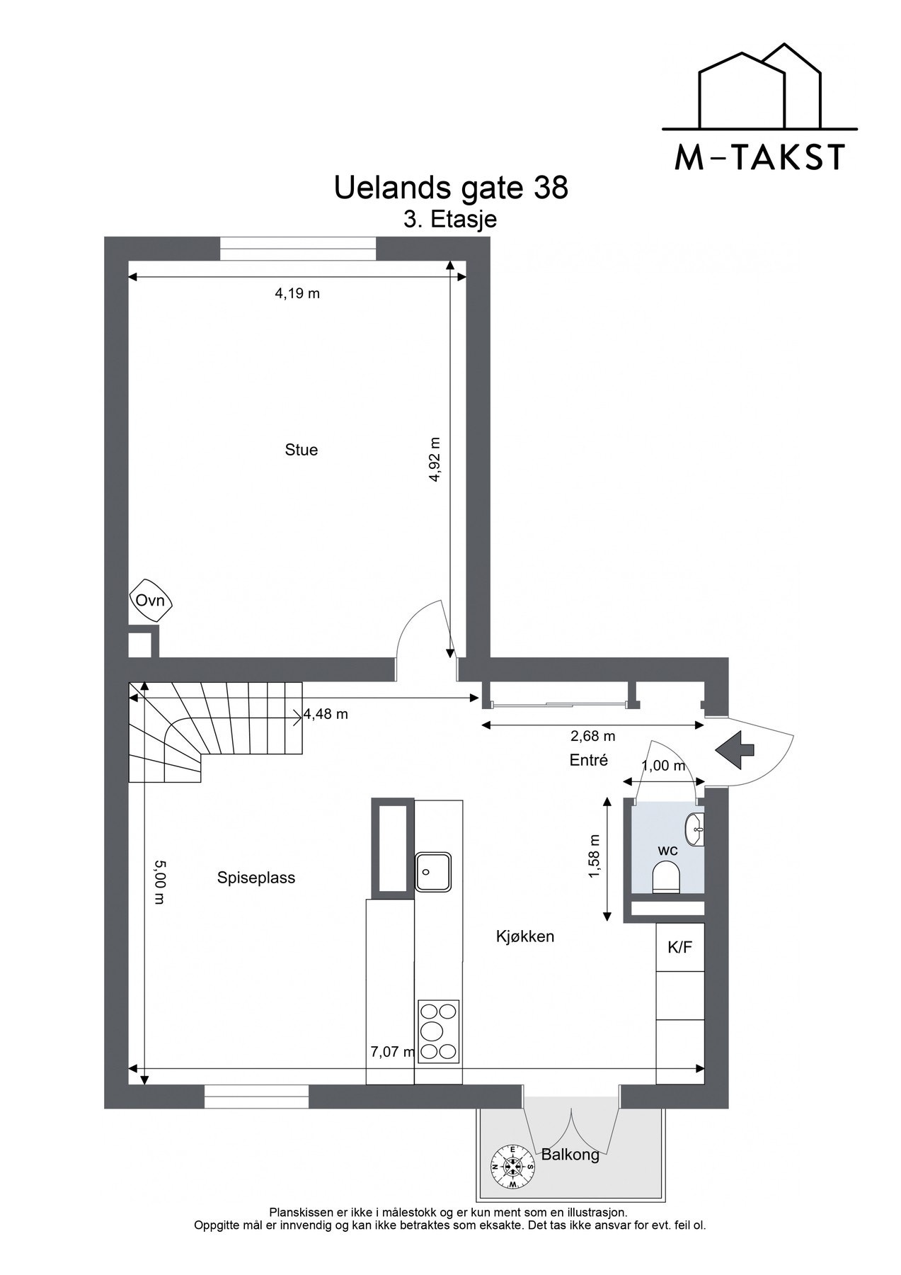
Toppleilighet over to plan med sjel - 112 kvm BRA - Vestvendt balkong - HTH-kjøkken m/vinskap - Peis
Prisantydning9 800 000 kr
Nøkkelinfo
- Boligtype
- Leilighet
- Eieform
- Andel
- Soverom
- 2
- Internt bruksareal
- 100 m² (BRA-i)
- Bruksareal
- 112 m²
- Eksternt bruksareal
- 12 m² (BRA-e)
- Balkong/Terrasse
- 3 m² (TBA)
- Etasje
- 3
- Byggeår
- 1928
- Energimerking
- G - Oransje
- Rom
- 4
- Tomteareal
- 4 886 m² (festet)
- Festeavgift
- 100 000 kr
Fasiliteter
Balkong/Terrasse
Barnevennlig
Bredbåndstilknytning
Moderne
Offentlig vann/kloakk
Peis/Ildsted
Rolig
Sentralt
Visning
søndag, 15. mars
13:30 – 14:15
Velkommen til visning!Alle våre visninger har påmelding. På denne måten sikrer vi at megler har god oversikt og tid til å imøtekomme alle interessenter på beste måte. Dette er veldig verdifullt for boligkjøpere og for oss. Det er enkelt å melde seg på, og du kan like enkelt melde deg av. Kontakt også gjerne megler i forkant av visning dersom du har spørsmål.
mandag, 16. mars
18:15 – 19:00
Velkommen til visning!Alle våre visninger har påmelding. På denne måten sikrer vi at megler har god oversikt og tid til å imøtekomme alle interessenter på beste måte. Dette er veldig verdifullt for boligkjøpere og for oss. Det er enkelt å melde seg på, og du kan like enkelt melde deg av. Kontakt også gjerne megler i forkant av visning dersom du har spørsmål.
Om boligen
Velkommen til Uelands gate 38 - som et lite hus midt i byen! En unik toppleilighet over to plan, kombinert med klassisk sjel og eksklusivitet i grenselandet mellom St. Hanshaugen og Grünerløkka.
Kjøkken som samlingsplass
Lekkert HTH-kjøkken med Quooker, vinskap og integrerte Miele-hvitevarer. Utgang til vestvendt balkong mot stille bakgård. Åpen løsning mot spisestuen gjør dette til boligens hjerte.
Stue med atmosfære
Separat TV-stue med lun peisovn og plassbygde løsninger. Gjennomgående enstavs eikeparkett og luftige rom over to plan skaper et hjem med sjel og karakter.
Privat sone
Hovedsoverom med 3,54 m takhøyde og praktisk hems. I øverste plan finnes også et allsidig ekstrarom - perfekt som kontor eller walk-in closet.
Kvaliteter:
- Toppleilighet over 2 plan
- Ingen forkjøpsrett og lave omkostninger
- Solrik, vestvendt balkong
- HTH-kjøkken fra 2018
- Integrerte hvitevarer fra Miele
- Quooker og Temptech vinskap
- Enstavs eikeparkett
- Stilren peisovn
Kjøkken som samlingsplass
Lekkert HTH-kjøkken med Quooker, vinskap og integrerte Miele-hvitevarer. Utgang til vestvendt balkong mot stille bakgård. Åpen løsning mot spisestuen gjør dette til boligens hjerte.
Stue med atmosfære
Separat TV-stue med lun peisovn og plassbygde løsninger. Gjennomgående enstavs eikeparkett og luftige rom over to plan skaper et hjem med sjel og karakter.
Privat sone
Hovedsoverom med 3,54 m takhøyde og praktisk hems. I øverste plan finnes også et allsidig ekstrarom - perfekt som kontor eller walk-in closet.
Kvaliteter:
- Toppleilighet over 2 plan
- Ingen forkjøpsrett og lave omkostninger
- Solrik, vestvendt balkong
- HTH-kjøkken fra 2018
- Integrerte hvitevarer fra Miele
- Quooker og Temptech vinskap
- Enstavs eikeparkett
- Stilren peisovn
NB: Knappen for å vise hele beskrivelsen har kun en visuell effekt.
NB: Knappen for å vise hele beskrivelsen har kun en visuell effekt.
Salgsoppgaven beskriver vesentlig og lovpålagt informasjon om eiendommen
Se komplett salgsoppgaveNyttige lenker
Nærområdet

PrivatMegleren Aksept
Kun det beste på dine vegne
Annonseinformasjon
| FINN-kode | 453884374 |
|---|---|
| Sist endret | 06. mars 2026 15:29 |
| Referanse | 92260090 |
Annonsene kan være mangelfulle i forhold til lovpålagt opplysningsplikt. Før bindende avtale inngås oppfordres interessenter til å innhente komplett informasjon fra meglerforetaket, selger eller utleier.












































