Bildegalleri

PrivatMegleren Infinita ved Jan-Erik Gulbrandsen og Therese Bjerke har gleden av å presentere Sandefjordgata 2B! (Foto: Marika Mørkestøl)
Solgt
Sagene
Sjarmerende 2(3)-roms sentralt på Sagene - God takhøyde - Tregulv - Kjøkken fra 2021 - Fyring og varmtvann inkludert!
Prisantydning4 900 000 kr
Nøkkelinfo
- Boligtype
- Leilighet
- Eieform
- Andel
- Soverom
- 1
- Internt bruksareal
- 52 m² (BRA-i)
- Bruksareal
- 58 m²
- Eksternt bruksareal
- 6 m² (BRA-e)
- Etasje
- 2
- Byggeår
- 1940
- Energimerking
- G - Mørkegrønn
- Rom
- 2
- Tomteareal
- 3 051 m² (festet)
- Festeavgift
- 123 000 kr
Fasiliteter
Offentlig vann/kloakk
Vaktmester-/vektertjeneste
Fellesvaskeri
Sentralt
Bredbåndstilknytning
Rolig
Om boligen
Velkommen til Sandefjordgata 2B - en romslig og tiltalende 2(3)-roms leilighet med attraktiv beliggenhet på Sagene!
Her bor du i et levende og populært område med kort vei til butikker, kafeer, treningssentre og kollektivtransport. Samtidig har du flotte rekreasjonsmuligheter like i nærheten, med både Akerselva, Voldsløkka og flere parker innen kort gangavstand.
Leiligheten har en luftig planløsning med god takhøyde!
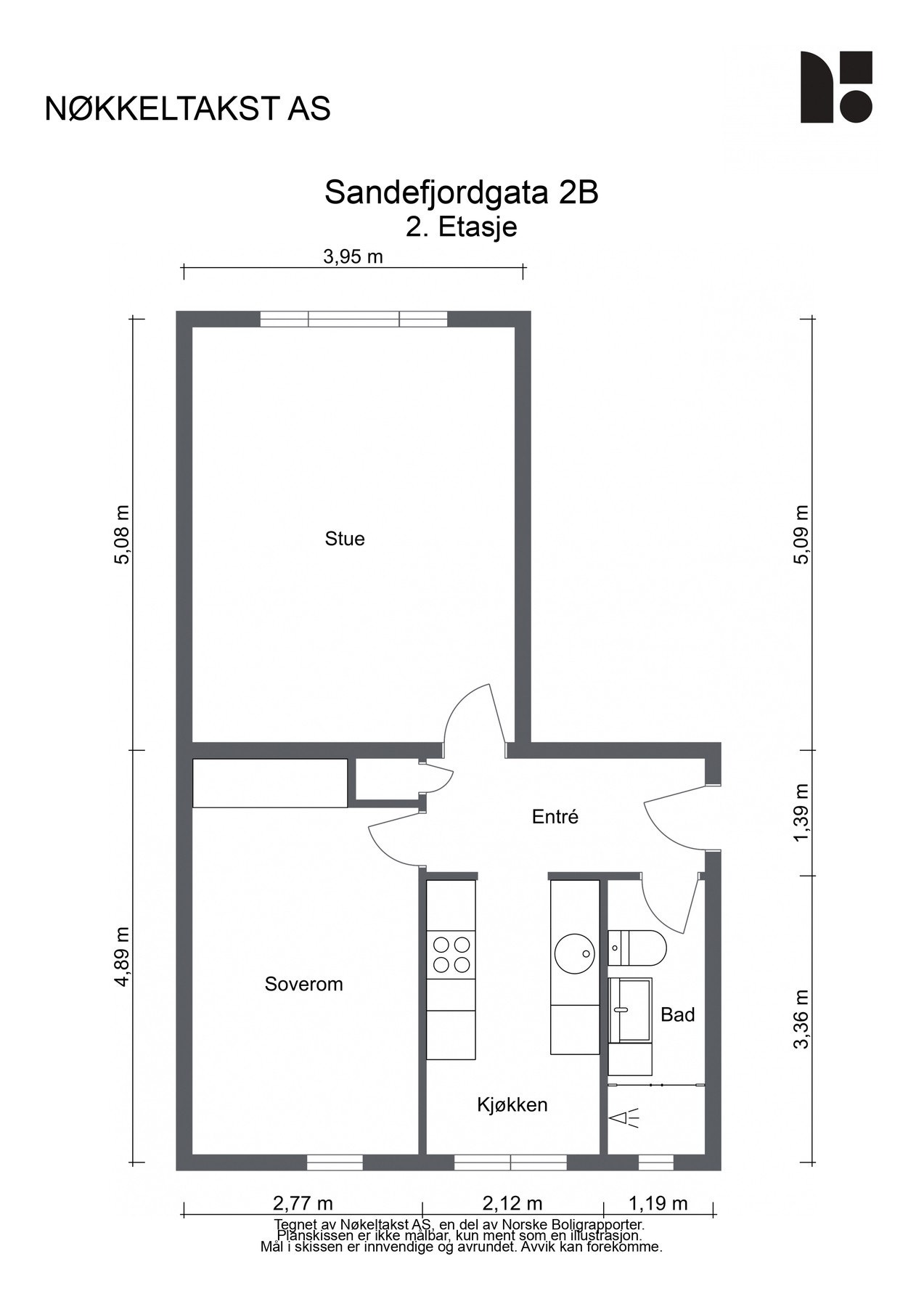
Planløsningen består av entré med integrert skap, romslig stue med sydøstvendte vinduer og meget god takhøyde på opptil 2,69 meter, kjøkken fra 2021 med integrerte hvitevarer og gode arbeidsflater, et stort soverom med integrert garderobeskap og et flislagt bad med varmekabler og opplegg for vaskemaskin. Leiligheten disponerer både lofts- og kjellerbod.
Det er også mulighet for å etablere et ekstra soverom ved å flytte kjøkkenet (se alternativ planskisse).
Borettslaget har IN-ordning.
Velkommen!
Her bor du i et levende og populært område med kort vei til butikker, kafeer, treningssentre og kollektivtransport. Samtidig har du flotte rekreasjonsmuligheter like i nærheten, med både Akerselva, Voldsløkka og flere parker innen kort gangavstand.
Leiligheten har en luftig planløsning med god takhøyde!
Planløsningen består av entré med integrert skap, romslig stue med sydøstvendte vinduer og meget god takhøyde på opptil 2,69 meter, kjøkken fra 2021 med integrerte hvitevarer og gode arbeidsflater, et stort soverom med integrert garderobeskap og et flislagt bad med varmekabler og opplegg for vaskemaskin. Leiligheten disponerer både lofts- og kjellerbod.
Det er også mulighet for å etablere et ekstra soverom ved å flytte kjøkkenet (se alternativ planskisse).
Borettslaget har IN-ordning.
Velkommen!
NB: Knappen for å vise hele beskrivelsen har kun en visuell effekt.
NB: Knappen for å vise hele beskrivelsen har kun en visuell effekt.
Salgsoppgaven beskriver vesentlig og lovpålagt informasjon om eiendommen
Se komplett salgsoppgaveNyttige lenker
Nærområdet

PrivatMegleren Infinita
Kun det beste på dine vegne
Annonseinformasjon
| FINN-kode | 453882981 |
|---|---|
| Sist endret | 16. mars 2026 10:58 |
| Referanse | 174260031 |
Annonsene kan være mangelfulle i forhold til lovpålagt opplysningsplikt. Før bindende avtale inngås oppfordres interessenter til å innhente komplett informasjon fra meglerforetaket, selger eller utleier.





































