Bildegalleri

EiendomsMegler 1 v/Martin Nordmo har gleden av å presentere Kirkegata 69.
Møllenberg
LYS OG DELIKAT 2-ROMS TOPPLEILIGHET PÅ 53KVM - GOD TAKHØYDE OG STORE VINDUSFLATER - KJØKKEN TG1 - ETTERSPURT BELIGGENHET
Prisantydning3 290 000 kr
Nøkkelinfo
- Boligtype
- Leilighet
- Eieform
- Eier (Selveier)
- Soverom
- 1
- Internt bruksareal
- 53 m² (BRA-i)
- Bruksareal
- 62 m²
- Eksternt bruksareal
- 9 m² (BRA-e)
- Etasje
- 3
- Byggeår
- 1898
- Energimerking
- G - Rød
- Rom
- 2
- Tomteareal
- 398 m² (eiet)
Visning
torsdag, 12. mars
18:15 – 19:00
Våre visninger har påmelding. Dette gjør vi for å kunne yte bedre service for våre kunder. Verdifullt for boligkjøper og for oss. Vi anbefaler at salgsoppgaven lastes ned digitalt før visning, og ring oss gjerne på forhånd for spørsmål om boligen. Passer ikke angitt tidspunkt, ta kontakt så finner vi en løsning. Skulle det mot formodning ikke være påmeldte til angitt visningstidspunkt vil ikke visning bli gjennomført.
Om boligen
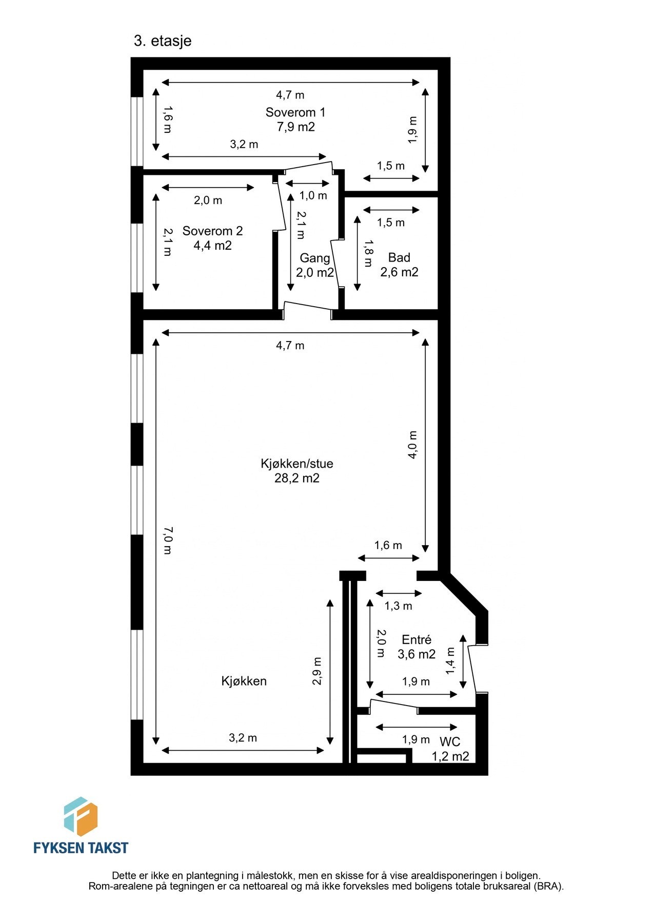
EiendomsMegler 1 v/ Martin Nordmo har gleden av å ønske velkommen til Kirkegata 69. Her får du en delikat 2-roms toppleilighet med en rekke kvaliteter som bl.a. god takhøyde, store vindusflater, gjennomtenkt planløsning og moderne kjøkken fra 2015.
Leiligheten har en etterspurt beliggenhet på vakre Møllenberg med kort vei til sentrum, Solsiden, studiesteder og kollektivtransport. Her bor du med "alt" av fasiliteter like utenfor døren.
Av kvaliteter ønsker vi å trekke frem følgende:
- Åpen stue/kjøkkenløsning på 28,2 kvm
- Lekkert kjøkken fra 2015 (TG1)
- Gjennomgående god takhøyde og store vindusflater (2025) med mye lysinnslipp
- Flislagt baderom med opplegg for vaskemaskin og varme i gulvet
- Bod i kjeller
- Kort vei til NTNU, DMMH, BI og sentrum
- Svært gode kollektivforbindelser rett i nærheten
Velkommen til en hyggelig visning!
Leiligheten har en etterspurt beliggenhet på vakre Møllenberg med kort vei til sentrum, Solsiden, studiesteder og kollektivtransport. Her bor du med "alt" av fasiliteter like utenfor døren.
Av kvaliteter ønsker vi å trekke frem følgende:
- Åpen stue/kjøkkenløsning på 28,2 kvm
- Lekkert kjøkken fra 2015 (TG1)
- Gjennomgående god takhøyde og store vindusflater (2025) med mye lysinnslipp
- Flislagt baderom med opplegg for vaskemaskin og varme i gulvet
- Bod i kjeller
- Kort vei til NTNU, DMMH, BI og sentrum
- Svært gode kollektivforbindelser rett i nærheten
Velkommen til en hyggelig visning!
NB: Knappen for å vise hele beskrivelsen har kun en visuell effekt.
NB: Knappen for å vise hele beskrivelsen har kun en visuell effekt.
Salgsoppgaven beskriver vesentlig og lovpålagt informasjon om eiendommen
Se komplett salgsoppgaveNyttige lenker
Nærområdet
EiendomsMegler 1 Trondheim sentrum, Kongens gate
Vi loser deg trygt gjennom hele boligsalget
Annonseinformasjon
| FINN-kode | 453830125 |
|---|---|
| Sist endret | 05. mars 2026 19:49 |
| Referanse | 32250419 |
Annonsene kan være mangelfulle i forhold til lovpålagt opplysningsplikt. Før bindende avtale inngås oppfordres interessenter til å innhente komplett informasjon fra meglerforetaket, selger eller utleier.




























