Bildegalleri

Velkommen til Pionerstien 8 presentert av Petter Eia Haavi og Anton Vikingstad Pettersen!
Solgt
Ellingsrud
Populær 3-roms hjørneleilighet! Vestvendt balkong på 12 kvm | Bad & separat WC | Garasjeplass | Heis | Oppussingsobjekt
Prisantydning3 700 000 kr
Nøkkelinfo
- Boligtype
- Leilighet
- Eieform
- Andel
- Soverom
- 2
- Internt bruksareal
- 84 m² (BRA-i)
- Bruksareal
- 84 m²
- Balkong/Terrasse
- 12 m² (TBA)
- Etasje
- 4
- Byggeår
- 1980
- Energimerking
- D - Rød
- Rom
- 3
- Tomteareal
- 8 968 m² (eiet)
Fasiliteter
Barnevennlig
Balkong/Terrasse
Garasje/P-plass
Kabel-TV
Heis
Offentlig vann/kloakk
Ingen gjenboere
Turterreng
Vaktmester-/vektertjeneste
Fellesvaskeri
Sentralt
Bredbåndstilknytning
Rolig
Om boligen
Velkommen til Pionerstien 8 presentert av Petter Eia Haavi og Anton Vikingstad Pettersen!
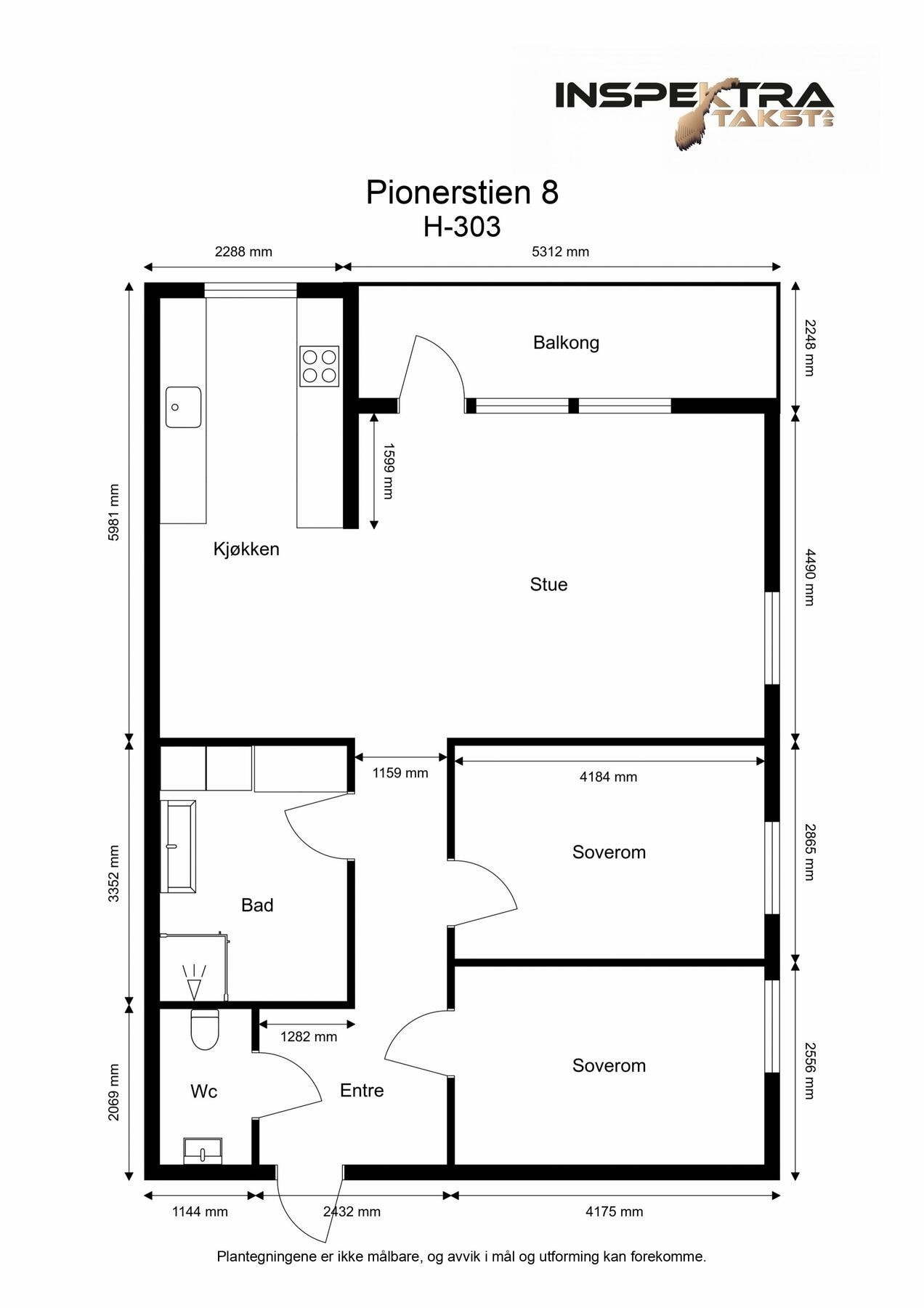
Her har du muligheten til å sikre deg en leilighet med god planløsning og spennende utviklingspotensial. Boligen består av romslig stue, separat kjøkken, to soverom, bad og eget toalettrom, en praktisk og funksjonell løsning som passer både for par, småbarnsfamilier og førstegangskjøpere.
Leiligheten er beliggende i et veletablert boligområde på Ellingsrud. Nærområdet byr på "alt" du trenger i en travel hverdag som dagligvarebutikk, god kollektiv tilknytning, enkel adkomst til større bilveier, skoler, barnehager og flotte turmuligheter i marka sommer som vinter. Her er det godt å bo, og lett og trives!
Kvaliteter:
- Romslig planløsning
- Stor balkong på 12 kvm
- Separat toalettrom
- Romslig bad
- To soverom
- Felles vaskeri
- Parkeringsplass i felles garasjerekke
Boligen har behov for oppgraderinger, noe som gir deg en spennende mulighet til å skape ditt eget drømmehjem.
Her har du muligheten til å sikre deg en leilighet med god planløsning og spennende utviklingspotensial. Boligen består av romslig stue, separat kjøkken, to soverom, bad og eget toalettrom, en praktisk og funksjonell løsning som passer både for par, småbarnsfamilier og førstegangskjøpere.
Leiligheten er beliggende i et veletablert boligområde på Ellingsrud. Nærområdet byr på "alt" du trenger i en travel hverdag som dagligvarebutikk, god kollektiv tilknytning, enkel adkomst til større bilveier, skoler, barnehager og flotte turmuligheter i marka sommer som vinter. Her er det godt å bo, og lett og trives!
Kvaliteter:
- Romslig planløsning
- Stor balkong på 12 kvm
- Separat toalettrom
- Romslig bad
- To soverom
- Felles vaskeri
- Parkeringsplass i felles garasjerekke
Boligen har behov for oppgraderinger, noe som gir deg en spennende mulighet til å skape ditt eget drømmehjem.
NB: Knappen for å vise hele beskrivelsen har kun en visuell effekt.
NB: Knappen for å vise hele beskrivelsen har kun en visuell effekt.
Salgsoppgaven beskriver vesentlig og lovpålagt informasjon om eiendommen
Se komplett salgsoppgaveNyttige lenker
Nærområdet
EIE eiendomsmegling Stovner
Annonseinformasjon
| FINN-kode | 453790754 |
|---|---|
| Sist endret | 17. mars 2026 13:59 |
| Referanse | 75260046 |
Annonsene kan være mangelfulle i forhold til lovpålagt opplysningsplikt. Før bindende avtale inngås oppfordres interessenter til å innhente komplett informasjon fra meglerforetaket, selger eller utleier.
























