Bildegalleri

Prestegårdsveien 11 presenteres av Proaktiv Eiendomsmegling v/ Ordin Fikstvedt.
Austrått
En flott selveier leilighet over to plan med garasje, stor balkong og attraktiv beliggenhet.
Prisantydning3 490 000 kr
Nøkkelinfo
- Boligtype
- Leilighet
- Eieform
- Eier (Selveier)
- Soverom
- 3
- Internt bruksareal
- 105 m² (BRA-i)
- Bruksareal
- 145 m²
- Eksternt bruksareal
- 40 m² (BRA-e)
- Balkong/Terrasse
- 51 m² (TBA)
- Etasje
- 2
- Byggeår
- 1952
- Energimerking
- E
- Rom
- 4
- Tomteareal
- 659 m² (eiet)
Fasiliteter
Balkong/Terrasse
Barnevennlig
Garasje/P-plass
Offentlig vann/kloakk
Rolig
Sentralt
Turterreng
Visning
torsdag, 12. mars
17:00 – 18:00
For at vår megler og selger skal kunne gi deg den beste oppfølgingen og kjøpsopplevelsen er det obligatorisk påmelding til alle våre visninger. Dersom ditt reserverte tidspunkt likevel ikke kan benyttes trenger vi beskjed så tidlig som mulig sånn at vi kan finne en alternativ løsning. Vi har alltid tid til deg. Visninger uten påmeldte deltagere avlyses.
VisningspåmeldingOm boligen
Velkommen til Prestegårdsveien 11 en flott selveierleilighet over to plan med garasje, stor balkong og attraktiv beliggenhet. Fra boligen er det kort avstand til Sandnes sentrum, hvor man finner et bredt utvalg av butikker, spisesteder, kulturtilbud, kollektivtransport og øvrige servicetjenester. Sentrum byr også på hyggelige gågater, kjøpesentre samt gode tog- og bussforbindelser til resten av regionen.
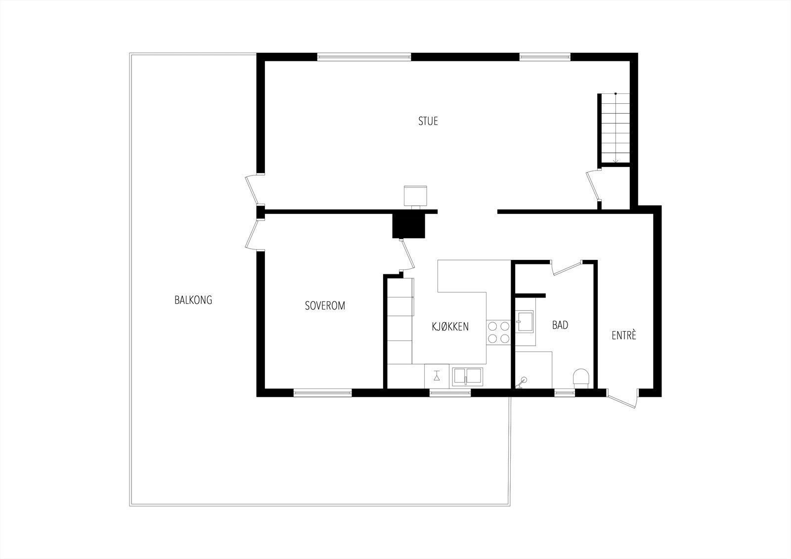
Leiligheten går over to plan og inneholder
Loft.: Trapperom, bad, rom, kott, bod/loftsrom*
2 etg.: Entré/gang, bad/vaskerom, kjøkken, stue, soverom
* Det er to soverom på loft, som ikke er godkjente for rom varig opphold
Velkommen til visning!
Leiligheten går over to plan og inneholder
Loft.: Trapperom, bad, rom, kott, bod/loftsrom*
2 etg.: Entré/gang, bad/vaskerom, kjøkken, stue, soverom
* Det er to soverom på loft, som ikke er godkjente for rom varig opphold
Velkommen til visning!
NB: Knappen for å vise hele beskrivelsen har kun en visuell effekt.
NB: Knappen for å vise hele beskrivelsen har kun en visuell effekt.
Salgsoppgaven beskriver vesentlig og lovpålagt informasjon om eiendommen
Se komplett salgsoppgaveNyttige lenker
Nærområdet
Proaktiv Eiendomsmegling Stavanger
Alltid tid til deg
Annonseinformasjon
| FINN-kode | 453780749 |
|---|---|
| Sist endret | 06. mars 2026 12:32 |
| Referanse | 1230260001 |
Annonsene kan være mangelfulle i forhold til lovpålagt opplysningsplikt. Før bindende avtale inngås oppfordres interessenter til å innhente komplett informasjon fra meglerforetaket, selger eller utleier.









































