Bildegalleri

Velkommen til Storhamargata 42, presentert av Nina Dæhli Harviken. Foto: Pil Branding (Kim Rognmo).
Hamar sentrum
Stor og innbydende 2-roms selveierleilighet i Teglgården. Innglasset balkong med mjøsutsikt. Heis. Nærhet til "alt"!
Prisantydning3 590 000 kr
Nøkkelinfo
- Boligtype
- Leilighet
- Eieform
- Eier (Selveier)
- Soverom
- 1
- Internt bruksareal
- 65 m² (BRA-i)
- Bruksareal
- 78 m²
- Eksternt bruksareal
- 6 m² (BRA-e)
- Innglasset balkong
- 7 m² (BRA-b)
- Etasje
- 3
- Byggeår
- 2015
- Energimerking
- B
- Tomteareal
- 3 931 m² (eiet)
Fasiliteter
Balkong/Terrasse
Kabel-TV
Heis
Offentlig vann/kloakk
Parkett
Strandlinje
Turterreng
Utsikt
Sentralt
Bredbåndstilknytning
Moderne
Balansert ventilasjon
Om boligen
EIE har gleden av å presentere en stor og innbydende 2-roms leilighet i Teglgården!
Leiligheten ligger i et ettertraktet område med gangavstand til sentrum, Mjøsa og populære Koigen.
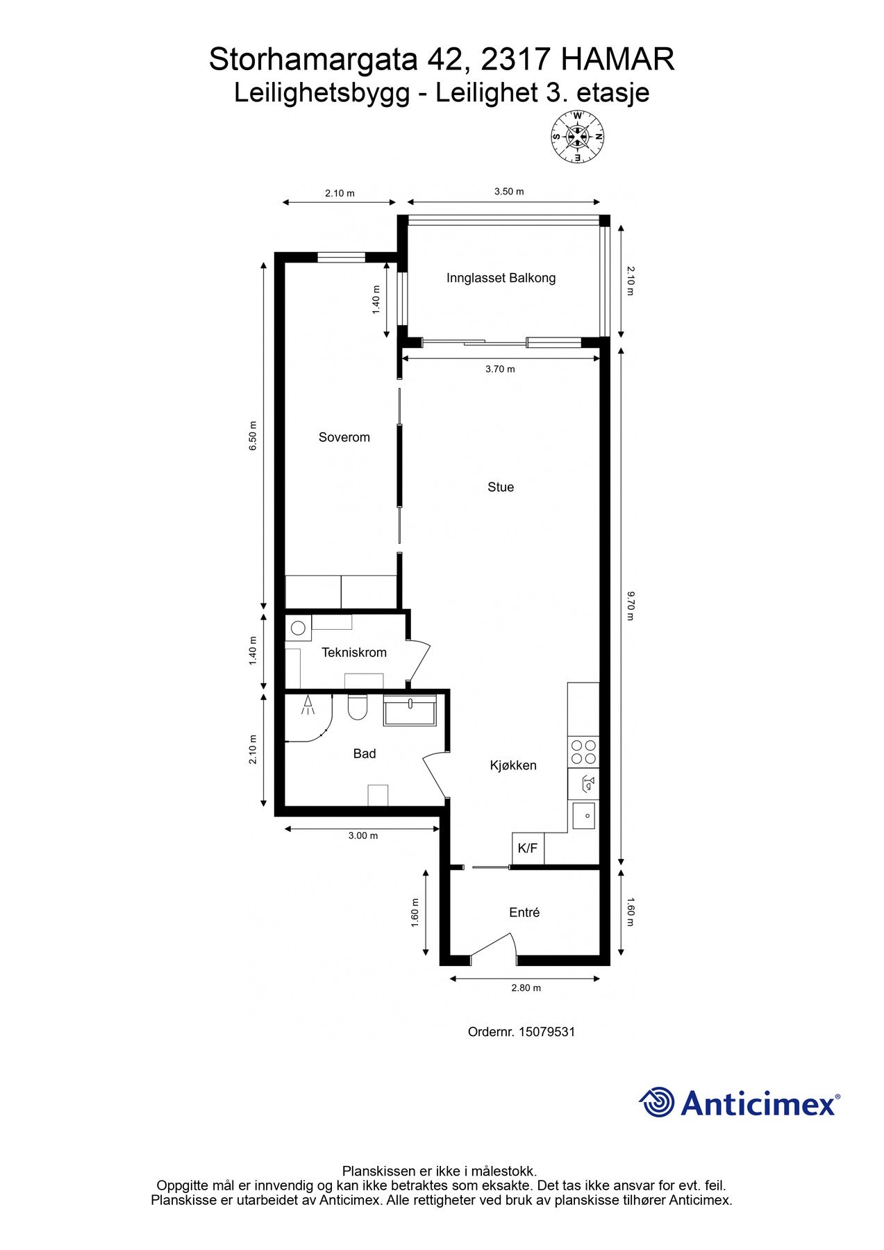
Leiligheten ligger i 3. etasje og inneholder en åpen stue- og kjøkkenløsning, soverom, teknisk rom og flislagt bad. Fra stuen er det utgang til innglasset balkong som blir en fin forlengelse av stuen. Fra balkongen er det fin utsikt over Mjøsa og mot Toten. Enkel adkomst til leiligheten via heis. Med leiligheten følger en bod i kjeller.
Leiligheten har en gjennomført og delikat fargepalett, kombinert med parkett som gir boligen et moderne og helhetlig uttrykk. Her er det bare å flytte rett inn!
Velkommen til en hyggelig visning!
Leiligheten ligger i et ettertraktet område med gangavstand til sentrum, Mjøsa og populære Koigen.
Leiligheten ligger i 3. etasje og inneholder en åpen stue- og kjøkkenløsning, soverom, teknisk rom og flislagt bad. Fra stuen er det utgang til innglasset balkong som blir en fin forlengelse av stuen. Fra balkongen er det fin utsikt over Mjøsa og mot Toten. Enkel adkomst til leiligheten via heis. Med leiligheten følger en bod i kjeller.
Leiligheten har en gjennomført og delikat fargepalett, kombinert med parkett som gir boligen et moderne og helhetlig uttrykk. Her er det bare å flytte rett inn!
Velkommen til en hyggelig visning!
NB: Knappen for å vise hele beskrivelsen har kun en visuell effekt.
NB: Knappen for å vise hele beskrivelsen har kun en visuell effekt.
Salgsoppgaven beskriver vesentlig og lovpålagt informasjon om eiendommen
Se komplett salgsoppgaveNyttige lenker
Nærområdet
EIE eiendomsmegling Innlandet
Annonseinformasjon
| FINN-kode | 453762086 |
|---|---|
| Sist endret | 06. mars 2026 11:58 |
| Referanse | 72260071 |
Annonsene kan være mangelfulle i forhold til lovpålagt opplysningsplikt. Før bindende avtale inngås oppfordres interessenter til å innhente komplett informasjon fra meglerforetaket, selger eller utleier.
































