Bildegalleri

Velkommen til Røysvegen 35! - Foto: Mari Staveland
Vormedal
Moksheimåsen - Fint beliggende enebolig med hybel - gode solforhold og fin utsikt til Karmsundet
Prisantydning3 290 000 kr
Nøkkelinfo
- Boligtype
- Enebolig
- Eieform
- Eier (Selveier)
- Soverom
- 5
- Internt bruksareal
- 152 m² (BRA-i)
- Bruksareal
- 174 m²
- Eksternt bruksareal
- 22 m² (BRA-e)
- Balkong/Terrasse
- 47 m² (TBA)
- Etasje
- 3
- Byggeår
- 1953
- Energimerking
- F
- Rom
- 7
- Tomteareal
- 718 m² (eiet)
Fasiliteter
Balkong/Terrasse
Garasje/P-plass
Hage
Peis/Ildsted
Rolig
Utsikt
Turterreng
Visning
onsdag, 11. mars
16:00 – 16:45
Ønsker du å delta på visningen ber vi deg melde deg på slik at vi vet at du kommer. Da kan vi bistå alle best mulig og gi deg tiden du trenger på visningen. Kontakt gjerne megler før visning hvis du har spørsmål. Visningen avholdes bare dersom det er påmeldte. Hvis det ikke er oppsatt visningstidspunkt eller tidspunkt ikke passer, kontakt megler.
VisningspåmeldingOm boligen
Velkommen til Røysvegen 35!
Beliggende i rolig og veletablert boligområde på Moksheim/Vormedal. Ligger med fin utsikt utover Karmsundet og omgivelsene rundt i tillegg til gode solforhold. Her har man gangavstand til de fleste fasilitetene man benytter seg av i hverdagen som nærbutikk, skole, idrettsanlegg og offentlig kommunikasjon. Populære turområder i Norheimskogen er like utenfor dørstokken.
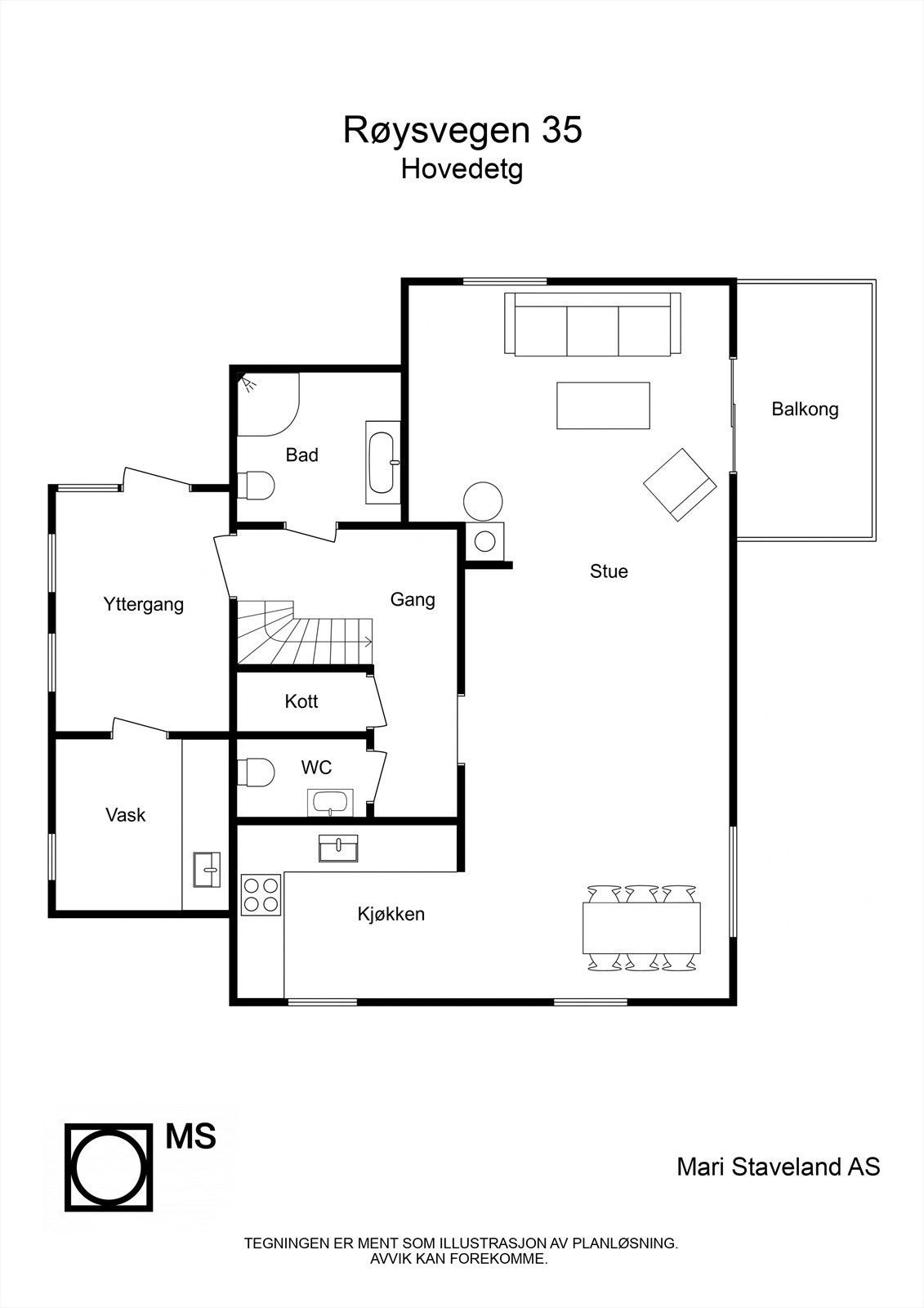
Boligen er innholdsrikt innredet over 3 plan og inneholder bla. på hovedplan lys stue med utgang vestvendt altan, delvis åpen kjøkkenløsning, tiltalende bad og entre. Loftsetasjen har 3 soverom og gang med kontorkrok. Underetasjen består av bla. koselig stue med delvis åpen kjøkkenløsning, bad og soverom.
Frittliggende garasje.
Solrik og usjenert terrasse med utsikt til Karmsundet.
Beliggende i rolig og veletablert boligområde på Moksheim/Vormedal. Ligger med fin utsikt utover Karmsundet og omgivelsene rundt i tillegg til gode solforhold. Her har man gangavstand til de fleste fasilitetene man benytter seg av i hverdagen som nærbutikk, skole, idrettsanlegg og offentlig kommunikasjon. Populære turområder i Norheimskogen er like utenfor dørstokken.
Boligen er innholdsrikt innredet over 3 plan og inneholder bla. på hovedplan lys stue med utgang vestvendt altan, delvis åpen kjøkkenløsning, tiltalende bad og entre. Loftsetasjen har 3 soverom og gang med kontorkrok. Underetasjen består av bla. koselig stue med delvis åpen kjøkkenløsning, bad og soverom.
Frittliggende garasje.
Solrik og usjenert terrasse med utsikt til Karmsundet.
NB: Knappen for å vise hele beskrivelsen har kun en visuell effekt.
NB: Knappen for å vise hele beskrivelsen har kun en visuell effekt.
Salgsoppgaven beskriver vesentlig og lovpålagt informasjon om eiendommen
Se komplett salgsoppgaveNyttige lenker
Nærområdet
EiendomsMegler 1 Haugesund
En del av Sparebank 1 Sør-Norge
Annonseinformasjon
| FINN-kode | 453736635 |
|---|---|
| Sist endret | 04. mars 2026 10:27 |
| Referanse | 2501260021 |
Annonsene kan være mangelfulle i forhold til lovpålagt opplysningsplikt. Før bindende avtale inngås oppfordres interessenter til å innhente komplett informasjon fra meglerforetaket, selger eller utleier.


















































