Bildegalleri

Eiendomsmegler Norge ved Kristoffer Lauvsland ønsker deg velkommen til Gamle Kuliaveg 84!
Solgt
Nodeland sentrum
Pen 3-roms leilighet i høy 1. etg | Heis | P-plass | IN-ordning | Møbler & hvitevarer medfølger | Ingen dok. avgift
Prisantydning975 000 kr
Nøkkelinfo
- Boligtype
- Leilighet
- Eieform
- Andel
- Soverom
- 2
- Internt bruksareal
- 74 m² (BRA-i)
- Bruksareal
- 79 m²
- Eksternt bruksareal
- 5 m² (BRA-e)
- Balkong/Terrasse
- 10 m² (TBA)
- Etasje
- 1
- Byggeår
- 2016
- Energimerking
- Rom
- 3
- Tomteareal
- 573 m² (eiet)
Om boligen
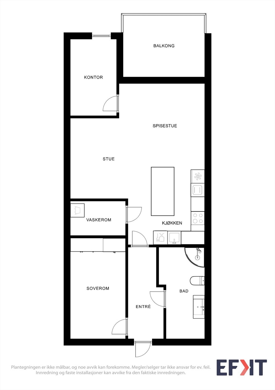
Velkommen til en pen 3-roms leilighet i Solsiden Bopark med sentral beliggenhet på Nodeland sentrum. Leiligheten har en gjennomgående praktisk planløsning og garasjeplass i kjeller.
Fra leiligheten har man kort vei til butikker, bank, bibliotek, barne- og ungdomsskole m.m. Ny togstasjon like ved leiligheten og tar deg til Kristiansand sentrum på ca. 9 minutter. Det er også gode bussforbindelser i området. Ca. 15 minutters kjøretur med bil til Kristiansand sentrum.
Leiligheten inneholder stue, pent kjøkken med stor kjøkkenøy, romslig bad, praktisk bod/vaskerom samt 2 soverom. Fra stuen er det direkte adkomst til hyggelig balkong. Medfølger egen p-plass i parkeringskjeller med tilhørende sportsbod.
Selges møblert m/hvitevarer.
Borettslaget har IN-ordning på fellesgjeld.
Velkommen!
Fra leiligheten har man kort vei til butikker, bank, bibliotek, barne- og ungdomsskole m.m. Ny togstasjon like ved leiligheten og tar deg til Kristiansand sentrum på ca. 9 minutter. Det er også gode bussforbindelser i området. Ca. 15 minutters kjøretur med bil til Kristiansand sentrum.
Leiligheten inneholder stue, pent kjøkken med stor kjøkkenøy, romslig bad, praktisk bod/vaskerom samt 2 soverom. Fra stuen er det direkte adkomst til hyggelig balkong. Medfølger egen p-plass i parkeringskjeller med tilhørende sportsbod.
Selges møblert m/hvitevarer.
Borettslaget har IN-ordning på fellesgjeld.
Velkommen!
NB: Knappen for å vise hele beskrivelsen har kun en visuell effekt.
NB: Knappen for å vise hele beskrivelsen har kun en visuell effekt.
Salgsoppgaven beskriver vesentlig og lovpålagt informasjon om eiendommen
Se komplett salgsoppgaveNyttige lenker
Nærområdet
Eiendomsmegler Norge Kristiansand
Best der du bor
Annonseinformasjon
| FINN-kode | 453734297 |
|---|---|
| Sist endret | 12. mars 2026 11:00 |
| Referanse | 52260025 |
Annonsene kan være mangelfulle i forhold til lovpålagt opplysningsplikt. Før bindende avtale inngås oppfordres interessenter til å innhente komplett informasjon fra meglerforetaket, selger eller utleier.



















