Bildegalleri

EiendomsMegler1 ved Markus Tangvik har gleden av å presentere en stilsikker 3-roms leilighet i Klostergataa 37 A.
Øya
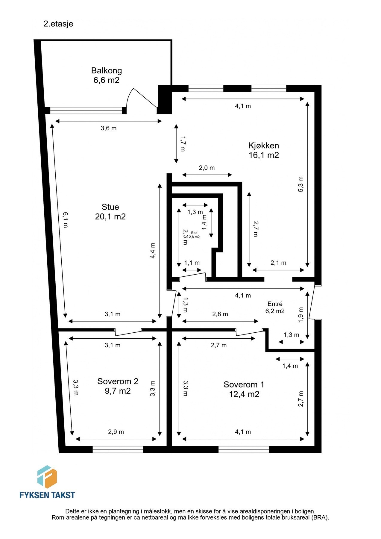
STILSIKKER 3-ROMS LEILIGHET I 2.ETG MED BALKONG. Betydelig oppgradert i 2022. Vedfyring. Ingen dok.avgift. Nært NTNU.
Prisantydning4 450 000 kr
Nøkkelinfo
- Boligtype
- Leilighet
- Eieform
- Andel
- Soverom
- 2
- Internt bruksareal
- 72 m² (BRA-i)
- Bruksareal
- 78 m²
- Eksternt bruksareal
- 6 m² (BRA-e)
- Balkong/Terrasse
- 7 m² (TBA)
- Etasje
- 2
- Byggeår
- 1962
- Energimerking
- D - Gul
- Rom
- 3
- Tomt
- Eiet
Fasiliteter
Barnevennlig
Balkong/Terrasse
Kabel-TV
Offentlig vann/kloakk
Peis/Ildsted
Turterreng
Utsikt
Sentralt
Bredbåndstilknytning
Moderne
Rolig
Visning
onsdag, 11. mars
15:00 – 15:45
Våre visninger har påmelding. Dette gjør vi for å kunne yte bedre service for våre kunder. Verdifullt for boligkjøper og for oss. Vi anbefaler at salgsoppgaven lastes ned digitalt før visning, og ring oss gjerne på forhånd for spørsmål om boligen. Passer ikke angitt tidspunkt, ta kontakt så finner vi en løsning. Skulle det mot formodning ikke være påmeldte til angitt visningstidspunkt vil ikke visning bli gjennomført.
Om boligen
EiendomsMegler 1 ved Markus Tangvik har gleden av å presentere en særdeles flott 3-roms leilighet i Klostergata 37 A på Øya. Her får du en moderne og lekker leilighet som ble betydelig oppgradert i perioden 2022. Her får du både sentral beliggenhet, moderne standard og flott balkong.
Kvaliteter:
- Lekker 3-roms leilighet i 2.etg med tidsriktige og fine materialvalg.
- Betydelig oppgradert i 2022
- Nydelig kjøkken fra 2022 med integrerte hvitevarer.
- Stilrent baderom som ble oppgradert i 2022.
- Disponerer 3 stk. boder.
- Vedfyring.
- Gåavstand til NTNU og St.Olavs.
Velkommen på visning!
Kvaliteter:
- Lekker 3-roms leilighet i 2.etg med tidsriktige og fine materialvalg.
- Betydelig oppgradert i 2022
- Nydelig kjøkken fra 2022 med integrerte hvitevarer.
- Stilrent baderom som ble oppgradert i 2022.
- Disponerer 3 stk. boder.
- Vedfyring.
- Gåavstand til NTNU og St.Olavs.
Velkommen på visning!
NB: Knappen for å vise hele beskrivelsen har kun en visuell effekt.
NB: Knappen for å vise hele beskrivelsen har kun en visuell effekt.
Salgsoppgaven beskriver vesentlig og lovpålagt informasjon om eiendommen
Se komplett salgsoppgaveNærområdet
EiendomsMegler 1 Trondheim sentrum, Kongens gate
Vi loser deg trygt gjennom hele boligsalget
Annonseinformasjon
| FINN-kode | 453727730 |
|---|---|
| Sist endret | 04. mars 2026 19:23 |
| Referanse | 32260049 |
Annonsene kan være mangelfulle i forhold til lovpålagt opplysningsplikt. Før bindende avtale inngås oppfordres interessenter til å innhente komplett informasjon fra meglerforetaket, selger eller utleier.































