Bildegalleri

EiendomsMegler1 v/ Morten Høvik har gleden av å presentere Kaptein Bødtkers gate 34 B!

Sentrumsnær 4-roms selveierleilighet - Fasade oppgradert - Nytt tak 2025 og Ny bordkledning 2026

Prisantydning1 650 000 kr
Totalpris
1 692 340 kr
Omkostninger
42 340 kr
Felleskost/mnd.
500 kr
Kommunale avg.
25 086 kr per år
Formuesverdi
439 980 kr

Nøkkelinfo

Boligtype
Leilighet
Eieform
Eier (Selveier)
Soverom
3
Internt bruksareal
97 m² (BRA-i)
Bruksareal
97 m²
Byggeår
1944
Energimerking
G - Oransje
Rom
5
Tomteareal
381 m² (eiet)

Les mer om bruksareal her

Fasiliteter

Balkong/Terrasse
Offentlig vann/kloakk
Turterreng
Sentralt
Bredbåndstilknytning

Visning

tirsdag, 10. mars
17:30 – 18:15
Våre visninger har påmelding. Dette gjør vi for å kunne yte bedre service for våre kunder. Verdifullt for boligkjøper og for oss. Vi anbefaler at salgsoppgaven lastes ned digitalt før visning, og ring oss gjerne på forhånd for spørsmål om boligen. Passer ikke angitt tidspunkt, ta kontakt så finner vi en løsning. Skulle det mot formodning ikke være påmeldte til angitt visningstidspunkt vil ikke visning bli gjennomført.
Visningspåmelding

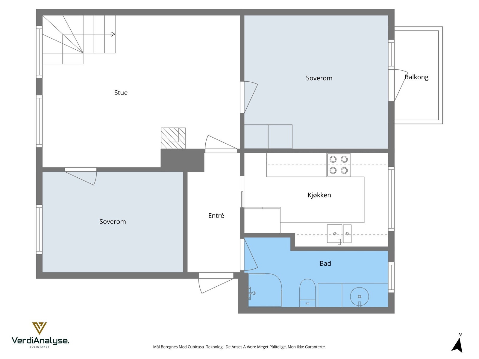
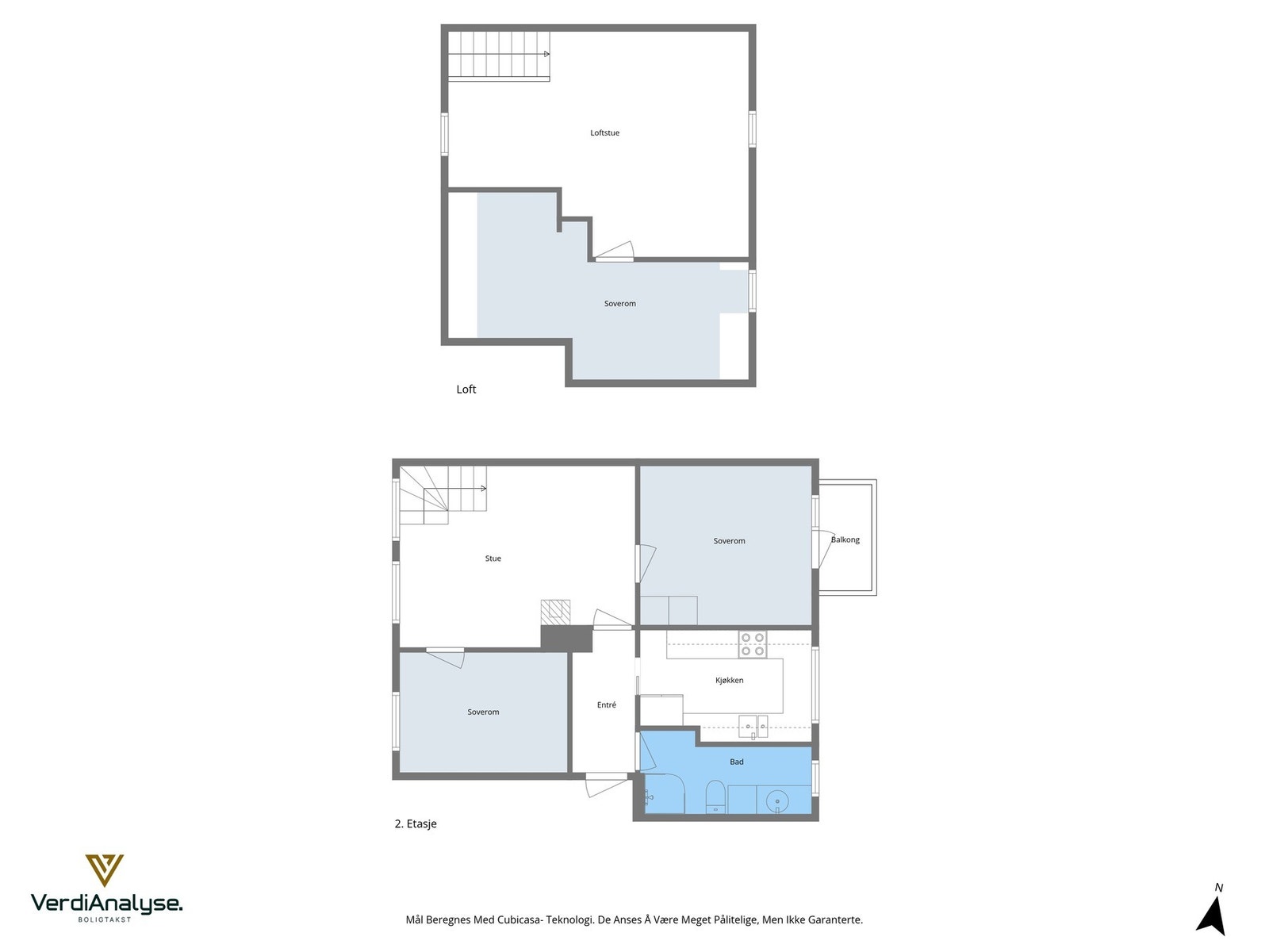
Om boligen

EiendomsMegler 1 har gleden av å presentere Kaptein Bødtkers gate 34 B!

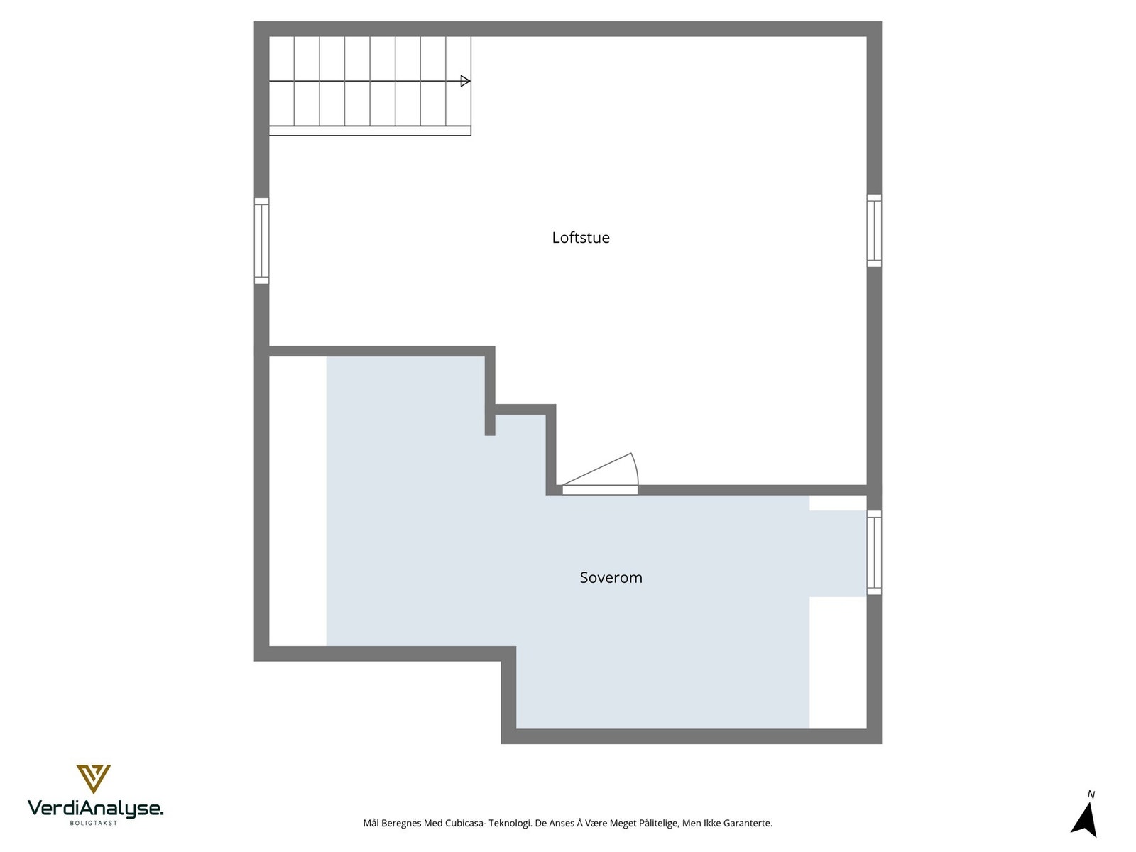
Sentrumsnær 4-roms selveierleilighet over 2 plan. Leiligheten går over 2. etasje og loftsetasje. Her har man stue på 18 kvm i 2. etasje og koselig loftstue med tilsvarende størrelse. 2 soverom i 2. etasje og 1 soverom i loftsetasje. Samtlige soverom holder god størrelse. Pent bad med flis på gulv, varmekabler, Innredning m/heldekkende servant og underskap, overskap, høyskap, dusjkabinett, toalett og opplegg for vaskemaskin. Kjøkken med spiseplass/barløsning, god plass i innredning, integrert oppvaskmaskin og ellers frittstående hvitevarer.

Fasaden for bygget er oppgradert. Det er skiftet og ordnet med nytt tak 2025. Ny bordkledning skiftes nå og forventes ferdigstilt ila Mars-måned.

Meget sentral og sentrumsnær beliggenhet, med det meste man har behov for innen gangavstand, både skole, dagligvare, kjøpesenter og offentlige tjenester og transport.

Velkommen til visning!

Salgsoppgaven beskriver vesentlig og lovpålagt informasjon om eiendommen

Se komplett salgsoppgave

Nærområdet

Annonseinformasjon

FINN-kode453722192
Sist endret04. mars 2026 12:06
Referanse17260041

Rapporter annonse

Annonsene kan være mangelfulle i forhold til lovpålagt opplysningsplikt. Før bindende avtale inngås oppfordres interessenter til å innhente komplett informasjon fra meglerforetaket, selger eller utleier.