Bildegalleri

Velkommen til Stall Falnes (Austre Karmøyveg 861 og 863) - presentert av Olav Lauvås i Meglerhuset Rele

Skudeneshavn

Stall Falnes - Småbruk med 314 kvm enebolig, stall og stor traktorgarasje - Gode hestefasiliteter - Landlig og sentralt

Prisantydning7 590 000 kr
Totalpris
7 795 240 kr
Omkostninger
205 240 kr
Kommunale avg.
27 528 kr per år
Formuesverdi
715 067 kr

Nøkkelinfo

Boligtype
Gårdsbruk/Småbruk
Eieform
Eier (Selveier)
Soverom
4
Internt bruksareal
314 m² (BRA-i)
Bruksareal
1 145 m²
Eksternt bruksareal
831 m² (BRA-e)
Balkong/Terrasse
24 m² (TBA)
Byggeår
1980
Energimerking
E
Rom
7
Tomteareal
208 341 m² (eiet)

Les mer om bruksareal her

Fasiliteter

Aircondition
Balkong/Terrasse
Barnevennlig
Bredbåndstilknytning
Garasje/P-plass
Golfbane
Hage
Peis/Ildsted
Rolig
Sentralt
Utsikt
Bademulighet
Fiskemulighet
Turterreng
Lademulighet

Visning

torsdag, 12. mars
16:00 – 17:00
Trykk på "Visningspåmelding"-knappen for enkelt å melde deg på. Vi gjør oppmerksom på at visning ikke blir avholdt, dersom det ikke er påmeldte. En må melde seg på senest innen kl 18.00 dagen før visning for å være garantert visning på oppsatt tidspunkt. Velkommen til visning!
Visningspåmelding

Om boligen

Innholdsrikt småbruk med romslig enebolig på 314 kvm, solide driftsbygninger og gode fasiliteter for hestehold. Eiendommen ligger landlig og fritt til på Sør-Karmøy m/kort vei til Skudeneshavn sentrum.

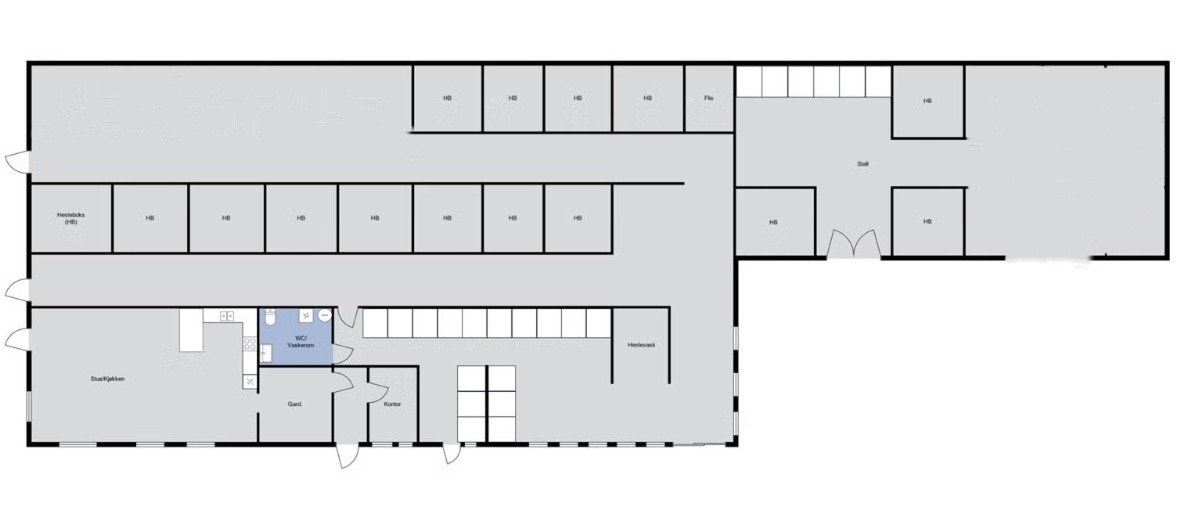
Stallbygget er på 613 kvm og er tilrettelagt for hestehold m/14 boksplasser + løsdrift. Deler av arealet benyttes i dag til lager- og utstyrsrom. Fleksible muligheter for privat hestehold, hobbybruk eller mindre næringsrettet aktivitet innenfor landbruksformål.

Garasje/verkstedbygg på ca. 218 kvm over to plan m/gode lagrings- og bruksområder.

Tinglyste leieavtaler (40 og 30 år fra ferdigstillelse) m/Skudenes Rytterklubb for ridehall, parkering og uteridebane. Klubben har ansvar for drift og vedlikehold av arealene i leieperioden. Grunneier har adgang til arealene i hht. tinglyst avtaler.

Salgsoppgaven beskriver vesentlig og lovpålagt informasjon om eiendommen

Se komplett salgsoppgave

Nærområdet

Annonseinformasjon

FINN-kode453721952
Sist endret04. mars 2026 19:46
Referanse2-0190/24

Rapporter annonse

Annonsene kan være mangelfulle i forhold til lovpålagt opplysningsplikt. Før bindende avtale inngås oppfordres interessenter til å innhente komplett informasjon fra meglerforetaket, selger eller utleier.