Bildegalleri

Meglerhuset Telemark v/ Thomas Valderhaug har gleden av å vise frem Flåttenlia 7B, en attraktiv og velholdt halvpart av tomannsbolig beliggende i et rolig og familievennlig område
Innbydende og innholdsrik halvpart tomannsbolig - Barnevennlig og populær beliggenhet - Ingen faste felleskostnader
Nøkkelinfo
- Boligtype
- Tomannsbolig
- Eieform
- Eier (Selveier)
- Soverom
- 3
- Internt bruksareal
- 107 m² (BRA-i)
- Bruksareal
- 132 m²
- Eksternt bruksareal
- 25 m² (BRA-e)
- Balkong/Terrasse
- 12 m² (TBA)
- Byggeår
- 2010
- Energimerking
- C - Lysegrønn
- Tomt
- Eiet
Fasiliteter
Visning
Om boligen
Meglerhuset Telemark v/ Thomas Valderhaug har gleden av å vise frem Flåttenlia 7B, en attraktiv og velholdt halvpart av tomannsbolig beliggende i et rolig og familievennlig område. Parkering i felles dobbelgarasje
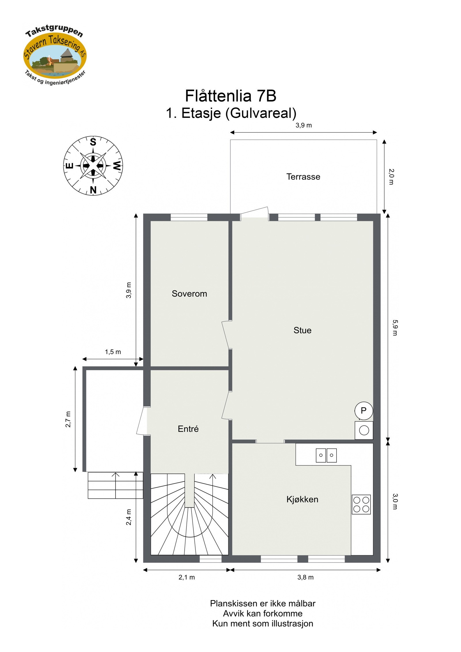
Boligen holder en bra og velholdt standard, med en praktisk planløsning over 2 plan som inneholder:
- Stue, kjøkken, 3 soverom, bad, gang & innvendig bod/ teknisk rom.
Eiendommen har kort gangavstand til både barnehage og skole, samt nærhet til dagligvarebutikk, svømmehall, idrettsanlegg og øvrige servicetilbud. Samtidig er området omgitt av flotte turområder og grønne friområder. Kort vei til Porsgrunn sentrum, som byr på et bredt utvalg av butikker, kulturtilbud, spisesteder og kollektivforbindelser.
Salgsoppgaven beskriver vesentlig og lovpålagt informasjon om eiendommen
Se komplett salgsoppgaveNyttige lenker
Nærområdet
Meglerhuset Telemark As
Annonseinformasjon
| FINN-kode | 453616015 |
|---|---|
| Sist endret | 04. mars 2026 03:18 |
| Referanse | 90260011 |
Annonsene kan være mangelfulle i forhold til lovpålagt opplysningsplikt. Før bindende avtale inngås oppfordres interessenter til å innhente komplett informasjon fra meglerforetaket, selger eller utleier.





































