Bildegalleri

Velkommen til Blystadringen 12A- En oppgradert og romslig 2-roms andelsleilighet med en attraktiv beliggenhet i Blystadlia.
Blystadlia
Romslig og påkostet 2-roms andelsleilighet med flotte detaljer | Solrik balkong | Sentral beliggenhet | P-plass m/ lader
Prisantydning3 250 000 kr
Nøkkelinfo
- Boligtype
- Leilighet
- Eieform
- Andel
- Soverom
- 1
- Internt bruksareal
- 59 m² (BRA-i)
- Bruksareal
- 63 m²
- Eksternt bruksareal
- 4 m² (BRA-e)
- Balkong/Terrasse
- 12 m² (TBA)
- Etasje
- -1
- Byggeår
- 1978
- Energimerking
- Rom
- 2
- Tomteareal
- 48 841 m² (eiet)
Fasiliteter
Balkong/Terrasse
Barnevennlig
Garasje/P-plass
Offentlig vann/kloakk
Sentralt
Turterreng
Lademulighet
Visning
onsdag, 25. mars
17:00 – 18:00
Velkommen til visning! Meld deg på ved å trykke "visningspåmelding" i våre boligannonser. Visning med megler til stede vil ikke bli avholdt uten påmeldinger. Ta gjerne kontakt med megler i forkant av visningen om du har spørsmål.
VisningspåmeldingOm boligen
Velkommen til Blystadringen 12A! Leiligheten ligger i et sentralt og attraktivt boligområde på Blystadlia i Rælingen kommune. Området er rolig, veletablert og meget barnevennlig. Blystadlia ligger i umiddelbar nærhet til Østmarka med flotte turmuligheter sommer som vinter. Det er gode kollektivmuligheter i området.
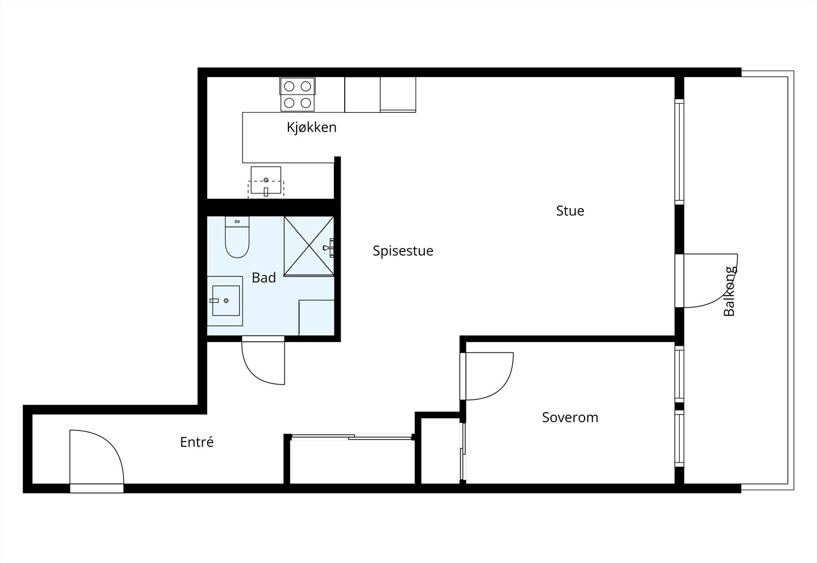
Leiligheten ligger i byggets underetasje og byr på en praktisk planløsning som er godt utnyttet. Leiligheten fremstår moderne med luftige oppholdsrom. Leiligheten inneholder bl.a. entré med skyvedørsgarderobe, et moderne bad fra 2019, ett soverom og stue i åpen løsning mot kjøkkenet med stilfulle detaljer fra 2019. Fra stuen er det utgang til solrik balkong med utsikt utover fellesområdet. Det er fast parkeringsplass med elbillader og en bod for lagring.
Velkommen på visning!
Leiligheten ligger i byggets underetasje og byr på en praktisk planløsning som er godt utnyttet. Leiligheten fremstår moderne med luftige oppholdsrom. Leiligheten inneholder bl.a. entré med skyvedørsgarderobe, et moderne bad fra 2019, ett soverom og stue i åpen løsning mot kjøkkenet med stilfulle detaljer fra 2019. Fra stuen er det utgang til solrik balkong med utsikt utover fellesområdet. Det er fast parkeringsplass med elbillader og en bod for lagring.
Velkommen på visning!
NB: Knappen for å vise hele beskrivelsen har kun en visuell effekt.
NB: Knappen for å vise hele beskrivelsen har kun en visuell effekt.
Salgsoppgaven beskriver vesentlig og lovpålagt informasjon om eiendommen
Se komplett salgsoppgaveNyttige lenker
Nærområdet
DNB Eiendom AS
Verdifulle salg
Annonseinformasjon
| FINN-kode | 453568861 |
|---|---|
| Sist endret | 17. mars 2026 09:03 |
| Referanse | 303260140 |
Annonsene kan være mangelfulle i forhold til lovpålagt opplysningsplikt. Før bindende avtale inngås oppfordres interessenter til å innhente komplett informasjon fra meglerforetaket, selger eller utleier.






























