Bildegalleri

Velkommen til Dyre halses gate 15!
SOLSIDEN - NEDRE ELVEHAVN
Lys og innbydende 2-roms leilighet i 7.etg. beliggende i sentrum! | Balkong med flott sjøutsikt | Heis i bygget
Prisantydning3 150 000 kr
Nøkkelinfo
- Boligtype
- Leilighet
- Eieform
- Andel
- Soverom
- 1
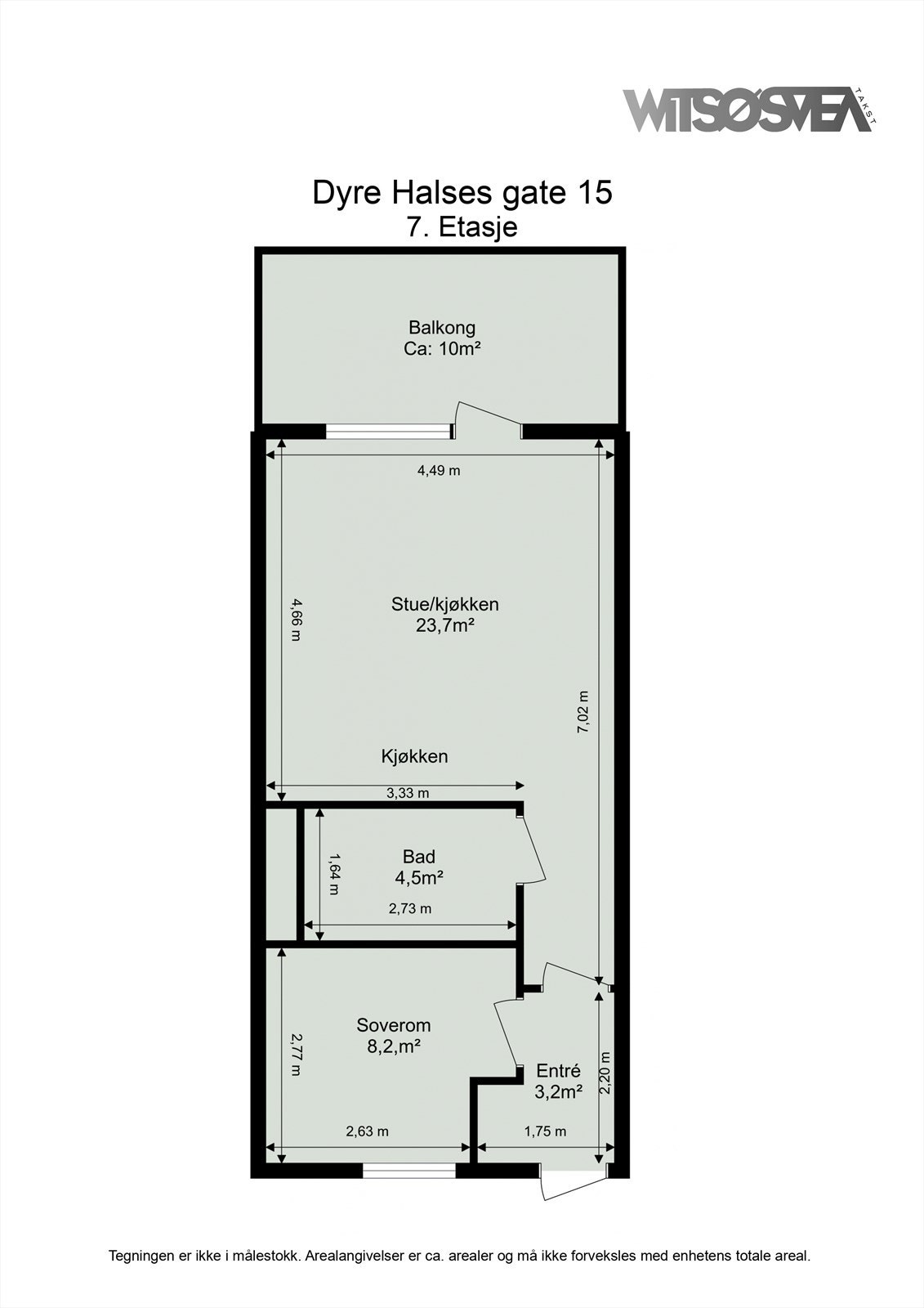
- Internt bruksareal
- 42 m² (BRA-i)
- Bruksareal
- 45 m²
- Eksternt bruksareal
- 3 m² (BRA-e)
- Balkong/Terrasse
- 10 m² (TBA)
- Etasje
- 7
- Byggeår
- 2005
- Energimerking
- C
- Rom
- 2
- Tomteareal
- 1 227 m² (eiet)
Fasiliteter
Balkong/Terrasse
Bredbåndstilknytning
Heis
Kjæledyr tillatt
Kabel-TV
Offentlig vann/kloakk
Rolig
Sentralt
Utsikt
Vaktmester-/vektertjeneste
Lademulighet
Balansert ventilasjon
Visning
tirsdag, 17. mars
16:15 – 17:00
Ta kontakt med megler direkte eller trykk på "visningspåmelding" i boligannonsen for å melde deg på visningen. Vi anbefaler at salgsoppgaven blir lest igjennom før visning. Skulle det mot formodning ikke være påmeldte til angitt visningstidspunkt vil ikke visning bli gjennomført.
VisningspåmeldingOm boligen
Velkommen til Dyre Halses gate 15!Her får du en meget lys og innbydende 2-roms leilighet beliggende i sentrum. Her har du tilgang til "alt" i umiddelbar nærhet. Leilighet som passer perfekt for studenter og førstegangskjøpere!
Verdt å nevne:
- Åpen og funksjonell planløsning mellom stue og kjøkken
- Lyst og innbydende soverom
- Fjernvarme og varmtvann inkl. i felleskostnadene
- Praktisk bod i kjeller med god lagringsplass
- Mulighet for å leie privat parkeringsplass
- Like ved Solsiden kjøpesenter med et bredt servicetilbud
- Attraktiv beliggenhet med kun 2 minutters gange til buss, dagligvare, treningssenter og togstasjon
- Romslig, delvis overbygd og solrik balkong med flott utsikt over Trondheim by og Nidelven som renner ut i fjorden
Velkommen til visning!
Verdt å nevne:
- Åpen og funksjonell planløsning mellom stue og kjøkken
- Lyst og innbydende soverom
- Fjernvarme og varmtvann inkl. i felleskostnadene
- Praktisk bod i kjeller med god lagringsplass
- Mulighet for å leie privat parkeringsplass
- Like ved Solsiden kjøpesenter med et bredt servicetilbud
- Attraktiv beliggenhet med kun 2 minutters gange til buss, dagligvare, treningssenter og togstasjon
- Romslig, delvis overbygd og solrik balkong med flott utsikt over Trondheim by og Nidelven som renner ut i fjorden
Velkommen til visning!
NB: Knappen for å vise hele beskrivelsen har kun en visuell effekt.
NB: Knappen for å vise hele beskrivelsen har kun en visuell effekt.
Salgsoppgaven beskriver vesentlig og lovpålagt informasjon om eiendommen
Se komplett salgsoppgaveNyttige lenker
Nærområdet
DNB Eiendom AS
Verdifulle salg
Annonseinformasjon
| FINN-kode | 453562954 |
|---|---|
| Sist endret | 06. mars 2026 09:02 |
| Referanse | 808260028 |
Annonsene kan være mangelfulle i forhold til lovpålagt opplysningsplikt. Før bindende avtale inngås oppfordres interessenter til å innhente komplett informasjon fra meglerforetaket, selger eller utleier.



























