Bildegalleri

Eiendomsmegler Norge ved Kristian Lossius har gleden av å ønske deg velkommen til Jernveien 18!
Tinnheia
En romslig 4-roms selveierleilighet med 3 soverom, stor, lys stue og utgang til stor solrik terrasse. Oppgraderingsbehov
Prisantydning2 290 000 kr
Nøkkelinfo
- Boligtype
- Leilighet
- Eieform
- Eier (Selveier)
- Soverom
- 3
- Internt bruksareal
- 115 m² (BRA-i)
- Bruksareal
- 115 m²
- Balkong/Terrasse
- 24 m² (TBA)
- Etasje
- 1
- Byggeår
- 1971
- Rom
- 4
- Tomteareal
- 2 124 m² (eiet)
Fasiliteter
Balkong/Terrasse
Rolig
Utsikt
Om boligen
Eiendomsmegler Norge ved Kristian Lossius har gleden av å ønske deg velkommen til Jernveien 18!
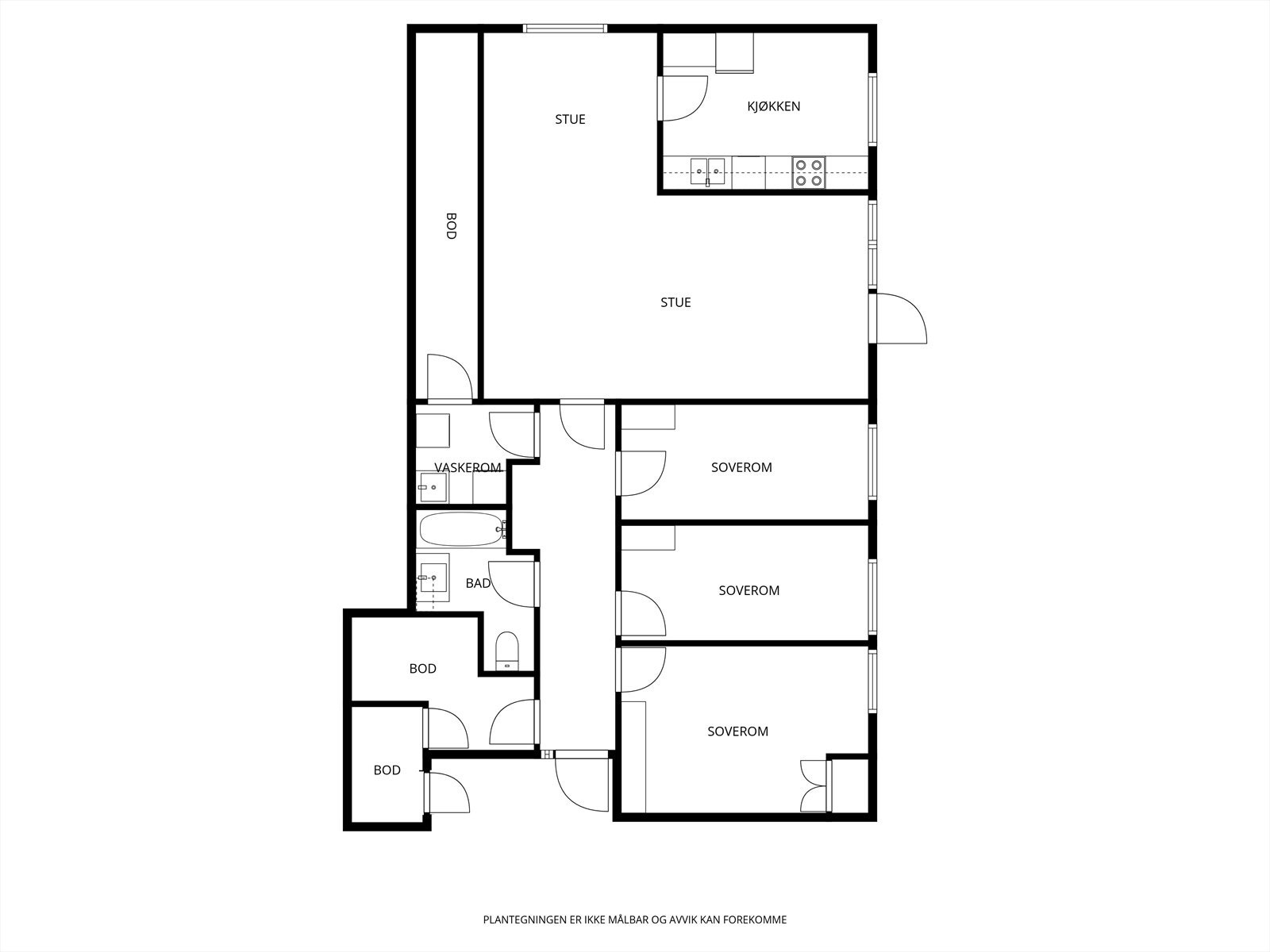
En romslig 4-roms selveierleilighet med 3 soverom, stor lys stue og utgang til stor solrik terrasse.
Leiligheten ligger i 1. etg. og har trappegang enten fra bunnen eller fra toppen.
Planløsning: Gang/entrè med plass til å henge av seg ytterklær. 3 romslige soverom med plass til seng og klesskap. Fra gang er det inngang også til 2 romslige boder.(Også inngang fra ytterside). Flislagt bad. Badekar med dusj, servant og toalett. Vaskerom med inngang til stor bod. Videre har leiligheten en meget romslig stue med utgang til en stor solrik terrasse. Kjøkken med god plass til spisebord. Oppgraderingsbehov.
Det har vært lekkasje fra taket i spisestuen. Det er under utbedring nå og dekkes av forsikring
En romslig 4-roms selveierleilighet med 3 soverom, stor lys stue og utgang til stor solrik terrasse.
Leiligheten ligger i 1. etg. og har trappegang enten fra bunnen eller fra toppen.
Planløsning: Gang/entrè med plass til å henge av seg ytterklær. 3 romslige soverom med plass til seng og klesskap. Fra gang er det inngang også til 2 romslige boder.(Også inngang fra ytterside). Flislagt bad. Badekar med dusj, servant og toalett. Vaskerom med inngang til stor bod. Videre har leiligheten en meget romslig stue med utgang til en stor solrik terrasse. Kjøkken med god plass til spisebord. Oppgraderingsbehov.
Det har vært lekkasje fra taket i spisestuen. Det er under utbedring nå og dekkes av forsikring
NB: Knappen for å vise hele beskrivelsen har kun en visuell effekt.
NB: Knappen for å vise hele beskrivelsen har kun en visuell effekt.
Salgsoppgaven beskriver vesentlig og lovpålagt informasjon om eiendommen
Se komplett salgsoppgaveNyttige lenker
Nærområdet
Eiendomsmegler Norge Kristiansand
Best der du bor
Annonseinformasjon
| FINN-kode | 453562727 |
|---|---|
| Sist endret | 03. mars 2026 15:58 |
| Referanse | 50260064 |
Annonsene kan være mangelfulle i forhold til lovpålagt opplysningsplikt. Før bindende avtale inngås oppfordres interessenter til å innhente komplett informasjon fra meglerforetaket, selger eller utleier.



























