Bildegalleri

EiendomsMegler 1 v/ Mads Larsen har gleden av å ønske velkommen til Dakota 2 B - En innbydende, moderne og meget romslig 2-roms selveierleilighet fra 2019 med egen terrasse og en god hjørnebeliggenhet. (Foto: Nonstad foto).
Lilleby
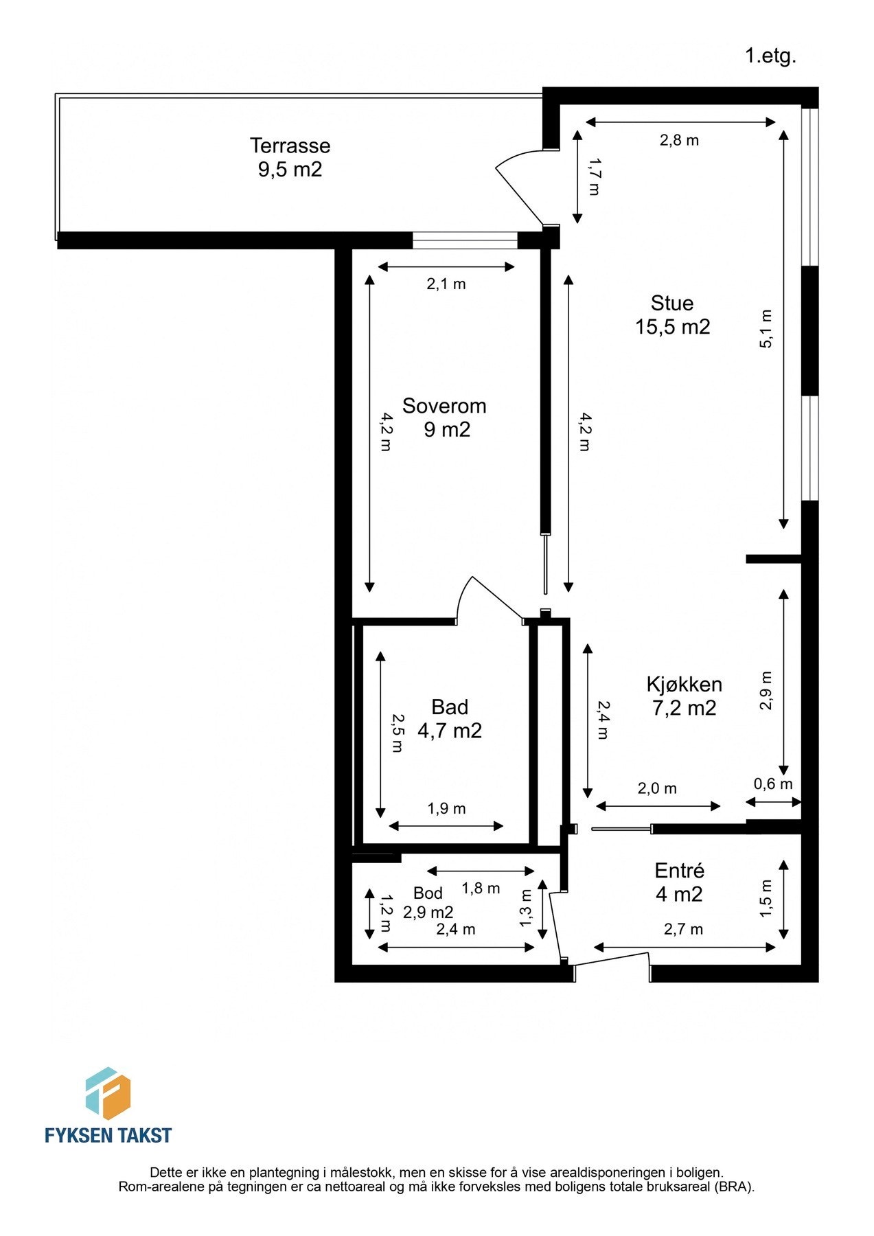
INNBYDENDE OG ROMSLIG 2-ROMS HJØRNELEIL FRA ´19 - TG 0/1 PÅ ALT - TERRASSE - INTERN & EKSTERN BOD - NÆRHET TIL "ALT"!
Prisantydning3 290 000 kr
Nøkkelinfo
- Boligtype
- Leilighet
- Eieform
- Eier (Selveier)
- Soverom
- 1
- Internt bruksareal
- 46 m² (BRA-i)
- Bruksareal
- 51 m²
- Eksternt bruksareal
- 5 m² (BRA-e)
- Balkong/Terrasse
- 10 m² (TBA)
- Etasje
- 1
- Byggeår
- 2019
- Energimerking
- B - Mørkegrønn
- Rom
- 2
- Tomteareal
- 2 522 m² (eiet)
Fasiliteter
Barnevennlig
Balkong/Terrasse
Kabel-TV
Heis
Offentlig vann/kloakk
Parkett
Turterreng
Sentralt
Bredbåndstilknytning
Moderne
Rolig
Balansert ventilasjon
Visning
onsdag, 11. mars
16:30 – 17:30
Våre visninger har påmelding. Dette gjør vi for å kunne yte bedre service for våre kunder. Verdifullt for boligkjøper og for oss. Vi anbefaler at salgsoppgaven lastes ned digitalt før visning, og ring oss gjerne på forhånd for spørsmål om boligen. Passer ikke angitt tidspunkt, ta kontakt så finner vi en løsning. Skulle det mot formodning ikke være påmeldte til angitt visningstidspunkt vil ikke visning bli gjennomført.
Om boligen
EiendomsMegler 1 v/ Mads Larsen har gleden av å ønske velkommen til Dakota 2 B! En innbydende, moderne og meget romslig 2-roms selveierleilighet fra 2019 med egen terrasse, hjørnebeliggenhet, intern og ekstern bod.
Leiligheten nyter godt av moderne fasiliteter som fjernvarme og balansert ventilasjon. Kostnader tilknyttet fjernvarmen er inkludert (stipulert forbruk) i de lave månedlige felleskostnadene. Boligen ligger sentralt til på attraktive Lilleby med nærhet til "alt" man trenger. Blant annet dagligvarebutikker, apotek, togstasjon, bussholdeplass, studiesteder, treningssentre, shoppingsentre og Ladestien med populære badeplasser som Ringvebukta og Korsvika.
Verdt å merke seg:
Leiligheten nyter godt av moderne fasiliteter som fjernvarme og balansert ventilasjon. Kostnader tilknyttet fjernvarmen er inkludert (stipulert forbruk) i de lave månedlige felleskostnadene. Boligen ligger sentralt til på attraktive Lilleby med nærhet til "alt" man trenger. Blant annet dagligvarebutikker, apotek, togstasjon, bussholdeplass, studiesteder, treningssentre, shoppingsentre og Ladestien med populære badeplasser som Ringvebukta og Korsvika.
Verdt å merke seg:
- Terrasse på gode 9,5 kvm.
- TG 0/1 på samtlige punkter.
- Fjernvarme inkl. i meget lave felleskostnader.
- Energimerke Grønn - B, mulig med grønt boliglån.
- Intern bod og ekstern bod på 5 kvm m/ stikkontakt, mulig med fryser e.l.
NB: Knappen for å vise hele beskrivelsen har kun en visuell effekt.
NB: Knappen for å vise hele beskrivelsen har kun en visuell effekt.
Salgsoppgaven beskriver vesentlig og lovpålagt informasjon om eiendommen
Se komplett salgsoppgaveNyttige lenker
Nærområdet
EiendomsMegler 1 Lade og Lilleby
Vi loser deg trygt gjennom hele boligsalget
Annonseinformasjon
| FINN-kode | 453475305 |
|---|---|
| Sist endret | 04. mars 2026 07:53 |
| Referanse | 36260034 |
Annonsene kan være mangelfulle i forhold til lovpålagt opplysningsplikt. Før bindende avtale inngås oppfordres interessenter til å innhente komplett informasjon fra meglerforetaket, selger eller utleier.



























