Bildegalleri

Romslig familiebolig over to plan med stor stue, solrik tomt, garasje og attraktiv beliggenhet med flott utsyn
Prisantydning3 950 000 kr
Nøkkelinfo
- Boligtype
- Enebolig
- Eieform
- Eier (Selveier)
- Soverom
- 4
- Internt bruksareal
- 227 m² (BRA-i)
- Bruksareal
- 255 m²
- Eksternt bruksareal
- 28 m² (BRA-e)
- Balkong/Terrasse
- 12 m² (TBA)
- Byggeår
- 1973
- Energimerking
- D - Gul
- Tomteareal
- 1 048 m² (eiet)
Fasiliteter
Barnevennlig
Balkong/Terrasse
Garasje/P-plass
Offentlig vann/kloakk
Peis/Ildsted
Turterreng
Utsikt
Visning
mandag, 09. mars
16:30 – 17:30
Velkommen til visning!
Alle våre visninger har påmelding. På denne måten sikrer vi at megler har god oversikt og tid til å imøtekomme alle interessenter på beste måte. Dette er veldig verdifullt for boligkjøpere og for oss. Det er enkelt å melde seg på, og du kan like enkelt melde deg av. Kontakt også gjerne megler i forkant av visning dersom du har spørsmål.
Om boligen
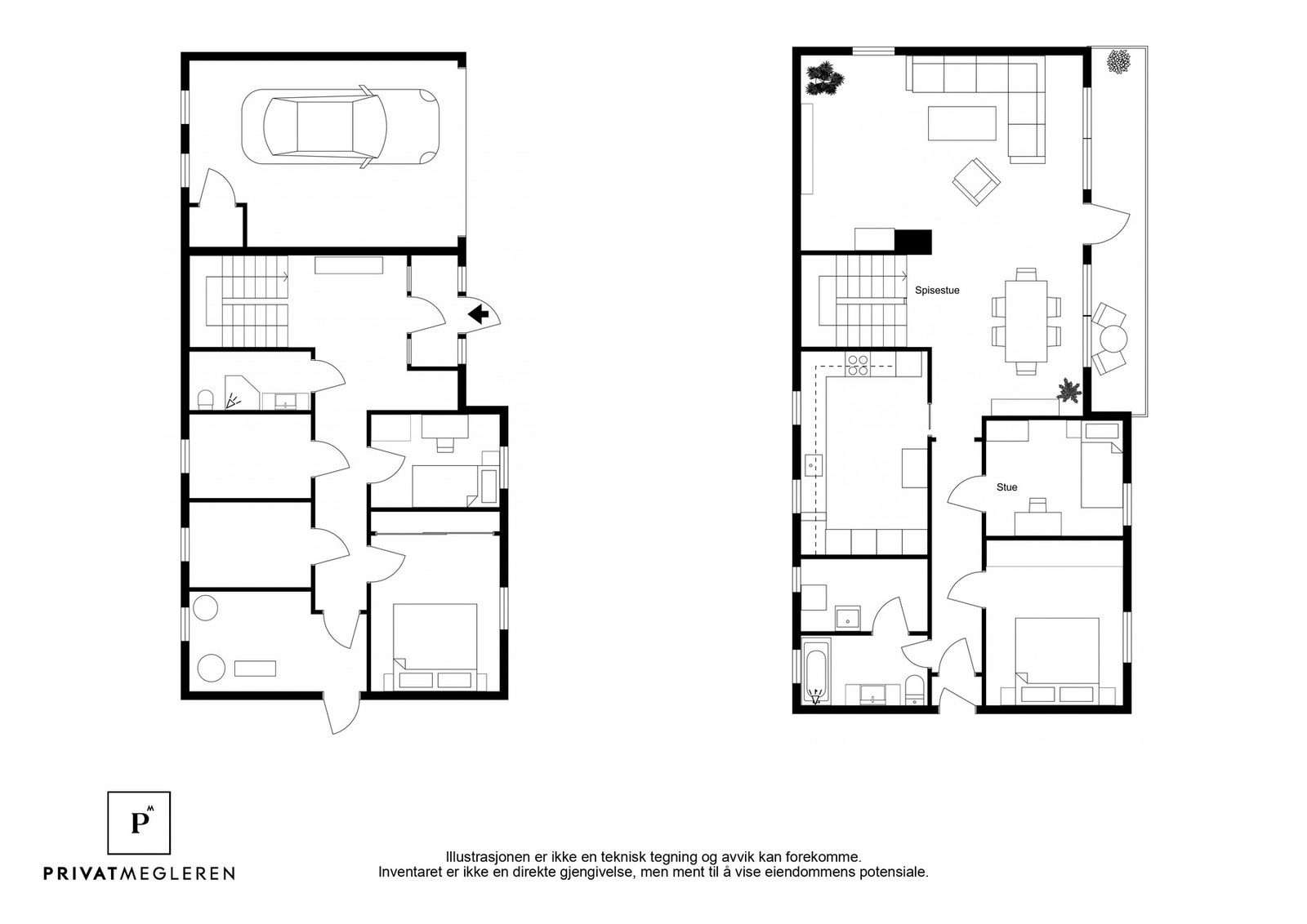
Velkommen til Holøssvingen 8 - en romslig og innholdsrik enebolig over to plan med familievennlig beliggenhet i etablert boligområde.
Boligen byr på en lys og luftig stue på hele ca. 55 m² med gode møbleringssoner, peis og utgang til balkong. Kjøkkenet har praktisk utforming med god skapplass og moderne løsninger. Eiendommen har flere soverom, to bad og gode oppbevaringsmuligheter, noe som gir fleksibel bruk for både barnefamilier og de som ønsker ekstra plass. Tomten er pent opparbeidet med plenarealer og hyggelige uteplasser, samt frittliggende garasje og gode parkeringsmuligheter.
Boligen er jevnlig vedlikeholdt med blant annet ny varmepumpe, oppgradert sikringsskap og rehabilitert drenering.
Her får du en solid bolig med stort potensial og gode kvaliteter - perfekt for deg som ønsker plass, utsikt og et trygt bomiljø.
Boligen byr på en lys og luftig stue på hele ca. 55 m² med gode møbleringssoner, peis og utgang til balkong. Kjøkkenet har praktisk utforming med god skapplass og moderne løsninger. Eiendommen har flere soverom, to bad og gode oppbevaringsmuligheter, noe som gir fleksibel bruk for både barnefamilier og de som ønsker ekstra plass. Tomten er pent opparbeidet med plenarealer og hyggelige uteplasser, samt frittliggende garasje og gode parkeringsmuligheter.
Boligen er jevnlig vedlikeholdt med blant annet ny varmepumpe, oppgradert sikringsskap og rehabilitert drenering.
Her får du en solid bolig med stort potensial og gode kvaliteter - perfekt for deg som ønsker plass, utsikt og et trygt bomiljø.
NB: Knappen for å vise hele beskrivelsen har kun en visuell effekt.
NB: Knappen for å vise hele beskrivelsen har kun en visuell effekt.
Salgsoppgaven beskriver vesentlig og lovpålagt informasjon om eiendommen
Se komplett salgsoppgaveNyttige lenker
Nærområdet

PrivatMegleren Rakkestad
Kun det beste på dine vegne
Annonseinformasjon
| FINN-kode | 453465335 |
|---|---|
| Sist endret | 02. mars 2026 14:41 |
| Referanse | 192260014 |
Annonsene kan være mangelfulle i forhold til lovpålagt opplysningsplikt. Før bindende avtale inngås oppfordres interessenter til å innhente komplett informasjon fra meglerforetaket, selger eller utleier.



































