Bildegalleri

Velkommen til Hønsveien 31, presentert av Terje Tveit i Krogsveen. Innholdsrik bolig fra 2019. 5 soverom.
HØN
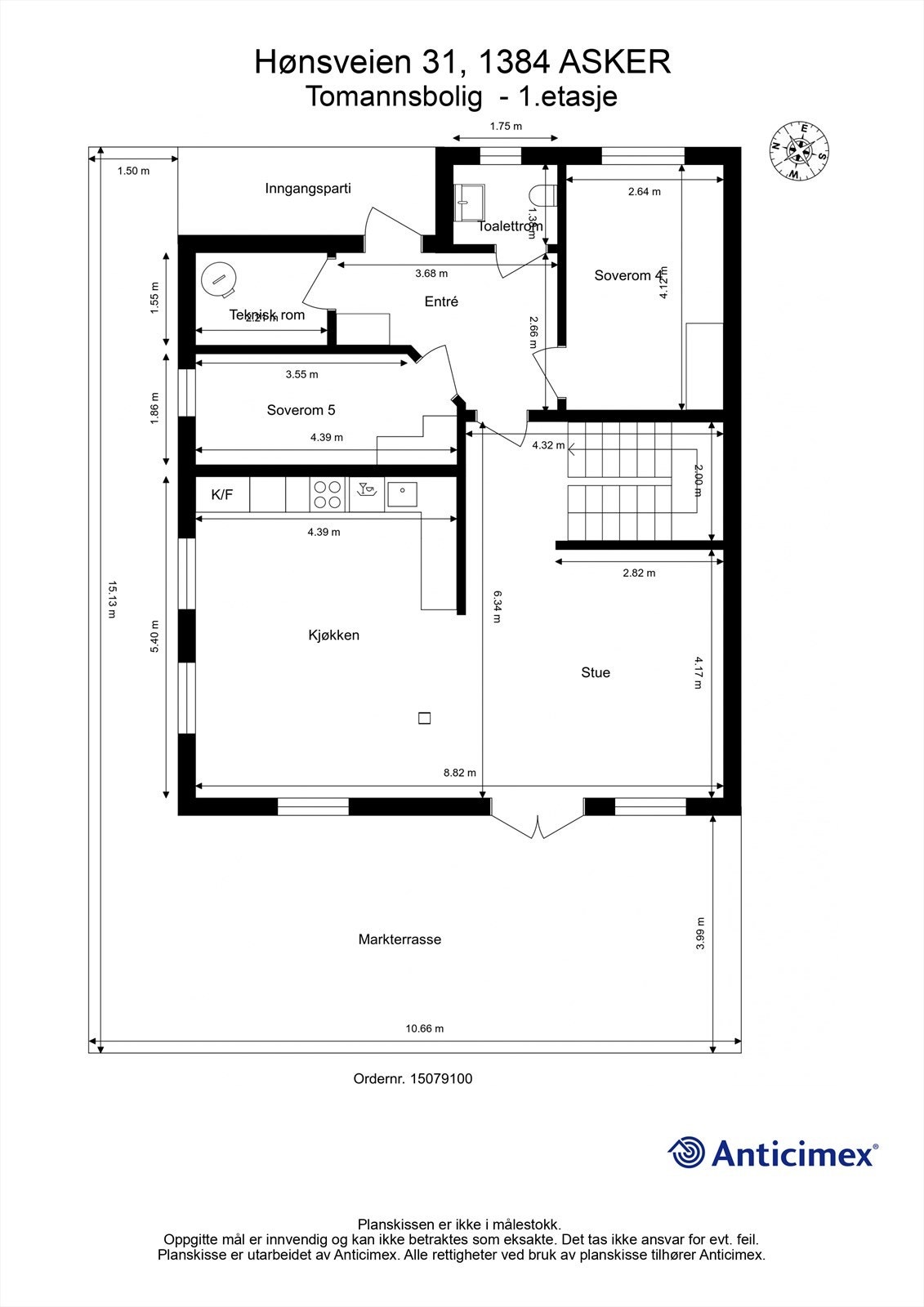
Innholdsrik bolig fra 2019. 5 soverom. Barnevennlig i stille blindvei, stor solrik terrasse og hage. Garasje m/ el-lader
Prisantydning10 600 000 kr
Nøkkelinfo
- Boligtype
- Tomannsbolig
- Eieform
- Eier (Selveier)
- Soverom
- 5
- Internt bruksareal
- 153 m² (BRA-i)
- Bruksareal
- 185 m²
- Eksternt bruksareal
- 32 m² (BRA-e)
- Balkong/Terrasse
- 59 m² (TBA)
- Etasje
- 2
- Byggeår
- 2019
- Energimerking
- C - Lysegrønn
- Rom
- 6
- Tomteareal
- 564 m² (eiet)
Fasiliteter
Alarm
Balkong/Terrasse
Barnevennlig
Garasje/P-plass
Hage
Peis/Ildsted
Rolig
Sentralt
Turterreng
Lademulighet
Om boligen
Velkommen til Hønsveien 31, presentert av Terje Tveit i Krogsveen.
Her kan du flytte rett inn i en nyere vertikaldelt halvpart av tomannsbolig med familievennlig planløsning. Den åpne stue- og kjøkkenløsningen har utgang til en stor markterrasse og en nydelig hage, perfekt for sosiale lag. Boligen ligger i et etablert og rolig villaområde med kort vei til Høn stasjon, skoler, barnehager og flotte rekreasjonsområder. Dette er en trygg og fredelig base for familien.
Kort fortalt:
Her kan du flytte rett inn i en nyere vertikaldelt halvpart av tomannsbolig med familievennlig planløsning. Den åpne stue- og kjøkkenløsningen har utgang til en stor markterrasse og en nydelig hage, perfekt for sosiale lag. Boligen ligger i et etablert og rolig villaområde med kort vei til Høn stasjon, skoler, barnehager og flotte rekreasjonsområder. Dette er en trygg og fredelig base for familien.
Kort fortalt:
- Nyere bolig fra 2019 med ferdigattest
- 5 soverom og god planløsning
- Stor markterrasse på 59 m²
- Lekkert bad med både dusj og badekar
- Peisovn i stuen for ekstra hygge
- Gulvvarme i hele 1. etasje og på bad
- Garasje med elbillader
Velkommen til visning!
NB: Knappen for å vise hele beskrivelsen har kun en visuell effekt.
NB: Knappen for å vise hele beskrivelsen har kun en visuell effekt.
Salgsoppgaven beskriver vesentlig og lovpålagt informasjon om eiendommen
Se komplett salgsoppgaveNyttige lenker
Nærområdet
Krogsveen Asker
Verdien av en god megler.
Annonseinformasjon
| FINN-kode | 453464872 |
|---|---|
| Sist endret | 13. mars 2026 07:38 |
| Referanse | KR15.2577 |
Annonsene kan være mangelfulle i forhold til lovpålagt opplysningsplikt. Før bindende avtale inngås oppfordres interessenter til å innhente komplett informasjon fra meglerforetaket, selger eller utleier.




















































