Bildegalleri

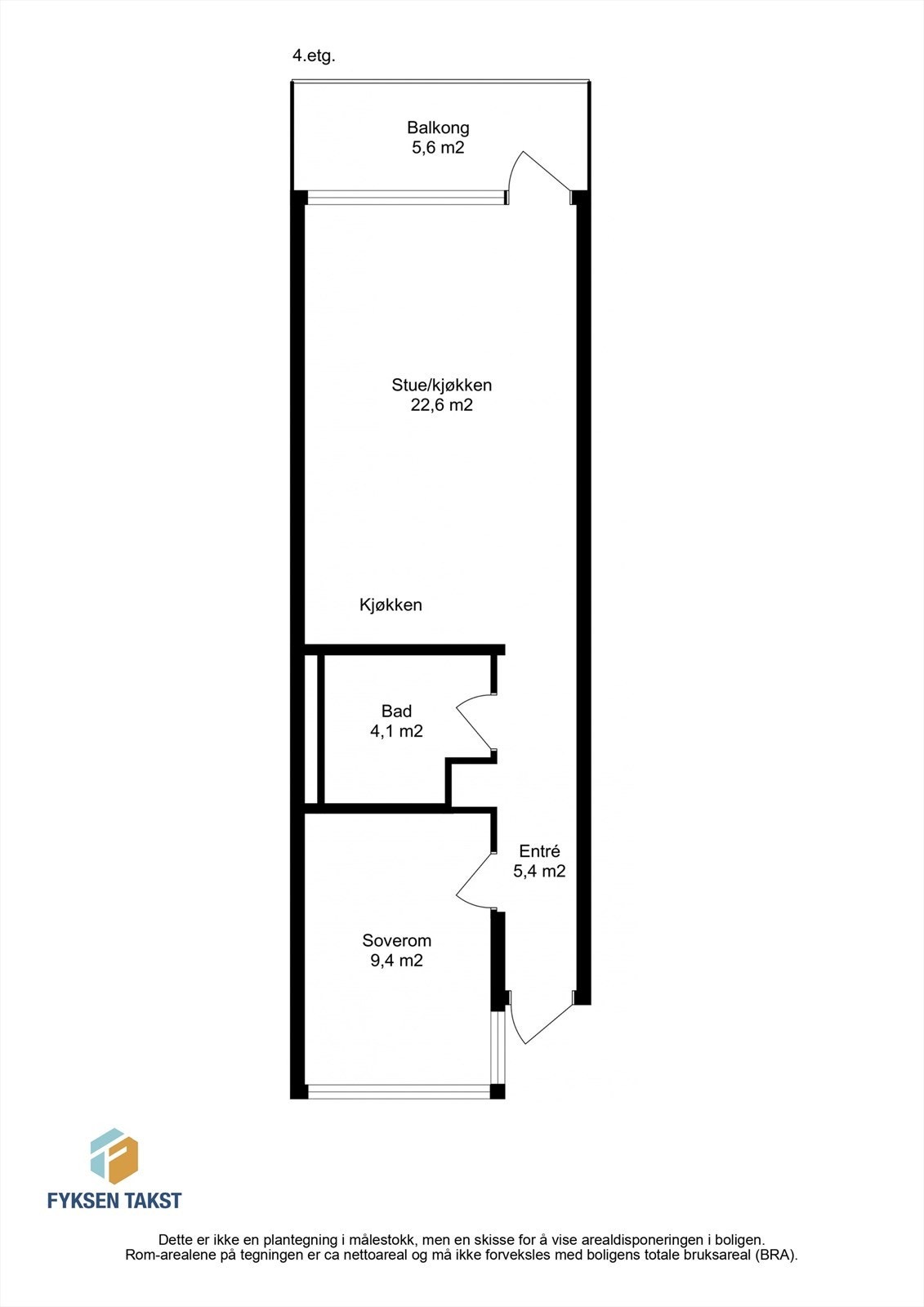
Velkommen til Gamle Kirkevei 16, en lekker 2-roms selveierleilighet i 4. etasje med svært sentral beliggenhet på Møllenberg/Buran.
MØLLENBERG/BURAN
Nydelig 2-roms selveier i 4. etg | TG1 kjøkken | Parkering* | Solrik balkong | Lite innsyn | Vinduer 2022 | Heis
Prisantydning2 990 000 kr
Nøkkelinfo
- Boligtype
- Leilighet
- Eieform
- Eier (Selveier)
- Soverom
- 1
- Internt bruksareal
- 44 m² (BRA-i)
- Bruksareal
- 49 m²
- Eksternt bruksareal
- 5 m² (BRA-e)
- Balkong/Terrasse
- 6 m² (TBA)
- Etasje
- 4
- Byggeår
- 1974
- Energimerking
- E
- Rom
- 2
- Tomteareal
- 1 385 m² (eiet)
Fasiliteter
Balkong/Terrasse
Bredbåndstilknytning
Garasje/P-plass
Heis
Kabel-TV
Rolig
Sentralt
Utsikt
Turterreng
Visning
torsdag, 12. mars
16:00 – 16:45
Alle våre visninger har påmelding. Meld deg opp til ønsket visningstidspunkt via linken visningspåmelding , eller kontakt megler på telefon, SMS eller mail. Vi anbefaler at salgsoppgaven lastes ned digitalt, og oppfordrer alle til å lese komplett salgsoppgave før visning. Skulle det mot formodning ikke være påmeldte til angitt visningstidspunkt vil ikke visning bli gjennomført.
VisningspåmeldingOm boligen
Velkommen til Gamle Kirkevei 16 - En lekker 2-roms selveierleilighet i 4. etasje med svært sentral beliggenhet på Møllenberg/Buran. Leiligheten ligger ut mot et åpent grøntområde, og har begrenset med innsyn og flott utsikt mot park og lekeplass.
Kvaliteter som er verdt å merke seg:
Kvaliteter som er verdt å merke seg:
- Leierett til p-plass under tak*
- Balkong med gode solforhold
- Åpen stue-/kjøkkenløsning i en pen, moderne utførelse
- TG1 på kjøkken iflg. takstmann
- Lite innsyn fra omkringliggende boliger
- Bod i kjeller
- Heis
- Kort vei til Solsiden, sentrum og flere av byens studiesteder
Oppgraderinger: - Kjøkken og bad pusset opp i 2015 iflg. tidligere salgsoppgave
- Nye vinduer og verandadør i 2022
- Nye automatsikringer i 2026
Velkommen til visning!
NB: Knappen for å vise hele beskrivelsen har kun en visuell effekt.
NB: Knappen for å vise hele beskrivelsen har kun en visuell effekt.
Salgsoppgaven beskriver vesentlig og lovpålagt informasjon om eiendommen
Se komplett salgsoppgaveNyttige lenker
Nærområdet
Heimdal Eiendomsmegling avd. Sentrum
Annonseinformasjon
| FINN-kode | 453463994 |
|---|---|
| Sist endret | 03. mars 2026 16:54 |
| Referanse | 6-25-0407 |
Annonsene kan være mangelfulle i forhold til lovpålagt opplysningsplikt. Før bindende avtale inngås oppfordres interessenter til å innhente komplett informasjon fra meglerforetaket, selger eller utleier.




























